[Thông tin] Kế hoạch và bản đồ quy hoạch huyện Thanh Trì
01 07/2021

[Thông tin] Kế hoạch và bản đồ quy hoạch huyện Thanh Trì

bản đồ quy hoạch huyện thanh trì là như thế nào? Các kế hoạch và mục tiêu được đề ra ở đây là ra sao? Cùng tìm...

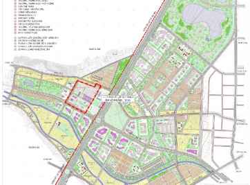
[Thông tin] Kế hoạch và bản đồ quy hoạch quận Thanh Xuân
01 07/2021

[Thông tin] Kế hoạch và bản đồ quy hoạch quận Thanh Xuân

Bản đồ QH quận Thanh Xuân chi tiết và chính xác nhất. Cùng với đó là thông tin quy hoạch và mục tiêu mà quận sẽ...

Chi tiết về bản đồ quy hoạch tỉnh Bình Phước năm 2021
01 07/2021

Chi tiết về bản đồ quy hoạch tỉnh Bình Phước năm 2021

tỉnh Bình Phước là nơi có nhiều tiềm năng về phát triển kinh tế và bất động sản. Hãy cùng tìm hiểu chi tiết bản...

Nội dung quy hoạch Bà Rịa Vũng Tàu bạn không nên bỏ lỡ
01 07/2021

Nội dung quy hoạch Bà Rịa Vũng Tàu bạn không nên bỏ lỡ

Những thông tin về quy hoạch Bà Rịa Vũng Tàu là điều bạn cần nắm rõ nếu như muốn đầu tư. Hãy đến với...

Cập nhật thông tin về bản đồ quy hoạch tỉnh Tiền Giang
01 07/2021

Cập nhật thông tin về bản đồ quy hoạch tỉnh Tiền Giang

Bản đồ quy hoạch tỉnh Tiền Giang cho biết những dự án, kế hoạch được triển khai cho việc quy hoạch tỉnh Tiền...

Chi tiết bản đồ quy hoạch thành phố Tây Ninh mới nhất hiện nay
01 07/2021

Chi tiết bản đồ quy hoạch thành phố Tây Ninh mới nhất hiện nay

Thành phố Tây Ninh hiện nay có khá nhiều dự án quy hoạch để phát triển đời sống và xã hội tại khu vực. Vậy bản...

Kinh nghiệm trong việc mở văn phòng BĐS cho doanh nghiệp
01 07/2021

Kinh nghiệm trong việc mở văn phòng BĐS cho doanh nghiệp

Bạn có bí quyết gì trong việc mở văn phòng bất động sản? Nếu thực sự chưa tìm được hướng đi, hãy tìm hiểu...

Lãi suất cơ sở là gì? Và các thông tin liên quan tới lãi này
01 07/2021

Lãi suất cơ sở là gì? Và các thông tin liên quan tới lãi này

lãi suất cơ sở là gì? Tìm hiểu về lãi suất cơ sở và cách tính loại lãi suất này như thế nào đúng nhất? Tác...

Hợp đồng góp vốn mua đất và những lưu ý trước khi lập hợp đồng
01 07/2021

Hợp đồng góp vốn mua đất và những lưu ý trước khi lập hợp đồng

hợp đồng góp vốn mua đất cần có nội dung gì? Cần phải lưu ý những gì khi ký hợp đồng góp vốn cùng mua đất theo...

Lưu ý khi làm giấy biên nhận tiền đặt cọc thuê nhà 2023
01 07/2021

Lưu ý khi làm giấy biên nhận tiền đặt cọc thuê nhà 2023

Nội dung trong giấy biên nhận tiền đặt cọc thuê nhà gồm có gì? Những lưu ý khi làm giấy biên nhận tiền đặt cọc...

Tư vấn lựa chọn kích thước thang máy chung cư đúng và chi tiết nhất
01 07/2021

Tư vấn lựa chọn kích thước thang máy chung cư đúng và chi tiết nhất

kích thước thang máy chung cư đối với từng mức độ. Những yêu cầu về kỹ thuật và lưu ý đối với thang máy chung...

Thông tin kích thước thang máy gia đình chi tiết chính xác nhất
01 07/2021

Thông tin kích thước thang máy gia đình chi tiết chính xác nhất

Nên chọn kích thước thang máy gia đình nào thì phù hợp? Những vấn đề cần lưu ý khi thiết kế thang máy gia đình là...

Thông tin chi tiết về quy hoạch Quận 10 giai đoạn 2021-2030
01 07/2021

Thông tin chi tiết về quy hoạch Quận 10 giai đoạn 2021-2030

thông tin quy hoạch và bản đồ quy hoạch chi tiết Quận 10, Thành phố Hồ Chí Minh giai đoạn từ năm 2021 đến năm 2030....

Thông tin quy hoạch quận Phú Nhuận giai đoạn 2021 – 2030
30 06/2021

Thông tin quy hoạch quận Phú Nhuận giai đoạn 2021 – 2030

Quy hoạch quận Phú Nhuận trong thời gian từ 2021- 2030 và tầm nhìn đến năm 2050 sẽ giúp bạn nắm rõ thông tin khu vực...

Thông tin quy hoạch và bản đồ quy hoạch quận Tân Phú bạn nên biết
30 06/2021

Thông tin quy hoạch và bản đồ quy hoạch quận Tân Phú bạn nên biết

Bạn đang muốn mua hay đầu tư vào quận Tân Phú nhưng chưa có thông tin về nơi này. Sau đây sẻ chia sẻ đến các bạn...

[Thông tin] Kế hoạch và bản đồ quy hoạch quận Tây Hồ
30 06/2021

[Thông tin] Kế hoạch và bản đồ quy hoạch quận Tây Hồ

bản đồ quy hoạch quận tây hồ bao gồm những gì? Các kế hoạch phát triển và dự án được triển khai trong thời gian...

Cập nhập chính xác bản đồ quy hoạch quận nam từ liêm
30 06/2021

Cập nhập chính xác bản đồ quy hoạch quận nam từ liêm

bản đồ quy hoạch quận nam từ liêm trong thời gian tới sẽ như thế nào? Các công trình và cơ sở hạ tầng sẽ được...

Cập nhập phạm vi và thông tin bản đồ quy hoạch quận long biên
30 06/2021

Cập nhập phạm vi và thông tin bản đồ quy hoạch quận long biên

bản đồ quy hoạch quận long biên như thế nào? Thông tin quy hoạch và mục tiêu cụ thể là ra sao? Cùng tìm hiểu và cập...

[Thông tin] Kế hoạch và bản đồ quy hoạch tỉnh Cao Bằng
30 06/2021

[Thông tin] Kế hoạch và bản đồ quy hoạch tỉnh Cao Bằng

Bản đồ QH tỉnh Cao Bằng là như thế nào? Các phân vùng và kế hoạch phát triển tại đây là ra sao? Cùng cập nhập...

Cập nhập chính xác bản đồ quy hoạch tỉnh cà mau
30 06/2021

Cập nhập chính xác bản đồ quy hoạch tỉnh cà mau

bản đồ quy hoạch tỉnh cà mau trong thời gian tới sẽ được thiết lập như thế nào? Các phân vùng kinh tế và giao...

Bản đồ quy hoạch tỉnh Bình Định năm 2021, tầm nhìn 2050
30 06/2021

Bản đồ quy hoạch tỉnh Bình Định năm 2021, tầm nhìn 2050

Hãy tìm hiểu chi tiết bản đồ quy hoạch tỉnh Bình Định để có cách nhìn chi tiết hơn về kế hoạch phát triển của...

Bản đồ quy hoạch thành phố Huế đầy đủ và chính xác nhất
30 06/2021

Bản đồ quy hoạch thành phố Huế đầy đủ và chính xác nhất

Thành phố Huế trực thuộc tỉnh Thừa Thiên Huế hiện có những dự án quy hoạch như thế nào? Theo dõi bản đồ quy...

Khoanh vùng bản đồ quy hoạch thành phố Thanh Hóa
30 06/2021

Khoanh vùng bản đồ quy hoạch thành phố Thanh Hóa

Bản đồ quy hoạch thành phố Thanh Hoá được nhiều người quan tâm vì đây là một khu vực đắc địa. Thành phố Thanh...

Lưu ngay thông tin về bản đồ quy hoạch thành phố Thái Nguyên
30 06/2021

Lưu ngay thông tin về bản đồ quy hoạch thành phố Thái Nguyên

Bản đồ quy hoạch thành phố Thái Nguyên đến năm 2020 đã được đề ra. Các bạn đã biết hay chưa?

Bản đồ quy hoạch thành phố Thái Bình, tỉnh Thái Bình
30 06/2021

Bản đồ quy hoạch thành phố Thái Bình, tỉnh Thái Bình

Thành phố Thái Bình là một thành phố tỉnh lỵ thuộc tỉnh Thái Bình. Hãy tham khảo bài viết này để biết những thông...

Chi tiết bản đồ quy hoạch thành phố Sóc Trăng hiện nay
30 06/2021

Chi tiết bản đồ quy hoạch thành phố Sóc Trăng hiện nay

Chắc hẳn nhiều người muốn biết kế hoạch cũng như các dự án đầu tư tại Sóc Trăng như thế nào? Vậy hãy cùng...

Thông tin quy hoạch Quảng Ngãi giai đoạn từ năm 2021 - 2030
30 06/2021

Thông tin quy hoạch Quảng Ngãi giai đoạn từ năm 2021 - 2030

Bản đồ quy hoạch thành phố Quảng Ngãi và thông tin quy hoạch của thành phố này sẽ giúp bạn có quyết định đầu tư...

Thông tin quy hoạch Quảng Nam giai đoạn từ năm 2021 - 2030
30 06/2021

Thông tin quy hoạch Quảng Nam giai đoạn từ năm 2021 - 2030

Tìm hiểu thông tin về quy hoạch của một địa phương sẽ giúp bạn chủ động trong việc đầu tư. Bài viết dưới sẽ...

Chi tiết quy hoạch sử dụng đất tỉnh Ninh Thuận năm 2021
30 06/2021

Chi tiết quy hoạch sử dụng đất tỉnh Ninh Thuận năm 2021

Ninh Thuận là một tỉnh thành vùng duyên hải miền Trung với những tiềm năng phát triển du lịch Hãy cùng tìm hiểu quy...

Tổng quan bản đồ quy hoạch thành phố Ninh Bình năm 2021
30 06/2021

Tổng quan bản đồ quy hoạch thành phố Ninh Bình năm 2021

nắm rõ các thông tin về bản đồ quy hoạch thành phố Ninh Bình sẽ giúp chủ đầu tư đón đầu xu hướng bất động...

0868 968 799