Tư vấn lựa chọn kích thước thang máy chung cư đúng và chi tiết nhất
Thang máy có ảnh hưởng trực tiếp đến chất lượng sống của cư dân trong khu chung cư. Tuy nhiên không phải chung cư nào cũng có nhu cầu như nhau về thang máy. Tùy thuộc vào diện tích, số tầng,... nên việc chọn số lượng và kích thước của thang máy chung cư cũng khác nhau.
Điều này đòi hỏi chủ đầu tư cần phải hiểu rõ cách lựa chọn thang máy cho chung cư có kích thước phù hợp nhất với công trình của mình. Nắm được nhu cầu đó, bài viết mong muốn mang đến cho bạn đọc những kiến thức để chọn kích thước thang máy chung cư phù hợp.
Quy định về tiêu chuẩn của thang máy chung cư

Thang máy chung cư
Theo Quy chuẩn kỹ thuật quốc gia của Bộ xây dựng về nhà chung cư tại mục 2.4 đã đề cập rất rõ về tiêu chuẩn của thang máy chung cư:
Đối với những nhà chung cư có từ 6 tầng trở lên cần phải có ít nhất là 1 thang máy, với tòa nhà chung cư trên 9 tầng thì phải lắp đặt tối thiểu là 2 thang máy. Số lượng thang máy được lắp đặt và hoạt động trong chung cư cần phải đảm bảo nhu cầu di chuyển của lưu lượng người sử dụng tuân theo tiêu chuẩn đã được lựa chọn để áp dụng.
Ngoài ra, cần phải chú ý rằng trong hệ thống thang máy của những tòa nhà chung cư cao tầng cần thiết phải có tối thiểu là 1 thang máy có vai trò là thang chuyên dụng với kích thước thang máy phải đảm bảo được việc vận chuyển băng ca cấp cứu trong những trường hợp cần thiết.
Tiêu chuẩn thang máy của chung cư cần phải đảm bảo được việc đáp ứng là 250 người / 1 thang máy trong tòa nhà. 250 người này không tính đến số người ở tầng 1. Tải trọng của một thang máy trong chung cư cần phải lớn hơn hoặc ít nhất là bằng 400 kg.
Như vậy mới đảm bảo được khả năng vận chuyển trong quá trình sinh hoạt của cư dân. Đối với loại thang máy chuyên dụng cho xe cấp cứu thì tải trọng của thang phải đảm bảo tối thiểu là 600 kg.
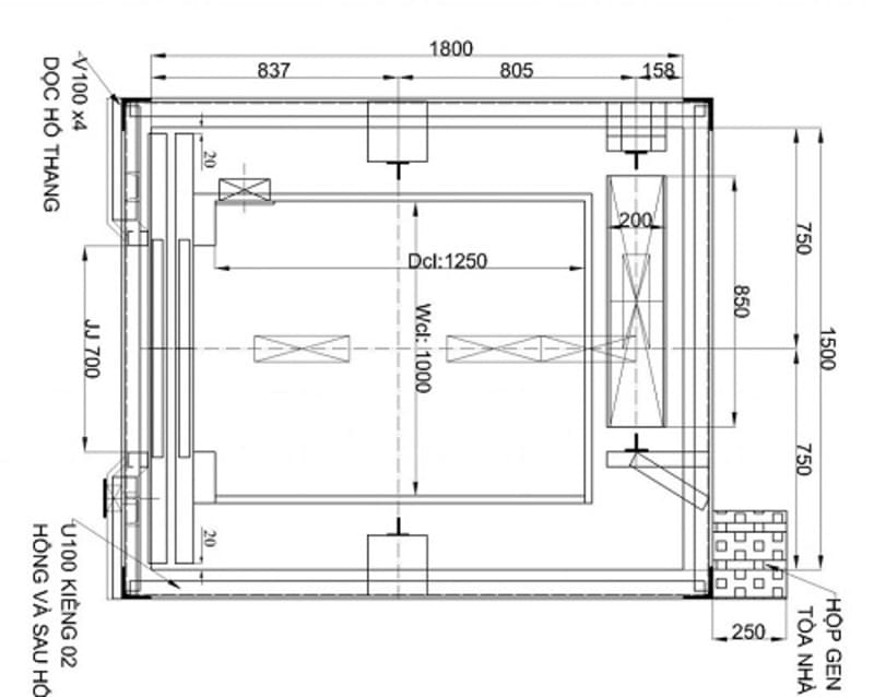
Kích thước tiêu chuẩn diện tích thang máy chung cư

Tiêu chuẩn về kích thước thang máy chung cư
Một điểm chung là những bộ kích thước thang máy sẽ đều phải tuân thủ theo quy định về đảm bảo tiêu chuẩn của thang máy trong chung cư. Diện tích của thang máy và tải trọng của thang máy được quy định như dưới đây:
Đối với các công trình chung cư dưới 10 tầng
Diện tích của thang máy được quy định phải đảm bảo 1400mm(rộng) x 1500mm(sâu) x 2300mm (thông thủy). Tải trọng được quy định phải đảm bảo từ 450kg cho đến 750kg.
Đối với các công trình chung cư có số tầng từ 10 tới 15 tầng
Diện tích cabin của thang máy được quy định phải đảm bảo1400mm (chiều rộng) x1300mm (chiều sâu). Tải trọng của thang máy được quy định phải đảm bảo từ 900kg cho đến 1500kg.
Tư vấn kích thước thang máy chung cư phù hợp

Tư vấn chọn kích thước thang máy của chung cư
Khi chọn lắp đặt thang máy trong chung cư thì chủ đầu tư cần lưu ý một điều là kích thước thang máy chung cư sẽ được lựa chọn phụ thuộc vào số tầng chung cư đó. Dưới đây là gợi ý lựa chọn kích thước thang máy cho chung cư phù hợp để bạn tham khảo
Lựa chọn kích thước thang máy cho chung cư mini (loại chung cư có số tầng dưới 10 tầng)
Nhu cầu thuê nhà ngày càng tăng cao kéo theo đó là các chung cư mini dưới 10 tầng được xây dựng ngày càng phổ biến. Một đặc điểm của các chung cư mini chính là người xây dựng kinh doanh thường là cá nhân, các hộ gia đình mà không cần phải thông qua bất kỳ một chủ đầu tư. Do đó thì mức đầu tư để lắp đặt thang máy không cần quá lớn.
Hơn nữa, bởi vì chung cư mini có số tầng dưới 10 tầng sẽ là lựa chọn nhà ở mà nhiều người độc thân lựa chọn hoặc các hộ gia đình có ít người. Chung cư mini với số tầng dưới 10 tầng sẽ có khoảng độ 50 đến 60 người sinh sống. Cho nên số lượng thang máy cần lắp đặt trên thực tế có thể cần từ 1 đến 2 thang máy với mức tiền đầu tư ở mức vừa phải.
Kích thước thang máy của chung cư có số tầng dưới 10 tầng cần phải đảm bảo đáp ứng được các tiêu chuẩn dưới đây:
- Tải trọng thang máy đảm bảo từ 450kg đến 750kg
Tốc độ thang máy bình quân từ: 1.0m/s đến 1.75m/s
- Số lượng thang máy cần phải lắp đặt trong chung cư dưới 10 tầng là từ 1 thang cho đến 2 thang máy.
- Kích thước thông thủy hố của thang máy có thông số kích thước từ rộng 1750mm x sâu 1400mm đến rộng 1750mm x sâu 1910mm.
- Một số kích thước cabin của thang máy phổ biến là 450kg (1400mm rộng x 850mm sâu) ; 600kg (1400mm rộng x 1100mm sâu); 750kg (1400mm rộng x 1350mm sâu)
- Thang máy chung cư mini cần phải đảm bảo lượng di chuyển khoảng 6 đến 11 người/ lượt.

Kích thước thang máy chung cư mini
Lựa chọn kích thước thang máy cho chung cư có số tầng 10 đến 15 tầng
Số lượng thang máy cần thiết cho loại chung cư có số tầng từ 10 đến 15 tầng phải được tính toán cụ thể phụ thuộc vào lưu lượng di chuyển của cư dân có trong tòa nhà và phụ thuộc vào số người sinh sống trong tòa nhà thực tế. Do vậy số người trong tòa nhà càng lớn thì số lượng thang máy cần lắp đặt cũng cần phải tăng lên. Kích thước thang máy chung cư tiêu chuẩn như sau:
- Tải trọng thang máy phải đảm bảo từ 750kg đến 1350kg
- Tốc độ thang máy đảm bảo trong khoảng 1.75 m/s đến 2.5 m/s.
- Số lượng thang máy tối thiểu cần có trong tòa nhà là khoảng 3 đến 4 thang máy. Số lượng thang máy còn phụ thuộc quy mô số phòng có trong từng tầng, diện tích của từng phòng và loại hình của chung cư.
- Số lượng người/lượt cần đáp ứng di chuyển: từ 11 đến 20 người /thang/lượt.
- Nếu diện tích để lắp đặt thang máy bị hạn chế thì chủ đầu tư có thể áp dụng phương án phân zone, tức là 1 nhóm thang máy sẽ có vai trò phục vụ khối thấp tầng, 1 nhóm thang máy khác sẽ có vai trò phục vụ khối cao tầng.
- Kích thước thông thủy hố thang máy có tiêu chuẩn từ 1750mm (chiều rộng) x 1910mm (chiều sâu) đến cho loại 2200mm (chiều rộng) x 2310mm (chiều sâu).
- Một số kích thước cabin phổ biến của thang máy chung cư như: loại 750kg: 1400mm (chiều rộng) x 1350mm (chiều sâu); loại 1000kg: 1600mm (chiều rộng) x 1500mm (chiều sâu); loại 1350kg: 1800mm (chiều rộng) x 1700mm (chiều sâu).

Kích thước thang máy chung cư 10 đến 15 tầng
Lựa chọn kích thước thang máy chung cư có từ 25 tầng
Các chung cư này có diện tích từng căn hộ khoảng từ 70m2 và nhiều phòng ở trong 1 tầng. Cư dân chủ yếu sống ở đây là các hộ gia đình. Số lượng cư dân sống trong chung cư lớn cho nên yêu cầu cần phải có số lượng thang máy đảm bảo.
Để đáp ứng được nhu cầu di chuyển của người sống trong tòa nhà. Các chung cư loại này thường sẽ có từ 4 nhóm thang máy chung cư trở lên. Nhóm các chung cư cao cấp sẽ có số thang máy nhiều hơn, kích thước của thang máy cũng sẽ rộng hơn.
Tiêu chuẩn và kích thước thang máy chung cư:
- Tải trọng của thang máy từ 1000kg đến 1600kg
- Số lượng người/lượt di chuyển được 1 lần là: 15-24 người /thang/lượt.
- Nếu diện tích cho thang máy chung cư bị hạn chế có thể áp dụng phương án phân zone.

Kích thước thang máy chung cư trên 25 tầng
Như vậy nội dung bài viết đã hướng dẫn chọn kích thước thang máy chung cư để lắp đặt phù hợp với từng loại chung cư. Mong rằng bạn đã nắm được những thông tin bổ ích về việc lựa chọn thang máy chung cư phù hợp để có một công trình đảm bảo bền đẹp và an toàn.














