Tổng hợp một số mẫu thiết kế nhà đẹp 6x15m đẹp, sang trọng
Những năm gần đây, mẫu thiết kế nhà đẹp 6x15m xuất hiện khá nhiều và dần trở nên phổ biến hơn. Ưu điểm của thiết kế này là phần diện tích rất phổ biến, phù hợp với đa số nguồn kinh tế của các gia đình Việt. mẫu nhà 6x15m từ 2 đến 3 tầng phù hợp với gia đình có từ 4-6 người ở và có thể thiết kế được 3 hoặc 4 phòng ngủ tùy nhu cầu. Bài viết dưới đây chúng tôi sẽ chia sẻ một số mẫu thiết kế đơn giản nhưng vẫn rất tiện ích và cực sang trọng, hiện đại để bạn đọc có thể tham khảo ý tưởng.
Mẫu thiết kế 2 tầng 6x15m với 3 phòng ngủ
Đối với một gia đình cơ bản có khoảng 4 thành viên thì mẫu thiết kế với ngăn cách 3 phòng ngủ sẽ rất phù hợp. Thiết kế này sẽ đủ để dùng chứ không ngăn chia quá nhiều làm đội kinh tế và dư thừa phòng trống không sử dụng cũng sẽ rất lãng phí. Để có cái nhìn rõ nét hơn mời bạn đọc tham khảo mặt bằng thiết kế dưới đây:

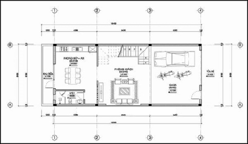
Thiết kế nhà đẹp, sang trọng với mặt bằng 6x15m
Ở mặt bằng tầng 1
Được thiết kế gồm có những tiện ích cơ bản của một gia đình như phòng khách, khu vực bếp kết hợp bàn ăn và ngăn 1 phòng ngủ 1 phòng WC. Nếu gia đình bạn muốn có khoảng sân trước nhà để làm khu vực gara để xe hoặc là khu vui chơi cho các bé thì có thể đẩy lùi phòng khách vào một chút.

Mặt bằng tầng 1 thiết kế phòng khách-phòng ngủ và khu vực ăn uống
Cách sắp xếp sẽ có thể làm theo hai hướng đó là phòng khách-phòng bếp-phòng ngủ. Hoặc đảo lại là phòng khách-phòng ngủ-phòng bếp. Cả hai cách thiết kế này đều rất khoa học, tiện lợi bởi nhu cầu sử dụng bếp của mỗi gia đình sẽ theo một xu hướng khác nhau, có nhà lựa chọn không gian mở thì thiết kế liền kề với phòng khách. Tuy nhiên cũng có nhiều gia đình lựa chọn không gian bếp riêng tư thì bạn cũng có thể đặt bếp phía trong cùng, nghĩa là kế bên phòng ngủ. Mỗi thiết kế sẽ có những ưu nhược điểm riêng và tùy vào nhu cầu bạn hướng tới để lựa chọn cho phù hợp.
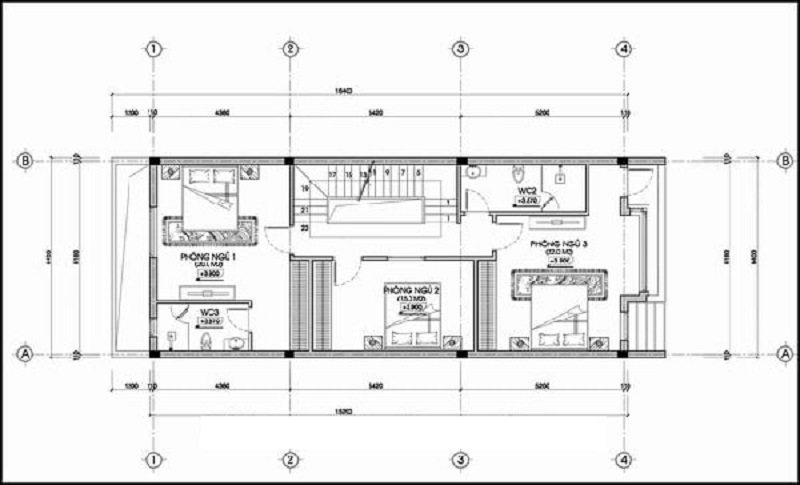
Mặt bằng tầng 2
Mẫu thiết kế nhà đẹp 6x15m mặt bằng tầng 2 được thiết kế khá đơn giản và tiện lợi khi sử dụng. Bạn có thể sắp xếp theo kiểu phòng thờ-phòng ngủ-phòng ngủ tính từ phía mặt tiền của nhà trở vào. Phòng thờ được đặt ở ngay gần với ban công nhà là nơi cao nhất cũng là mặt tiền của nhà và rất hợp phong thủy. Thêm nữa lại rất tiện lợi khi đi từ cầu thang lên và cúng kiếng ngoài trời.

Mặt bằng tầng 2 thiết kế làm không gian thờ cúng và phòng ngủ
Phía bên kia cầu thang đi lên sẽ là hai phòng ngủ liền kề kết hợp với khu WC để dùng chung cho 2 phòng ngủ. Sắp xếp như vậy vừa sách sẽ, không hám bẩn tớ khu vực thờ cúng gia tiên vừa tiện lợi cho người sử dụng không phải đi xa. Nếu nhà bạn có con nhỏ thì có thể sắp xếp kiểu giường tầng trong một phòng để hai bé ngủ chung. Phòng ngủ còn lại sẽ bố trí là phòng cho khách ngủ lại qua đêm hoặc phòng ông bà nghỉ ngơi khi lên chơi.
Mẫu thiết kế nhà đẹp 6x15m với 4 phòng ngủ
Nếu gia đình đông người hơn, bạn muốn tìm mẫu thiết kế nhà đẹp 6x15m nhưng cần sắp xếp tớ 4 phòng ngủ thì cũng rất đơn giản. Bằng việc thay đổi cách ngăn phòng một chút cũng như sắp xếp lại vị trí từng khu vực nhưng vẫn rất rộng rãi và đầy đủ tiện ích. Ngăn cách 4 phòng ngủ sẽ phù hợp cho gia đình từ 5-6 người trong 3 thế hệ cùng chung sống.
Mặt bằng tầng 1 mẫu thiết kế nhà đẹp 6x15m
So với việc thiết kế 3 phòng ngủ thì chia ngăn lại thành 4 phòng ngủ sẽ hơi hẹp lại một chút. Tuy nhiên vẫn sẽ đảm bảo được sự riêng tư và vấn đề cá nhân cho mỗi thành viên trong nhà, đặc biệt diện tích cũng không quá hẹp gây cảm giác bí bách. Ở tầng 1 thì bạn có thể thiết kế chỉ là không gian sinh hoạt chung cho gia đình. Bao gồm gara để xe, phong khách, phòng bếp và khu vực WC, nếu gia đình muốn đặt phòng thờ tại tầng 1 thì có thể để gần chỗ phòng khách là hợp lý nhất.

Thiết kế tầng 1 là nơi dành riêng cho những hoạt động sinh hoạt chung
Sắp xếp phòng bếp ăn gần với khu WC bạn cần chú ý đường ống dẫn nước, đường chất thải và khu vực để bàn ăn nên xa ra một chút để đảm bảo không mất vệ sinh. Nếu muốn có khoảng sân sau thì gia chủ cũng có thể cắt bớt phần bếp để chừa một khoảng sau nhà để làm khu giặt giũ và phơi đồ cũng rất tiện lợi.
Mặt bằng khu vực tầng 2
Khu vực tầng 2 sẽ là nơi sinh hoạt riêng tư cho mỗi thành viên trong gia đình. Có thể chia làm 3 phòng ngủ sẽ rất vừa vặn. Trong đó có một phòng ngủ master lớn nhất dành cho gia chủ, và hai phòng còn lại thì dành cho con nhỏ hoặc ông bà ở. Trường hợp này nếu gia đình bạn có 2 bé thì nên để hai bé ngủ chung hoặc nếu tách riêng thì có thể xây thêm tầng tum để có phòng nhỏ cho bé lớn. Tránh trường hợp ông bà lớn tuổi đi lại cầu thang quá nhiều sẽ nguy hiểm.

Tầng hai là các phòng ngủ cho mẫu thiết kế nhà đẹp 6x15m
Ở tầng 2 có thể thiết kế 2 khu vực WC, một nhà vệ sinh sẽ là nằm trong tổng thể phòng ngủ master, phòng WC còn lại sẽ ở bên ngoài để cho 2 phòng dùng chung. Để ngăn cách thì phòng ngủ ở gần ban công bạn có thể để diện tích hẹp một chút. Bởi nếu có ban công thì phòng sẽ thoáng, mát mẻ và cảm giác rộng hơn rất nhiều so với các phòng khác.
Khu vực tầng tum
Ở mặt bằng tầng 2 bạn đã thiết kế được 3 phòng ngủ và một phòng nữa sẽ là ở khu vực tầng tum. Tầng tum sẽ được thiết kế cho phòng thờ riêng tư nếu không muốn để khu vực thờ cúng ở phòng khách. Có thể thêm được 1 phòng ngủ dự phòng hoặc phòng ngủ nhỡ. Tuy nhiên khu vực vệ sinh chắc hẳn vẫn phải dùng chung với khu vực tầng 2. Nếu thêm khu WC cho tầng tum thì tum phòng ngủ sẽ bị hẹp lại và hơi bí. Phòng ngủ này có thể để là phòng khách ngủ lại qua đêm nếu hai bé nhà bạn ngủ chung phòng với nhau hoặc nhà chỉ có 1 con.

Tầng tum thiết kế phòng thờ và thêm phòng ngủ nhỏ
Đối với mẫu thiết kế nhà đẹp 6x15m thì cũng có rất nhiều hướng thiết kế, tuy nhiên trên đây là hai mẫu tham khảo chúng tôi giới thiệu đến bạn đọc. Hai mẫu này có hướng thiết kế rất phù hợp với gia đình từ 4-6 người, mục đích sử dụng rất rõ ràng ở từng mặt bằng. Xu hướng thiết kế cũng rất hiện đại, sang trọng và vẫn đảm bảo được sự riêng tư, thoáng, rộng rãi cho từng phòng.














