Tổng hợp mẫu nhà phố 3 tầng 5x20 hot nhất hiện nay
Loại nhà phố được xem là kiểu nhà tại các khu đô thị lớn của nước ta được chia theo kiểu các lô đất hoặc phân đất. Mỗi căn nhà trên mỗi khu đất với diện tích và phía mặt tiền khác nhau do đó sẽ có những cách thiết kế khác nhau phù hợp mỗi loại. Với căn nhà 100m2 có mặt tiền 5m và chiều dài 20m là một diện tích khá hoàn hảo để thiết kế các căn nhà phố 3 tầng 5x20. Cùng mình đọc bài viết để tham khảo cách thiết kế căn nhà ấn tượng nhé!
Bản vẽ của mẫu nhà phố 3 tầng 5x20 hiện đại
Nếu gia đình bạn có 4 thành viên thì xây dựng căn nhà với 3 tầng là quá hợp lý. Bạn nên chọn phong cách hiện đại, sang trọng, thoáng mát với xung quanh căn nhà sẽ có nhiều loài cây xanh. Các kiến trúc sư đưa ra phương án bạn nên dành 15m2 mặt tiền và 5m2 phía sau nhà để dùng trồng các loại cây kiểng, cây hoa để giúp không khí nhà bạn sẽ được làm sạch trong lành hơn. Thiết kế thêm giếng trời để các phòng nhà bạn nhận được ánh sáng tự nhiên chiếu vào.
Với bản vẽ mặt bằng tại tầng 1 bao gồm sân trước và sân sau trồng cây, tiếp đến sẽ là một gara để đậu xe của gia đình. Đi vào tiếp sẽ là phòng khách với thiết kế đơn giản bộ ghế và tivi để gia đình có thể sinh hoạt mỗi tối ăn cơm xong. Phía cuối là bếp và phòng ăn xây gộp chung để giảm bớt diện tích và phong cách nhà bếp sẽ giản dị, dùng những vật dụng đa năng. Tại tầng 1 sẽ có nhà WC riêng để thuận tiện đi lại tầng dưới.

Mẫu vẽ mặt bằng tầng 1 của nhà phố 3 tầng 5x20
Bản vẽ mặt bằng tầng 2 sẽ bao gồm 2 phòng ngủ và 2 nhà vệ sinh xây gộp trong phòng ngủ. Điều này giúp tạo sự riêng tư cho mỗi thành viên trong nhà, tạo sự dễ chịu cho mọi người. Phía trước mặt tiền sẽ có một ban công trồng cây cảnh để tạo nên sự sinh động cho không gian nhà. Thiết kế cửa tại ban công là cửa kính chịu lực và không hấp thụ ánh nắng giúp cho căn nhà trông rộng rãi hơn.

Mẫu vẽ mặt bằng tầng 2 của nhà phố 3 tầng 5x20
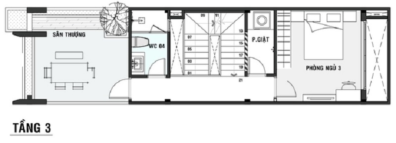
Bản vẽ mặt bằng tầng 3 gồm một phòng ngủ, nhà WC được xây riêng để giảm bớt lượng khí ngột ngạt cho phòng. Có xây thêm phòng để giặt đồ tiện lợi cho gia đình, kèm theo một sân thượng khá rộng. Tại đây sẽ có thể tạo thành một nơi để gia đình tụ họp ăn uống đồ nướng, tiệc đãi bạn bè hoặc gia đình vào mỗi cuối tuần.

Mẫu vẽ mặt bằng tầng 3 của nhà phố 3 tầng 5x20
Cách trang trí thiết kế tổng quan của nhà phố 3 tầng 5x20
Một màu xanh tươi mát sẽ gây ấn tượng với mọi người từ cái nhìn đầu tiên, bởi sự thoáng mát trong lành tươi xanh từ mẫu nhà phố 3 tầng 5x20. Căn nhà được các kiến trúc sư lựa chọn theo kiểu đơn giản với thiết kế bởi các khối hình vuông. Với tone màu chủ đạo cho nhà hiện được chọn là màu trắng kết hợp với một ít màu đen điểm cho căn nhà nét đẹp hiện đại, sang trọng.

Phía mặt tiền căn nhà phố 3 tầng ấn tượng
Về tổng quan căn nhà thì phía cửa cổng chính bạn nên chọn thiết kế đặc biệt bằng sắt kèm với thanh lam để tăng tính thẩm mỹ cho căn nhà. Lựa chọn màu cửa chính và màu cửa sổ phù hợp và tạo cho căn nhà được vẻ thu hút người nhìn.
Tầng 2 lan can dùng kính để giúp căn nhà nhận được ánh sáng mặt trời chiếu vào mỗi sáng, khi trời nắng gắt buộc hạ rèm để giảm nhiệt độ không khí. Về tầng 3 thì có thể trồng thêm rau, cây xanh để tạo bầu không khí mát mẻ, điều hòa nhiệt độ, có thể hít thở vào mỗi sáng sớm.
Bạn nên chọn lựa phong cách mở, có xu hướng hiện đại cho nhà phố 3 tầng 5x20 để nâng cao nét vẻ đẹp ngôi nhà. Phía sân trước mặt tiền là khu vực gara để xe nên cần không gian rộng rãi bằng hoặc nhỏ hơn diện tích của phòng khách vài bậc để tách các khu vực riêng biệt nhau. Chủ nhà nên chọn trồng những loại cây kiểng nhỏ trên tường giúp lọc không khí khói bụi của xe và ngoài đường.

Thiết kế phía sân trước gara dùng để trồng cây
Tiếp đến không gian phòng cách hiện đại với mẫu sofa có màu trắng trông sang trọng, lộng lẫy, tạo điểm thu hút cho toàn bộ căn nhà. Kèm đó là bức tranh nghệ thuật trắng đen được treo như góp phần tăng thêm tính thẩm mỹ cho ngôi nhà bạn. Với chùm đèn thiết kế mới lạ giống hình các chiếc lá giúp căn nhà luôn sáng, lung linh.
Về phần cầu thang để lên đến các tầng tiếp theo thì để phù hợp phong cách hiện đại nên lựa cầu thang thiết kế độc lạ thay các tay vịn bằng gỗ bằng những sợi dây văng. Phần gạch ốp cầu thang biến đổi thành các bậc gỗ có màu nâu sẫm sẽ giúp cầu thang thêm phần ấn tượng.

Phòng khách thiết kế tone trắng đen huyền bí
Để tạo sự khác biệt cho nhà vệ sinh bạn có thể thiết kế tone màu trắng kèm với ốp gạch cách điệu nhưng tăng tính thẩm mỹ. Nên đặt vị trí phòng vệ sinh chung ở tầng trệt này ngay dưới chân cầu thang và kế nhà bếp để dễ dàng di chuyển.

Nhà vệ sinh chung thiết kế đẹp
Căn nhà bếp và phòng ăn cần phải luôn được bố trí đèn sáng, không để không gian bếp nhà bạn tối tăm và ngột ngạt. Có thể thiết kế thêm đèn phía sau sân nhà chỗ trồng cây để chiếu sáng hơn cho nhà bếp. Lựa chọn một gam màu nhẹ nhàng và sử dụng các nội thất bằng gỗ như bằng hoặc các tủ đựng đồ dùng bếp đa năng.

Phòng bếp sử dụng đa phần nguyên vật liệu bằng gỗ
Phòng ngủ bạn nên thiết kế một cửa sổ để đón nắng và gió mỗi sáng là điều tốt nhất, giúp tinh thần thoải mái và tích cực hơn trong ngày mới. Còn với phòng ngủ của các trẻ nhỏ thì có thể diện tích sẽ nhỏ hơn nhưng vẫn phải đáp ứng đầy đủ tiện nghi nội thất cho các bé.

Phòng ngủ trẻ em diện tích hẹp hơn nhưng đầy đủ nội thất

Phòng ngủ người lớn thiết kế sang trọng
Phía sân thượng bạn có thể để thêm một bộ bàn ghế ngoài trời, thích hợp là nơi để gia đình tụ họp ăn uống hoặc mời bạn bè ăn tiệc. Nơi đây thích hợp để mọi người tâm sự, giải tỏa căng thẳng mệt mỏi, ngắm khung cảnh thành phố mỗi tối còn gì tuyệt vời bằng.

Thiết kế sân thượng thành nơi lộng lẫy
Các mẫu nhà phố 3 tầng 5x20 khác bạn có thể tham khảo

Mẫu nhà để tham khảo 1

Mẫu nhà để tham khảo 2

Mẫu nhà để tham khảo 3
Trên đây là tổng hợp chi tiết cách để bạn có thể xây dựng một căn nhà phố 3 tầng 5x20 trông hiện đại, lộng lẫy và tiện nghi. Hy vọng khi bạn đọc xong bài viết này sẽ giúp bạn có được ý tưởng thiết kế cho căn nhà tương lai của chính bạn hoàn hảo nhất có thể.














