Tổng hợp các mẫu nhà mặt tiền 8 mét phong cách hiện đại
Bạn đang sở hữu một mảnh đất và có dự định sẽ xây ngôi nhà mặt tiền 8 mét trên khu đất đấy. Nhưng bạn chưa định hướng thiết kế cho ngôi nhà mình như thế nào? Vậy nếu bạn gặp khó khăn trong quá trình chọn mẫu thiết kế, thì hãy cùng mình theo dõi mẫu nhà mặt tiền 8 mét. Chính bài viết này sẽ giúp bạn giải đáp cho câu hỏi đã đặt ra.
Xây dựng nhà mặt tiền 8 mét gồm 2 tầng và 4 phòng ngủ
Bạn nên chọn tone màu xám cho căn nhà để chúng trông giản dị không quá lòe loẹt, khi ở trong nhà mọi người sẽ thấy ấm áp, yên bình Với cách thiết kế tầng trệt sẽ có thêm gara để đỗ xe, bên cạnh sẽ có thêm một lối nhỏ thuận tiện việc đi lại. Phía trên mái bằng sẽ tận dụng vị trí đó để trang trí trồng các cây xanh giúp cho ngôi nhà thoáng mát hơn và trong lành.

Mẫu nhà mặt tiền 8 mét 2 tầng 4 phòng ngủ đơn giản
Bản vẽ dành cho căn nhà mặt tiền 8 mét gồm 2 tầng và 4 phòng ngủ:
- Tầng 1 (mặt bằng): Có các khu vực như gara đỗ xe đi vào là một phòng khách, nhà bếp và phòng ăn uống, nhà vệ sinh gần như vuông, thêm một kho để đồ gia đình. Chỗ gara có diện tích khá rộng để dễ dàng hơn trong việc di chuyển xe cộ ra vào.

Bản vẽ tầng 1 mẫu 1
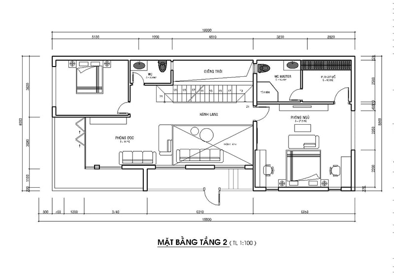
- Tầng 2 (mặt bằng): Trên tầng này sẽ dùng để xây dựng các phòng ngủ nghỉ trong đó có 3 phòng ngủ sẽ bố trí bố cục thuận tiện đi lại và riêng tư mỗi phòng. Có một căn phòng ngủ lớn xây WC ngay bên trong góc kín trong phòng. Còn 2 phòng ngủ còn lại tương đối nhỏ hơn một chút và có nhà vệ sinh khác biệt nhau.

Bản vẽ tầng 2 mẫu 1
Xây dựng nhà mặt tiền 8 mét gồm 2 tầng và 1 tum
Với căn nhà này sẽ nổi bật nhất từ vẻ bên ngoài trông rất hiện đại, sang trọng và sẽ đặc sắc trong mắt người xem. Phía bên trong căn nhà cũng sẽ được thiết kế bố cục nội thất như các căn nhà khác để tạo nên sự ấm chan hòa nơi đây.

Mẫu nhà mặt tiền 8 mét 2 tầng 1 tum
Bản vẽ dành cho căn nhà mặt tiền 8 mét gồm 2 tầng và 1 tum
- Tầng 1 (mặt bằng): Phía trước nhà sẽ có một sân và gara để đỗ xe rộng rãi cho việc để xe và đi lại. Tiếp đến sẽ có một phòng khách bao gồm cả phòng ăn khá rộng, kế bên sẽ có phòng ngủ dành cho người lớn tuổi trong nhà dễ đi lại. Phòng vệ sinh và nhà tắm đặt kế bên phòng ngủ để dễ dàng qua lại.

Bản vẽ tầng 1 mẫu 2
- Tầng 2(mặt bằng): Nơi đây sẽ có 2 phòng ngủ và 2 nhà vệ sinh (có 1 WC riêng ở ngoài không nằm chung trong phòng ngủ), kế bên có sân để phơi đồ. Bên trong còn có 1 phòng lớn dành cho gia đình sinh hoạt mỗi tối có thể coi phim và nói chuyện cùng nhau. Điều này giúp cho không khí gia đình trở nên vui vẻ, mọi người sẽ cảm thấy được yêu thương hơn.

Bản vẽ tầng 2 mẫu 2
- Tầng tum (mặt bằng): lối đi lên đây được xây kế cầu thang tầng 2, trên đây sẽ có 1 phòng ngủ và 1 phòng thờ cúng. Khoảng sân còn lại trên tầng sẽ còn rộng có thể dùng cho mọi người tổ chức tiệc nướng hoặc tập thể dục hít thở không khí trong lành mỗi sáng.

Bản vẽ tầng tum
Xây dựng nhà mặt tiền 8 mét gồm 2 tầng có mái chéo
Với căn nhà mang đậm phong cách trẻ trung và hiện đại thời nay mà nhiều người hướng tới. Với kiến trúc xây mặt tiền nên chọn một tone màu nhẹ nhàng tươi sáng để làm chủ đạo căn nhà. Dùng nhiều cửa kính trong suốt có cường lực để thiết kế thành các cửa giúp người nhìn sẽ dễ chịu hơn. Tiếp đến thiết kế cửa cổng và tường phải thật kiên cố nhưng phải trông đơn giản mới tôn được nét hiện đại cho căn nhà.

Mẫu nhà mặt tiền 8 mét với 2 tầng mái chéo
Bản vẽ dành cho căn nhà mặt tiền 8 mét gồm 2 tầng có mái chéo
- Tầng 1 (mặt bằng): Sân trước căn nhà sẽ có một không gian rộng để có thể đỗ xe, trồng cây xanh xung quanh cổng. Hướng đi vào phòng khách sẽ có bậc thang đi lên và có tiền sảnh. Cửa chính căn nhà được thiết kế cửa khung nhôm và còn lại là kính để giúp căn nhà trông thanh thoát. Kế đến là phòng khách rồi đến phòng bếp + phòng ăn. Dưới cùng sẽ có dạng phòng ngủ master cho vợ chồng có nhà tắm và vệ sinh kết hợp.

Bản vẽ tầng 1 mẫu 3
- Tầng 2 (mặt bằng): Trên tầng này sẽ có 2 phòng ngủ, mỗi phòng đều có nhà vệ sinh riêng biệt. Điều này tạo nên sự riêng tư và sự thoải mái các thành viên trong nhà. Còn một khu sinh hoạt chung của cả gia đình khá rộng rãi giúp mọi người quây quần bên nhau. Phía phòng thờ sẽ được đặt hướng ra trước ban công nhà.

Bản vẽ tầng 2 mẫu 3
Xây dựng nhà mặt tiền 8 mét gồm 2 tầng đơn giản
Nếu bạn không thích kiểu cách quá thì có thể xây mẫu nhà mặt tiền 8 mét đơn giản. Trông căn nhà có vẻ đơn giản nhưng vẫn đầy đủ tiện nghi và một không gian trông nhẹ nhàng. Sử dụng phong cách hiện đại bao phủ cả căn nhà nhà để tạo cho căn nhà một nét trẻ trung nhất và hấp dẫn nhất. Dùng hệ thống mái thái đã cải tạo thành các hình khác biệt độc đáo khiến căn nhà sang trọng.

Mẫu nhà mặt tiền 8 mét 2 tầng hiện đại
Bản vẽ dành cho căn nhà mặt tiền 8 mét gồm 2 tầng đơn giản
- Tầng 1(mặt bằng): Với cấu trúc khác biệt của 2 căn phòng ngủ dạng master sẽ nằm đối diện và ngăn ra để tạo thành khoảng trống khu vực sảnh giữa nhà. Hai phòng ngủ được thiết kế nhà vệ sinh và phòng thay đồ riêng để phục vụ sự riêng tư của mỗi người. Giữa các khoảng trống sảnh giữa nhà có thể trồng ít cây xanh giúp lọc không khí gia đình tươi mát.

Bản vẽ tầng 1 mẫu 4
- Tầng 2 (mặt bằng): Được sắp xếp bao gồm hai phòng ngủ, phòng ngủ và có cả phòng làm việc, nhà WC chung, sân thượng. Tầng này sẽ được bố trí đúng theo phong thủy, đặt các vị trí phòng đúng hướng phong thủy tốt tránh những điều không may cho gia đình.

Bản vẽ tầng 2 mẫu 4
Các mẫu nhà mặt tiền 8 mét được tổng hợp giúp mọi người tham khảo

Mẫu nhà tham khảo 1
Căn nhà 2 tầng với nét cổ điển và hiện đại phối hợp với nhau qua đường chỉ, hình mái nhà, cánh cửa. Xung quanh nhà được ốp dùng nhìn trông chúng trở nên hoàng gia hơn và tạo điểm nhấn cho tổng thể nhà. Không những vậy cách bạn ốp đá cho căn nhà bạn sẽ giúp căn nhà bạn lâu cũ hơn theo thời gian.

Mẫu nhà tham khảo 2
Mẫu nhà mặt tiền 8 mét 2 tầng này được sử dụng chủ đạo là một tone màu trắng và kèm với mái ngói nhà màu xanh dương đậm. Phong cách này đang được rất nhiều người hướng đến bởi vì nó sẽ rất thu hút ánh sáng tự nhiên. Xung quanh nhà trồng nhiều cây xanh để giúp căn nhà mát mẻ hơn.

Mẫu nhà tham khảo 3
Căn nhà trên được thiết kế khác biệt bởi chiếc ban công bằng kính, sự kết hợp này giúp căn nhà được hiện rõ mà không bị khuất đi. Với cách thiết kế các mảng nhà hướng theo hình vuông để nhìn, một nét thiết kế mới lạ.
Qua đây, chắc hẳn bạn cũng đã chọn lựa được mẫu nhà mặt tiền 8 mét mang phong cách hiện đại, sang trọng này nay rồi chứ. Mong rằng sự chọn lựa của bạn sẽ phù hợp với ý tưởng của bạn, giúp bạn có được một mái ấm hoàn hảo nhất.














