Tiêu chuẩn móng băng nhà 3 tầng chuẩn nhất hiện nay
Để giúp cho quá trình xây dựng công trình nhà 3 tầng đảm bảo được chất lượng cần xác định đúng được móng băng nhà 3 tầng. Móng băng chắc chắn sẽ giúp cho các trụ cột và tường chịu được trọng lực nén lớn nhất. Vậy liệu bạn đã biết móng băng gì? Cấu trúc của móng băng như thế nào? Hãy cùng mình tìm hiểu các vấn đề dưới bài viết sau đây!

Làm thế nào để tạo được móng băng chuẩn nhất?
Khái niệm về móng băng nhà 3 tầng?
Một cách khái quát đơn giản móng băng nhà 3 tầng được dùng để làm móng trụ cho nhà 3 tầng. Với dạng là một đường dài được đặt ngay dưới tường nhà hoặc hàng cột của công trình đó. Nó được thiết kế riêng biệt hoặc sẽ cắt nhau theo dạng hình chữ thập. Điều này có tác dụng đỡ những bức tường và trụ cột trở nên chắc chắn hơn trong thi công.

Móng băng nhà 3 tầng được dùng trong xây dựng công trình
Móng băng được dùng trong quá trình xây dựng sẽ được phân chia đa dạng thành hai phần độ cứng cùng tính chất và cấu tạo:
Móng băng được chia tiếp thành 3 loại theo độ cứng với tính chất:
- Móng với tính chất mềm
- Móng với tính chất cứng
- Móng với tính chất hỗn hợp
Móng băng được chia thành 2 loại theo cấu tạo
- Móng băng một phương: Dùng duy nhất chỉ với chiều rộng hoặc ngang của một công trình xây dựng. Tương tự như các đường song song nhau và phân cách các đường sẽ làm dựa theo diện tích của cả căn nhà.
- Móng băng hai phương cấu trúc của đường móng băng được tạo giao nhau giống như bàn cờ vua.
Cách thức để tạo nên kết cấu móng thường sẽ phải dựa trên các khảo sát thực tiễn của nền đất đang được thi công, địa hình, địa chất, độ cứng hoặc độ lún. Để giúp dự án công trình xây dựng có được móng băng đúng kích cỡ và chất lượng an toàn.
Cấu tạo của móng băng của nhà 3 tầng là gì?
Kết cấu của móng băng xây nhà 3 tầng sẽ được tạo nên khá tỷ mỹ và kèm theo kích thước đạt đúng tiêu chuẩn trong kỹ thuật xây dựng. Với cấu tạo gồm 2 phần: lớp bê tông để lót móng, bản móng liên tục kết nối với các móng thành một khối móng chắc chắn.

Kết cấu móng băng trong xây dựng
Các thanh thép ngang mới được đặt liên kết với nhau tạo thành một hệ thống móng lớn bền bỉ, chắc chắn và đạt chuẩn quy định xây dựng. Giúp cho móng băng của căn nhà sẽ tạo thành một kết cấu vững chắc, kiên cố.
Với phần bê tông để lót móng cần có độ dày 100mm, nếu độ dày càng lớn thì sẽ càng có lợi hơn cho công trình. Lớp lót đầu tiên nên hạn chế việc cho thép tiếp xúc trực tiếp với mặt đất, bởi vì chúng không có khả năng kết dính với nhau cao dễ dẫn tới việc lún đất. Không những vậy còn gây nên hiện tượng móng bị lệch hướng và không còn đạt đúng tiêu chuẩn yêu cầu kỹ thuật.
- Kích thước của bản móng phổ biến trong cấu tạo của móng băng xây nhà 3 tầng: (900-1200) x 350 mm
- Kích thước của dầm móng phổ biến trong các dự án thi công nhà: 300 x (500-700) mm
- Kích thước bản thép móng phổ biến: Φ12a150
- Kích thước thép dầm của bản móng: thép dọc 6Φ (18-22), thép đai Φ8a150.

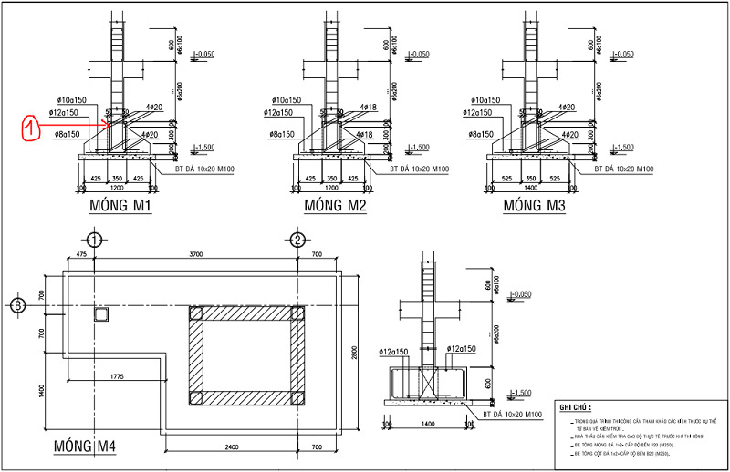
Chi tiết cấu trúc móng băng nhà 3 tầng tỉ mỉ và chi tiết
Những số liệu về kích thước được dùng phổ biến trong các công trình đã thiết kế móng băng thi công nhà 3 tầng. Do đó khi bạn chọn xây dựng công trình khác vẫn nên tính toán để chọn được kích thước chuẩn nhất cho diện tích và tính chất đất. Vật liệu để tạo nên móng băng buộc phải là thép, nhưng phải là thép có độ chống gỉ cao nhất để chúng có thể chịu lực tác động tốt nhất.
Các loại đất và loại nhà nên dùng móng băng
Đa phần trong xây dựng người ta sẽ dùng loại móng băng cho nhà có độ cao 3 tầng đến 5 tầng, đặc biệt với nhà ống hay còn được gọi là nhà phố. Với dạng nhà phố thì trong bước đầu xây dựng phần thô ta phải xác định được thiết kế của móng băng cho nhà. Sau khi kiến trúc sư lên thiết kế bản vẽ cấu tạo loại móng băng 3 tầng cho nhà đó thì sẽ áp dụng ngay vào thi công dự án.

Nên phân tích kỹ loại đất để thiết kế được móng băng phù hợp
Móng băng so với các loại móng đơn, móng bè, móng cọc khác thì cấu trúc của móng băng nhà 3 tầng sẽ khác hoàn toàn. Do đó mà móng băng thường được dùng rộng rãi bởi các kỹ thuật xây dựng đơn giản, độ lún ổn định hơn. Ngoài ra còn giảm được chi phí nên hay thường được sử dụng khá phổ biến trong xây dựng nhà. Các loại công trình nhà nhỏ hơn 3 tầng thường sẽ dùng móng ốc hoặc móng cọc…
Tiêu chuẩn của thép móng băng
Về loại móng băng được đem xếp vào loại móng nông, được thiết kế kiểu móng xây trên hố rồi đào trần tiếp đến mới lấp lại. Với chiều sâu của móng băng cần chôn tầm 2-3 mét, với công trình lớn hơn cần thay đổi lớn hơn lên đến 5m. Do đó cần xây dưới tường hoặc dưới trụ cột, những thông số tiêu chuẩn kỹ thuật đưa ra yêu cầu cho thép đặt móng như sau:
- Kích thước bản thép móng phổ biến: Φ12a150
- Kích thước thép dầm của bản móng: thép dọc 6Φ (18-22), thép đai Φ8a150.
- Phía bề mặt của thép cần được rửa sạch để tránh trường hợp bị gỉ sét, cần được giữ trơn tru không bị gỉ, không để bị dính bẩn của cát hay bùn.
- Độ dẻo của thép phải thật sự tốt mới đảm bảo việc uốn nắn dễ dàng.

Việc cần nhớ khi thiết kế móng băng
Thép móng băng cần được bố trí ra sao?
Để các thép móng băng có thể liên kết với nhau một cách chắc chắn thì chúng ta cũng cần phải đặt chúng đúng theo tiêu chuẩn kỹ thuật yêu câu:
- Khoảng cách khi sắp xếp các thanh thép cần có một khoảng nhất định, thường thì sẽ nối thẳng và cách nhau 10-15 cm
- Tuyệt đối không được ép sát với mặt đất dưới bởi điều đó khiến cho móng không được chắn, tình trạng thép móng băng sẽ nhô cao thấp lệch nhau không đều. Cần đặt thép cách mặt lớp tầm 5m là tốt nhất.
- Do các công trình có các số tầng khác nhau nên số lượng cột trụ và trọng lực nén cũng bị thay đổi. Công trình có 3 tầng sẽ ít cột hơn và chịu lực nhẹ hơn so với công trình nhà 5 tầng. Nên yêu cầu độ dày của nhà 5 tầng phải dày hơn so với nhà 3 tầng để có được độ cứng an toàn cho nhà chắc chắn, bề dày của móng thông thường sẽ từ 20 đến 30 cm.
- Chiều cao của móng băng cũng cần dựa vào số tầng của công trình, với yêu cầu kỹ thuật thì dao động từ 40cm trở lên thường được dùng.
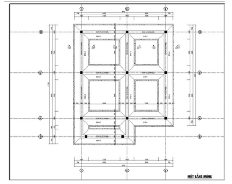
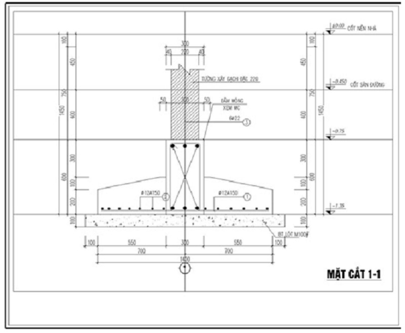
Mẫu bản vẽ cấu tạo móng băng của nhà 3 tầng tham khảo

Móng bằng nhà 3 tầng với bản vẽ mặt bằng tham khảo

Bản vẽ mặt cắt móng băng chi tiết hiện nay
Mình hy vọng qua bài viết bạn có thể hiểu rõ về tiêu chuẩn kỹ thuật móng băng nhà 3 tầng và kết cấu của móng băng. Nếu bạn đang có ý định xây dựng nhà 3 tầng thì nên tìm hiểu thật kỹ về cấu trúc kết cấu móng băng thích phù hợp cho căn nhà bạn. Điều này chắc chắn sẽ giúp bạn có được một căn nhà vững chắc mọi người sẽ luôn cảm giác được an toàn trong tổ ấm của mình.














