Các mẫu thiết kế nhà ngang 6m dài 20m đẹp như mơ
Ngày nay, diện tích đất để xây một căn nhà mặt đất tại các thành phố lớn rất hiếm. Thoogn thường diện tích một căn nhà mặt phố xây dựng chỉ khoảng 120m2 với chiều rộng 6m và dài 20m. Tuy nhiên, dù diện tích khá hẹp nhưng nếu biết cách thiết kế phù hợp thì căn nhà vẫn trở nên thoải mái với không gian tiện nghi. Vậy thiết kế như thế nào là phù hợp? Cùng batdongsanexpress.com tìm hiểu cách thiết kế nhà ngang 6m dài 20m.
Phương án thiết kế nhà ngang 6m dài 20m tốt nhất
Hiện nay có rất nhiều mẫu thiết kế độc đáo, hiện đại để thiết kế nhà ngang mặt phố 6m dài 20m. Tuy nhiên, căn cứ vào mặt tiền của căn nhà, chúng ta cần có phương án thiết kế tối ưu nhất dựa vào các tiêu chỉ khác nhau. Cùng tìm hiểu phương án tốt nhất khi thiết kế nhà ngang 6m dài 20m.

Thiết kế nhà ngang 6m dài 20m với 2 tầng
Phương án thiết kế nhà phố
Với thiết kế nhà phố đòi hỏi nhiều yêu cầu cao, kiến trúc sư cũng gia chủ cần thảo luận để đưa ra phương án phù hợp nhất bởi thiết kế nhà phố ngang 6m dài 20m khá khó và rắc rối. Đặc biệt để xây dựng một căn nhà phố tốn rất nhiều thời gian và sức lao động.
Trước tiên, thiết kế nhà ngang rộng 6m dài 20m với diện tích tương đương khoảng 120m2, ngôi nhà sẽ thiết kế theo phong cách hiện đại với sân chơi cùng vườn nhà bao quanh. Với diện tích 120m2, phương án tối ưu nhất đó chính là xây dựng với quy mô 2 tầng. Với 3 phòng ngủ, 1 phòng khách, 1 phòng bếp và 3 phòng vệ sinh. Ngoài ra, thiết kế thêm một khu ban công vui chơi ở tầng 2.
Bên cạnh đó, nên bố trí ít nhất 1 cửa sổ ở mỗi phòng để thu hút ánh sáng tự nhiên, trong trường hợp nhà không thể xây được cửa sổ thì nên làm cánh cửa thông ra phía sau để thu hút ánh sáng. Ánh sáng tự nhiên rất tốt cho sức khỏe thay vì ánh sáng nhân tạo từ đèn điện.
Như vậy theo phương án thiết kế nhà ngang mặt phố ngang 6m dài 20m này thì nhà sẽ được thiết đầy đủ khu vực và độ phủ xanh cao trên ban công. Về cơ bản, đáp ứng được nhu cầu của gia chủ về thiết kế thông thoáng cùng cây xanh.
Phối cảnh mặt tiền
Thiết kế nhà ngang 6m dài 20m hiện đại, gọn gàng nên thiết kế mặt tiền đơn giản để tránh làm rối mắt và làm nổi bật lên vẻ đẹp trong thiết kế ngôi nhà. Ban công với thảm cây xanh và thảm thực vật xung quanh nên được chú trọng hơn. Không gian ban công thoáng mát, dễ chịu là nơi thư giãn của gia chủ.
Đá lát cũng là một yếu tố quan trọng nên được chú ý khi phối cảnh mặt tiền. Màu sắc của đá lát cần đồng nhất và phải tạo không gian dễ chịu khi ở.

Thiết kế đơn giản, hiện đại nhưng rất bắt mắt
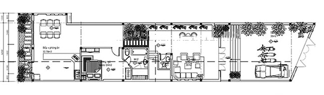
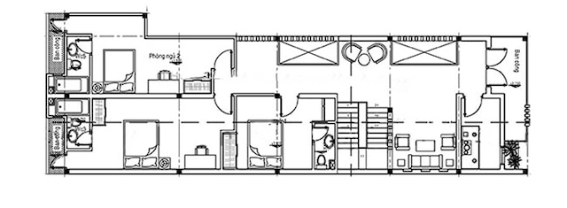
Mặt bằng công năng
Để đảm bảo đem lại sự thoải mái kết hợp cùng sự tiện nghi cho căn nhà, mặt bằng công năng cần đáp ứng được hai yếu tố đó chính là sự kết hợp giữa hiện đại cùng sự thoải mái, thông thoáng. Có thể tham khảo mẫu thiết kế sau đây.
Nhà có ít nhất 3 phòng ngủ nếu gia đình có 4 thành viên. Thiết kế căn nhà phù hợp, hài hòa giữa các tầng, các phòng với nhau.
Tầng 1 thiết kế 1 phòng ngủ chính, 1 phòng bếp cùng phòng khách, ngoài ra thiết kế thêm nhà vệ sinh dưới chân cầu thang. Diện tích của phòng khách và phòng bếp phải thiết kế rộng rãi. Đồ đạc được sắp xếp ngăn nắp. Phía trước là một khoảng sân nhỏ với cây cối bao quanh
Lên tầng 2 sẽ có 2 phòng ngủ và 2 phòng vệ sinh riêng. Ngoài ra , còn có ban công và nơi để phơi quần áo.
Phối cảnh nội thất
Những ngôi nhà rộng 6m ngang 20m có diện tích không quá rộng thì nên ưu tiên đồ nội thất có tone màu chủ đạo là màu sáng hoặc tone màu pastel. Đây chính là sự lựa chọn tối ưu. Có thể tham khảo bộ sofa màu trắng, thanh lịch kết hợp cùng màu sơn và thảm trải sàn màu xanh sẽ giúp không gian trở nên rộng rãi, làm không gian trở nên rộng hơn khi thiết kế.
Có thể tô điểm cho ngôi nhà bằng những bức họa, những chậu cây sanh hoặc giá để sách. Những tiểu tiết này làm ngôi nhà trở nên tinh tế hơn đặc biệt là phòng khách.
Phòng khách và phòng ăn cần được phối đồ nội thất tương ứng với nhau, phải hòa hợp với nhau. Kết hợp cùng lối kiến trúc hiện đại, tạo nên sự đồng điệu cho căn nhà.
Tham khảo bản vẽ mặt bằng thiết kế nhà ngang 6m dài 20m với 2 tầng
Tham khảo thiết kế nhà ngang 6m dài 20m theo lối phong cách hiện đại nhất hiện nay. Không gian sống rộng rãi được kiến trúc bố trí nội thất khóa học nhất.
- Với không gian tầng 1, phía trước nhà là khoảng sân để giữ xe với rất nhiều cây xanh. Ngoài ra, phía trước nhà còn có phần tiền sảnh. Tầng 1 bao gồm phòng khách, phòng ngủ, phòng bếp, phòng ăn, 2 phòng vệ sinh. Đây được coi là thiết kế tối giản nhất với một căn nhà rộng ở mức trung bình.

Thiết kế tầng 1
- Không gian tầng 2 khi thiết kế nhà ngang 6m dài 20m là khu vực chủ yếu dành để phục vụ nhu cầu nghỉ ngơi, thư giãn cho các thành viên trong gia đình. Tầng 2 gồm với 3 phòng ngủ. Mỗi phòng có phòng vệ sinh riêng, tuy nhiên không có cửa sổ. Phía trước là phòng sinh hoạt chung, phòng thờ và ban công. Ban công được trồng nhiều cây cối để tạo không gian thoáng mát cho tầng 2.

Thiết kế tầng 2
Bài viết là những lưu ý, kinh nghiệm thiết kế nhà ngang 6m dài 20m cực kỳ hữu ích dành cho bạn. Diện tích nhà nhỏ nhưng thiết kế khoa học thì căn nhà cũng trở nên vô cùng thoải mái và tiện nghi. Hãy theo dõi batdongsanexpress.com để cập nhật nhiều thông tin hữu ích nhất về bất động sản trong nước.














