Thiết kế mặt tiền, nội thất cho mẫu nhà 1 trệt 1 lầu 5x15 đẹp
Được biết tới với sự sang trọng, hiện đại cùng thiết kế tối giản giúp tận dụng tối đa không gian sống, mẫu nhà 1 trệt 1 lầu 5x15 đang dần trở thành mẫu thiết kế được ưa chuộng nhất hiện nay. Với mẫu thiết kế này bạn hoàn toàn có thể an tâm tận hưởng cuộc sống như mơ trọng một căn nhà có đầy đủ tiện ích, dù cho bạn chỉ có diện tích vẻn vẹn 5x15m.
Lý do nên chọn thiết kế mẫu nhà 1 trệt 1 lầu 5x15 là gì?
Với những gia chủ có diện tích nhà ở khiêm tốn và số lượng thành viên không quá nhiều thì mẫu nhà 1 trệt 1 lầu 5x15 là hoàn toàn phù hợp và nên lựa chọn thiết kế. Dưới đây là một số những lý do bạn nên chọn mẫu thiết kế nhà 1 trệt, 1 lầu 5x15.
- Đầu tiên, đây là mẫu thiết kế phù hợp với những căn hộ có diện tích không quá lớn, giúp bạn có thể sử dụng tối ưu không gian sống của cả gia đình.
- Việc xây dựng dựa theo công năng sử dụng mẫu nhà 1 trệt 1 lầu 5x15 hợp lý giúp tối ưu công năng của toàn bộ không gian của căn phòng. Góp phần tạo không gian vui chơi, sinh hoạt và nghỉ ngơi phù hợp với từng thành viên trong gia đình. Sử dụng hợp lý, tối ưu công năng của toàn bộ không gian của căn phòng
- Đồng thời tạo ra khoảng không gian phù hợp cho các nhu cầu cần thiết của các thành viên trong gia đình.
- Với thiết kế này bạn có thể tận dụng tầng trệt làm khu vui chơi, giải trí cho cả gia đình. Tầng lầu được tận dụng làm không gian đặt phòng ngủ, thiết kế nơi nghỉ ngơi đòi hỏi sự riêng tư cho các thành viên trong gia đình.
- Tiết kiệm chi phí khi tiến hành thiết kế, thi công căn nhà.

thiết kế mẫu nhà 1 trệt 1 lầu 5x15 giúp căn nhà nhỏ xinh của bạn trở nên ấm áp, tiện nghi, đặc biệt phù hợp với gia đình có số ít thành viên
Nói chung, đối với mức sống cùng nhu cầu của con người hiện nay thì với một điện tích nhỏ chỉ vẻn vẹn 5x15 thì đây là mẫu thiết kế phù hợp và được ưa chuộng nhất hiện nay. Với thiết kế này giúp căn nhà nhỏ xinh của bạn trở nên ấm áp, tiện nghi cho cả gia đình mỗi dịp sum họp hoặc sinh sống. Đặc biệt phù hợp với những gia đình có ít thành viên.
Mẫu thiết kế mặt tiền phù hợp cho mẫu nhà 1 trệt 1 lầu 5x15.
Mặt tiền của ngôi nhà có thể nói là mặt đặc biệt quan trọng trong thiết kế nhà ở, bởi mặt tiền là mặt để lại ấn tượng đặc biệt cho ngôi nhà, giúp căn nhà có được diện mạo hoàn toàn mới. Để thiết kế được mặt tiền đòi hỏi người thiết kế phải quan tâm tới rất nhiều yếu tố như: Tính cách gia chủ, cách phối màu, những thiết kế phù hợp với diện tích, quy mô của ngôi nhà, đồng thời phải phù hợp với cảnh quan xung quanh của ngôi nhà.
Mẫu nhà 1 trệt 1 lầu 5x15 là mẫu thiết kế được thiết kế dựa trên sự kết hợp uyển chuyển giữa những yếu tố tân cổ điển như mái thái, cùng phong cách thiết kế hiện đại, sang trọng, lịch sự. Cột chống đỡ ngôi nhà hình tròn thường được kết hợp đi kèm với mái vòm (kiểu thiết kế chủ đạo trong thiết kế mái của châu âu).
Thiết kế cửa của ngôi nhà sử dụng chủ yếu là cửa chịu lực hoặc cửa kính góp phần làm tôn nên vẻ đẹp sang trọng, lịch sự và hiện đại của căn nhà. Đồng thời giúp ngôi nhà của bạn đón nhận được nguồn ánh sáng tự nhiên tạo không khí ấm áp cho căn nhà của bạn. Bên cạnh đó việc thiết kế của kinh khi có ánh sáng chiếu vào sẽ gây hiện tượng tán xạ ánh sáng từ đó mà căn nhà của bạn trông có vẻ lớn hơn trước rất nhiều.

Mẫu thiết kế mặt tiền phù hợp cho mẫu nhà 1 trệt 1 lầu 5x15
Màu sắc chủ đạo của những ngôi nhà 5x15 được thiết kế theo mẫu này thường sử dụng tông kết hợp những màu sáng như vàng, trắng, xám đen để tạo điểm nhấn riêng cho từng chi tiết trong mặt tiền căn nhà. Thêm vào đó là kết hợp phần mái phù hợp với thiết kế mặt tiền của căn nhà với những màu trầm như màu xanh rêu, xám, …. sự kết hợp hài hòa màu sắc tổng thể góp phần giúp căn nhà bạn mang vẻ đẹp vừa mang phong cách tân cổ điển vừa hiện đại.
Với những mẫu nhà 1 trệt 1 lầu 5x15 thường được kết hợp với cây sanh tạo vẻ đẹp thiên nhiên, đồng thời tạo nên một không gian xanh cho căn nhà. Với những ngôi nhà nhỏ thì cây sanh sẽ là nguồn cung cấp oxi, không khí trong lành, tươi mới giúp giảm thiểu cảm giác bí bách từ môi trường cũng như không gian nhỏ gây ra. Với thiết kế cây sanh này nếu được đặt trên khu vực tầng lầu sẽ là khu vực thư giãn hoàn hảo cho bạn mỗi khi căng thẳng, mệt mỏi.
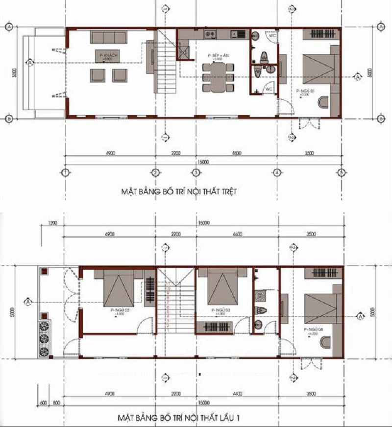
Cách sắp đặt vị trí các phòng phù hợp với nhà 1 trệt 1 lầu 5x15.
Với mẫu nhà 1 trệt 1 lầu 5x15 thì thiết kế được ưa chuộng nhất có thể kể tới thiết kế sau:
- Với không gian, diện tích tầng trệt (tầng 1) thì bạn có thể đặt thiết kế từ cửa chính vào lần lượt là: phòng khách, tiếp đến là phòng bếp cùng phòng ăn và cuối cùng là khu vực vệ sinh cá nhân bao gồm phòng tắm và toilet.
- Tiếp đến là tầng trệt (tầng 2) sẽ được thiết kế với một khoảng không nhỏ để làm vườn hoa, cây sanh để tạo nên một quan cảnh thiên nhiên đẹp đẽ, thoáng mát, cùng không khí trong lành cho căn nhà. Ngay sau là gian phòng thờ được đặt hướng ra sân, tiếp sau đó là khu vực đặt cầu thang cùng 2 phòng ngủ, cuối cùng là phòng vệ sinh chung của tầng lầu.

sắp đặt vị trí các phòng phù hợp với nhà 1 trệt 1 lầu 5x15 giúp bạn có không gian sống rộng rãi, thoải mái cho cả gia đình
Với thiết kế đơn giản như vậy giúp bạn có không gian sống rộng rãi, thoải mái cho cả gia đình. Đồng thời có được không gian nhỏ dùng để ngồi thư giãn, và hòa mình với thiên nhiên. Ngoài việc thiết kế, sắp đặt nội thất phù hợp với căn phòng cũng vô cùng quan trọng. Bởi lẽ, việc lựa chọn sắp xếp nội thất phù hợp giúp không gian sử dụng căn nhà thêm rộng rãi hơn. Do đó chúng ta cùng tìm hiểu về những nội thất có thể đi kèm trong thiết kế này ở dưới nha.
Thiết kế, sắp đặt nội thất đi kèm phù hợp với thiết kế mẫu nhà 1 trệt 1 lầu 5x15
Với mẫu nhà 1 trệt 1 lầu 5x15 thì ưu tiên trong nội thất phải chú ý ưu tiên tới những món đồ nội thất nhỏ gọn, đa năng, màu sắc tao nhã hợp với tổng thể của căn nhà như bàn ghế gấp đa năng có thể biến lớn nhỏ tùy ý, màu sắc của gỗ hoặc màu trung tính phù hợp với nền của căn nhà góp phần làm tăng lên vẻ đẹp sang trọng của ngôi nhà.
Đầu tiên khi bước chân vào nhà thì phòng khách được thiết kế, trang trí với một bộ bàn ghế đơn giản với một chiếc ghế sofa nhỏ, một chiếc bàn nhỏ xinh với màu trầm như màu xám hoặc màu gỗ. Nhằm mục đích chủ yếu là tiếp của chủ nhà. Bên cạnh đó bạn có thể kết hợp thêm một chiếc tivi và những bức tranh đơn giản tạo cảm giác rộng rãi cho căn phòng. Đồng thời bạn có thể tận dụng không gian này như một không gian xem phim chung của gia đình.
Tiếp sau là cầu thang được thiết kế với vách cầu thang giật cấp thêm cây xanh và nền đá hoa sẽ giúp làm sáng căn phòng cùng sự bền đẹp theo thời gian. Đồng thời tránh được sự đơn điệu, nhàm chán cho chiếc cầu thang. Bên cạnh đó bạn có thể kết hợp thêm nền lát gỗ hoặc đá hoa nền trầm để tạo điểm nhấn và sự hài hòa cho không gian căn nhà.
Thiết kế phòng ngủ tối giản, không quá cầu kỳ với giường ngủ, tủ quần áo cùng bàn trang điểm và đèn ngủ nhỏ đặt trên đầu giường kèm thêm một chiếc tivi mỏng nhẹ treo tường. Giúp căn phòng của gia chủ trở nên gọn gàng, ngăn nắp hơn đồng thời giúp giải quyết nhu cầu giải trí của gia chủ.

Thiết kế, sắp đặt nội thất đi kèm đơn giản, đa năng, màu sắc trầm phù hợp với tổng quan căn nhà
Trên đây là một số hiểu biết của chúng tôi về mẫu nhà 1 trệt 1 lầu 5x15 hy vọng sẽ giúp ích được cho bạn trong việc thiết kế, xây dựng những căn nhà với diện tích 5x15.














