Tham khảo bản vẽ nhà 6x12m độc đáo nhất hiện nay
Hiện nay, khi xã hội phát triển, nhu cầu của con người cũng vì thế mà tăng cao. Không gian sống cũng vậy, các tiêu chí được đưa ra là phải đẹp, khoa học và hiện đại. Thiết kế nhà 6x12m hoàn toàn có thể thuyết phục được các gia chủ, đáp ứng mọi nhu cầu. Nhưng làm sao để có thể tạo nên một không gian có bố cục thông minh. Bất Động Sản Express sẽ giúp bạn tìm hiểu về bản vẽ nhà 6x12m để rõ hơn về vấn đề này.
Những yếu tố quyết định trong việc hình thành bản vẽ nhà 6x12m

Mẫu nhà phố 3 tầng 6x12m hiện đại
Muốn có một bản thiết kế nhà 6x12m, bạn sẽ phải cần xem xét nhiều yếu tố. Từ yêu cầu về thiết kế, kiến trúc, dự trù kinh phí sau đó là phác họa ý tưởng ban đầu. Đây được xem là những mối bận tâm hàng đầu của bất cứ ai có ý định xây nhà.
Các yêu cầu về thiết kế
Với ngôi nhà 6x12m, kiến trúc hiện đại và thiết kế không gian mở được ưu tiên hàng đầu. Bởi hiện nay, số lượng nhà khá dày đặc, gây nhiều cản trở trong việc tiếp nhận gió trời và ánh nắng. Chính vì vậy, thiết kế này là hoàn toàn đúng đắn, đảm bảo tiện nghi lại hợp xu thế.
Bạn cũng cần phải bố trí những không gian phòng như những ngôi nhà khác. Bao gồm phòng khách, nhà bếp, sân vườn nhỏ, 3 phòng ngủ, phòng thờ, sân phơi và ban công. Đây là những nhu cầu cơ bản của các thành viên trong nhà. Những để tạo cảm giác thoải mái thì cần một ý tưởng bố trí khoa học và hài hòa.
Phác họa ý tưởng
Sau khi xác định các yêu cầu thiết kế, bạn sẽ đi vào việc phác họa các ý tưởng ban đầu. Mặt tiền căn nhà có độ dài 12m, chiều sâu chỉ có 6m. Về tổng diện tích thì những ngôi nhà này không khác biệt so với các không gian khác. Nhưng cách bố trí sẽ hoàn toàn khác, đặc biệt là ở lối đi và phần cầu thang.
bạn cũng cần phải tính toán nhu cầu sử dụng của mọi người để bố trí không gian phù hợp. Đồng thời là tìm ý tưởng bố trí sân vườn hợp lý. Làm sao để tối ưu chi phí xây dựng mà vẫn có không gian sống lành mạnh, gần gũi với thiên nhiên.
Chi phí xây dựng
Chắc hẳn, vấn đề chi phí sẽ luôn được nhiều người quan tâm khi tiến hành xây nhà. Về cơ bản, số tiền để bạn hoàn thiện ngôi nhà sẽ rơi vào khoảng 600 đến 1 tỷ rưỡi. Còn tùy vào chất liệu xây dựng, chi phí nhân công và phần thiết kế là bao nhiêu tầng.
Bản vẽ thiết kế nhà 6x12m thông dụng hiện nay
Để có một bản thiết kế mặt bằng nhà 3 tầng 6x12m, ta cần phải rà soát, phác thảo nhiều lần. Bạn có thể tham khảo bản vẽ dưới đây để biết thêm chi tiết dưới đây.
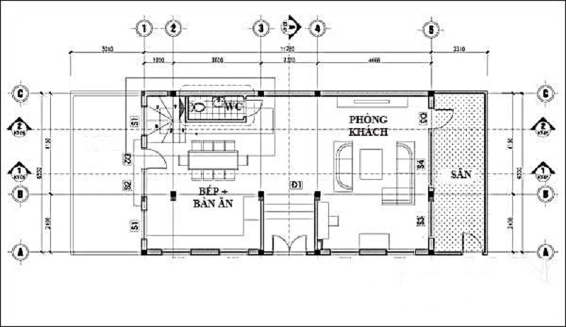
Khu vực tầng trệt
Thông thường, phòng khách và nhà bếp sẽ được bố trí ở tầng trệt. Bởi sự tiện dụng trong di chuyển và sinh hoạt, có thể phân chia mục đích sử dụng phù hợp. Đồng thời cách bố trí này sẽ kết nối những người trong nhà với các hoạt động chung.
Sân vườn sẽ được đặt ở vị trí gần với phòng khách, thiết kế một không gian mở. Hệ thống cửa kính lớn được sử dụng tạo cảm giác khu vực này được rộng rãi, thoáng mát. Bên cạnh đó, để tối ưu diện tích phòng khách, cầu thang sẽ được đặt ở phía góc bên trong. Cần chú ý tránh vị trí đối diện cửa chính bởi vì sẽ gây ra nhiều ảnh hưởng đến phong thủy.

Bản vẽ nhà 6x12m khu vực tầng trệt
Nhà bếp với phong cách hiện đại pha chút mộc mạc bởi bộ bàn ăn và các loại kệ bằng gỗ. Căn phòng sẽ toát lên vẻ sang trọng nhờ những chi tiết này. Bên cạnh đó, bộ đèn trần cũng sẽ khiến cho không gian trở nên ấm áp, tinh tế hơn.
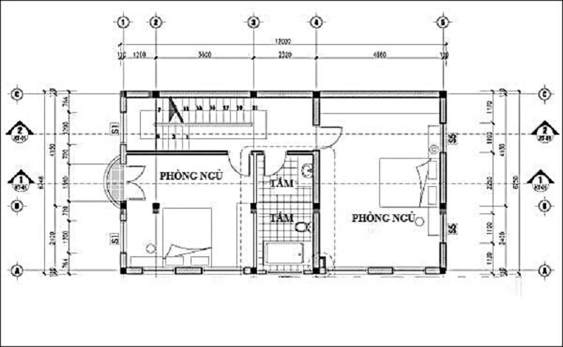
Khu vực tầng 2
Khu vực tầng hai bản vẽ nhà 6x12m sẽ bao gồm 2 phòng ngủ. Trong đó bao gồm 1 phòng lớn và 1 phòng nhỏ hơn. Bạn nên chú ý đặt hướng giường ngủ khác nhau ở hai căn phòng này. Nếu không sẽ gây ra nhiều ảnh hưởng đến phong thủy. Bạn nên sử dụng gam màu trắng chủ đạo kết hợp với những chiếc rèm chống nắng cách nhiệt. Điều này vừa tạo sự tinh tế cho không gian, lại thuận tiện trong việc điều chỉnh ánh sáng theo nhu cầu.
Bên cạnh đó, bạn nên bố trí một khoảng không gian nhỏ để làm ban công. Đặt thêm những chậu cây xanh, góp phần tô điểm cho căn phòng. Đây vừa là nơi sinh hoạt ngoài trời, vừa làm cho căn nhà trở nên thông thoáng và có thẩm mỹ hơn.

Bản vẽ thiết kế nhà 6x12m tầng 2
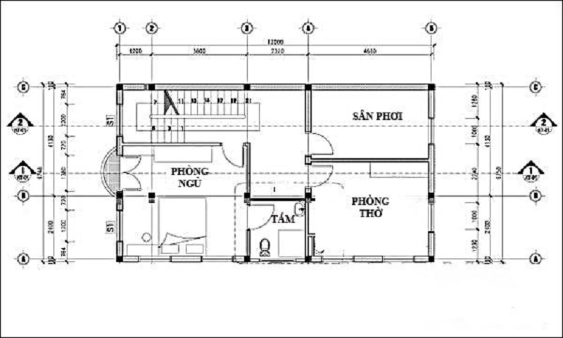
Khu vực tầng 3
Ở khu vực tầng 3, bạn nên bố trí đồng thời phòng ngủ, phòng thờ và cả sân phơi đồ. Làm sao cho các nhu cầu sinh hoạt của gia đình được đảm bảo, tiện nghi, thoải mái.
Về phòng ngủ, bạn thiết kế giống như phòng ngủ ở tầng 2. Đảm bảo các yêu cầu về sự thoáng đãng, tiện nghi. Còn với phòng thờ thì nên được thiết kế tách biệt với một phần diện tích nhỏ, đủ cho mục đích thờ cúng. Phần nội thất bằng gỗ với các đường nét chạm khắc tinh tế sẽ là đặc trưng ở những phòng thờ. Cùng với đó là thảm trải sàn và tranh treo tường, đem đến phong thủy tốt cho gia chủ.
Ở khu vực còn lại, gia chủ có thể dùng làm sân phơi kín, phần tường lắp song sắt thưa. Cách này vừa giúp lưu chuyển nắng và gió, đảm bảo nguồn năng lượng để phơi phóng. Tuy nhiên, với thiết kế này, bạn nên lựa chọn cách xây dựng vững chắc nhằm đảm bảo an toàn. Nhất là phòng khi trời mưa, sẽ không cần phải nhanh chóng lấy đồ vào. Bạn có thể thay đổi cách bố trí sân phơi thành không gian mở nếu thích sự thoáng đãng.

Bản vẽ tầng 3 nhà 6x12m
Trên đây là những kiến thức khi thực hiện bản vẽ nhà 6x12m mà bạn cần biết. Nếu quý khách có nhu cầu tìm công ty xây dựng uy tín, hãy đến ngay với Bất Động sản Express. Bạn sẽ được tư vấn chi tiết, hỗ trợ đưa ra phương án xây dựng phù hợp, tiết kiệm nhất. Hãy gọi ngay đến hotline 0886 68 68 98 hoặc truy cập website Batdongsanexpress.vn nhé.














