Phối cảnh nhà phố là gì? Xu hướng phối cảnh nhà phố hiện nay?
Phối cảnh nhà phố là một xu hướng đang được rất nhiều kiến trúc sư sử dụng để thiết kế nhà theo không gian 3 chiều. Ưu điểm của những bản thiết kế là giúp chủ đầu tư hình dung rõ nhất về ngôi nhà của mình. Vậy phối cảnh 3D là gì? Xu hướng thiết kế nhà mới nhất hiện nay là gì? Để có câu trả lời chính xác độc giả hãy cùng BATDONGSANEXPRESS tìm hiểu nội dung bài viết này.
Phối cảnh nhà là gì? Vai trò của phối cảnh trong xây dựng nhà ở?
Thực tế hiện nay không chỉ các dự án căn hộ, chung cư mà bất cứ sự án nào liên quan đến nhà ở đều sử dụng phối cảnh để thiết kế. Vậy thực chất phối cảnh là gì? Vai trò của chúng trong xây dựng nhà ở? Chúng ta sẽ cùng nhau đi giải quyết từng vấn đề của câu hỏi này các bạn nhé.
Phối cảnh nhà phố là gì?
Phối cảnh thực chất là một công việc mà các kiến trúc sư sử dụng để lên bản vẽ cho một công trình xây dựng nhà ở dựa trên không gian 3 chiều. Ưu điểm của phương pháp này là giúp chủ đầu tư hình dung một cách rõ nét về những đặc điểm cơ bản nhất về ngôi nhà mình khi đã hoàn thiện.

Phối cảnh nhà phố là gì?
Phối cảnh nhà phố, nếu dựa trên lĩnh vực nghệ thuật để phân tích thì đây là công việc tạo nên nét đẹp 3 chiều của một bức tranh hoàn chỉnh. Mục đích là để khi mọi người nhìn vào có thể hình dung ra mọi đặc điểm, mọi chi tiết có trong bản vẽ dù là nhỏ nhất.
Vai trò của phối cảnh nhà phố trong xây dựng.
Trong tất cả các công trình xây dựng nhà ở hiện nay thì phối cảnh được coi là công việc phải đi tiên phong. Bởi chúng có ý nghĩa rất quan trọng để nhà đầu tư có thể nhìn rõ từng hạng mục trong công trình. Chính vì điều này mà việc thiết kế phối cảnh rất được coi trọng và đây cũng không phải là công việc đơn giản.

Vai trò của phối cảnh trong xây dựng
Thực tế, để tạo được một phối cảnh 3D hoàn chỉnh, có chất lượng thì người thiết kế phải thực sự nhạy bén, có chuyên môn và trình độ cao. Bởi vì mỗi công trình xây dựng sẽ có phối cảnh khác nhau, có phong cách kiến trúc khác nhau nên đòi hỏi người thiết kế phải thật sự nhạy bén.
Phối cảnh nhà phố bao gồm những loại bản vẽ nào?
Thực tế, khi xây dựng bất cứ một dự án nhà ở nào thì các kiến trúc sư cần phải chuẩn bị đầy đủ 3 loại bản vẽ cơ bản đó là: bản vẽ phối cảnh, bản vẽ mạt cắt, bản vẽ mặt bằng. Ngoài ra, còn rất nhiều bản vẽ khác liên quan đến các hạng mục. Với những người “ngoại đạo” sẽ rất khó để tìm hiểu về các loại bản vẽ này. Tuy nhiên, chúng tôi sẽ giúp các bạn giải quyết vấn đề này. Cụ thể:
Bản vẽ phối cảnh.
Bản vẽ phối cảnh nhà phố là loại bản vẽ thể hiện hình ảnh 3 chiều của một ngôi nhà với cách gần đúng. Để tạo ra được bản vẽ này thì người thiết kế phải dựa trên các nguyên tắc hình học được quy định rất chặt chẽ. Mục đích là giúp gia chủ hình dung được toàn bộ không gian nhà ở khi đã hoàn thiện.

Bản vẽ phối cảnh
Là bản vẽ thể hiện hình ảnh 3 chiều của ngôi nhà một cách gần đúng trên giấy. Điều này được thực hiện nhờ áp dụng quy luật phối cảnh dựa trên các quy tắc hình học rất chặt chẽ. Nhờ có bản vẽ phối cảnh nhà phố mà gia chủ dễ dàng hình dung ra ngôi nhà của mình trong tương lai.
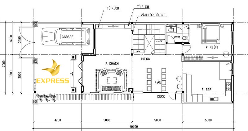
Bản vẽ mặt bằng.
Nói một cách dễ hiểu thì bản vẽ mặt bằng là bản vẽ được nhìn từ trên cao xuống ngôi nhà theo chiều vuông góc với sàn nhà khi được cắt ngang. Theo quy định thì vị trí cát sẽ đặt cách mặt sàn khoảng 1,5m. Từ bản vẽ này, chúng ta sẽ nhìn được các vị trí bố trí đồ đạc, phòng ốc và các vật dụng khác trong ngôi nhà…

Bản vẽ mặt bằng
Với những nhà phố có thiết kế nhiều tầng hay các dự án căn hộ chung cư thì mỗi một tầng sẽ có một bản vẽ mặt bằng tương ứng. Một bản vẽ mặt bằng sẽ thể hiện đầy đủ các phân khu từ cửa sổ, cửa chính, giường tủ, bàn ghế… Mỗi một chi tiết đều được thể hiện bằng các ký hiệu riêng.
Bản vẽ mặt cắt.
Bản vẽ mặt cắt thực chất là một bản vẽ thể hiện từ góc nhìn ngang của một ngôi nhà khi chúng được cắt dọc. Ở bản vẽ này sẽ thể hiện các chi tiết về kích thước, chiều cao và các chi tiết khác trong ngôi nhà. Đồng thời trên bản vẽ này cũng thể hiện đầy đủ các chi tiết về thi công nền, móng, cầu thang, cửa…
Một số xu hướng phối cảnh nhà phố được yêu thích nhất hiện nay.
Như chúng tôi đã chia sẻ ở trên thì xu hướng phối cảnh nhà phố đang là mẫu thiết kế được ưa chuộng nhất hiện nay. Vậy cụ thể thì những hạng mục nào thường hay sử dụng mẫu thiết kế này? Chúng ta sẽ cùng nhau giải quyết vấn đề này ở ngay nội dung sau đây các bạn nhé.
Phối cảnh nhà phố 3 tầng theo phong cách hiện đại.
Theo như chúng tôi tìm hiểu thì hầu hết các mẫu nhà phố 3 tầng hiện nay đều thiết kế theo phong cách hiện đại. Chính vì điều này mà việc thiết kế phối cảnh nhà phố là rất cần thiết. Đa phần các mẫu thiết kế phối cảnh 3 tầng đều lấy ý tưởng từ các khối hình học đơn giản. Đồng thời kết hợp với lối thiết kế truyền thống sẽ tạo lên một bản vẽ phối cảnh hoàn chỉnh.

Phối cảnh nhà phố 3 tầng theo phong cách hiện đại
Đa số các mẫu nhà này đều được thiết kế đơn giản và không quá cầu kỳ. Nhưng chúng vẫn tạo nên được vẻ đẹp tinh tế, hấp dẫn cho người đối diện. Bên cạnh đó, bản vẽ phối cảnh cũng thể hiện khá chi tiết các thiết bị, đồ dùng nội thất trong nhà. Tuy nhiên, những thiết kế này rất đơn giản, không cầu kỳ nhưng lại tiện ích và hiện đại.
So với những phối cảnh nhà phố khác thì chi phí phối cảnh nhà 3 tầng hiện đại sẽ tiết kiệm cho gia chủ rất nhiều chi phí. Bên cạnh đó, nếu chúng ta linh hoạt hơn trong việc sử dụng một số các vật liệu xây dựng thông minh sẽ tiết kiệm thêm được rất nhiều kinh phí đầu tư. Hơn thế nữa chúng lại rất đẹp và ấn tượng.
Phối cảnh nhà phố với 3 tầng có điểm nhấn.
Điểm nhấn của những ngôi nhà 3 tầng hiện đại có điểm nhấn là sự kết hợp của nhiều phong cách trong đó có: truyền thống, hiện đại và cổ điển… Đây là thiết kế có rất nhiều điểm độc đáo, tạo điểm nhấn cho ngôi nhà. Mẫu nhà này mang đến vẻ đẹp sang trọng, thanh thoát và vô cùng tinh tế.

Phối cảnh nhà phố với 3 tầng có điểm nhấn
Tuy nhiên, để thiết kế phối cảnh cho mẫu nhà này không phải dễ. Đòi hỏi người kiến trúc sư phải thực sự am hiểu, có bộ óc sáng tạo và có kinh nghiệm trong thiết kế. Bên cạnh đó thì những yêu cầu của gia chủ cũng cần đảm bảo sự tinh tế. Chỉ khi thỏa mãn được 2 yếu tố này mới tạo được một sản phẩm đạt chuẩn như mong muốn.
Phối cảnh nhà phố tối giản.
Đây đang là một xu hướng nhận được rất nhiều sự quan tâm của các gia đình. Bởi thực tế hiện nay, con người đang có xu hướng tối giản hóa mọi chi tiết để cuộc sống đỡ áp lực hơn. Đây là xu hướng mà rất nhiều bạn trẻ yêu thích và lựa chọn. Mọi chi tiết đều không quá cầu kỳ nhưng vẫn toát lên sự sang trọng và quý phái.
Các câu hỏi mà chúng ta thường gặp khi thiết kế phối cảnh nhà phố.
Mặc dù nội dung bài viết không dài nhưng chúng tôi nghỉ đủ để các bạn hiểu về phối cảnh nhà phố đúng không nào? Nếu các bạn muốn tìm hiểu thêm về các tin tức thị trường bất động sản thì trang web của EXPRESS là địa chỉ tin cậy nhất dành cho bạn.














