Những mẫu thiết kế nhà ống 2 tầng 5x20m hiện đại
Hiện nay nhiều gia đình trẻ đã lựa chọn những mẫu thiết kế nhà ống 2 tầng 5x20m nhằm tối đa hoá không gian, công năng sử dụng mà ngôi nhà hiện đại này đem lại. Nổi bật với sự hiện đại cùng sự bố trí khoa học ở mặt tiền, đồng thời chi phí đầu tư đa dạng đã đem lại nhiều sự lựa chọn cho khách hàng trong việc lựa chọn một thiết kế riêng cho mình. Tại sao ngày càng nhiều gia đình lựa chọn thiết kế nhà của mình theo phong cách này ? Nó có những ưu điểm gì ? Hãy cùng theo dõi bài viết dưới đây nhé .

mẫu thiết kế nhà ống 2 tầng 5x20m
Ưu điểm của mẫu thiết kế nhà ống 2 tầng 5x20m
Phương án thiết kế nhà ống 2 tầng là loại hình thiết kế nhận được nhiều lựa chọn của các vợ chồng trẻ sở hữu những khu đất nhỏ. Kiến trúc này đem vừa thể hiện được sự mới mẻ, vừa đảm bảo sự thoải mái và tiện nghi cho những gia đình có từ 3 đến 4 thành viên. Vậy những mẫu thiết kế nhà ống 2 tầng 5x20m có ưu điểm gì ?

Ưu điểm của nhà ống 2 tầng 5x20m
Cụ thể :
- Có vẻ đẹp hiện đại, độc đáo, phá cách: sở hữu mặt tiền không quá lớn nhưng lại được bố trí, sắp xếp khéo léo làm cho ngôi nhà vẫn rất ấm áp mà lại gần gũi với thiên nhiên
- Chi phí xây dựng vừa phải: nhà ống 2 tầng có thiết kế không yêu cầu là gia đình phải có lô đất có mặt tiền quá lớn. Phù hợp để tiết kiệm chi phí xây dựng cho gia đình.
- Thời gian để thiết kế, thi công, hoàn thiện đưa công trình vào sử dụng nhanh. Với chi phí đầu tư thấp nhất thì loại nhà ống này luôn đáp ứng được nhu cầu sở hữu về nhà một cách nhanh chóng.
- Đây là loại hình thiết kế phổ biến được nhiều người dân sử dụng: nhờ những ưu điểm về thời gian cũng như chi phí thiết kế xây dựng. Do vậy đây là mẫu nhà phù hợp với nhu cầu sử dụng của nhiều gia đình ở ca thành phố và nông thôn
Bản vẽ thiết kế nhà ống 2 tầng 5x20m phổ biến
Nhà ống có chiều rộng hơi hạn chế, tuy nhiên lại có ưu thế về chiều sau nên việc bố trí quy mô các phòng cũng trở nên dễ dàng hơn. Với nhu cầu tối thiểu là 3 phòng ngủ thì sau đây là bản vẽ mẫu thiết kế nhà ống 2 tầng 5x20m phổ biến nhưng không quên đi sự hiện đại và tinh tế trong từng cách thiết kế và bố trí quy mô.
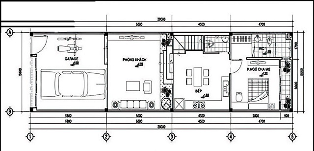
Mặt bằng tầng 1
Tầng 1 bao gồm: gara, phòng khách, phòng bếp, nhà vệ sinh, phòng ngủ 1 khép kín
.jpg)
Mặt bằng tầng 1
- Nhà ống 2 tầng 5x20m thường có một khoảng sân phía trước xây làm gara để xe, đồng thời sau cửa chính là phòng khách được bố trí rộng rãi, thông thoáng.
- Không gian sinh hoạt chung bao gồm bếp và phòng ăn được bố trí liền kề với nhau. Nhằm tối ưu hoá diện tích thì nhà vệ sinh chung được thiết kế ngay cạnh cầu thang.
- Trong cùng là phòng ngủ 1 khép kín với đầy đủ tiện nghi được thiết kế rộng rãi và yên tĩnh dành cho bố mẹ sử dụng.
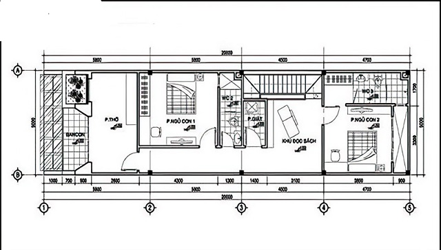
Mặt bằng tầng 2
Tầng 2 bao gồm: 2 phòng ngủ, phòng đọc sách, phòng thờ, khu vực giặt đồ

Mặt bằng tầng 2
- Phòng thờ là phòng ngoài cùng hướng ra ban công, đằng trước trồng nhiều cây xanh tạo sự thoáng mát và yên tĩnh.
- 2 phòng ngủ rộng rãi với đầy đủ tiện nghi, trong đó có 1 phòng ngủ khép kín và 1 phòng ngủ có nhà vệ sinh bên ngoài
- Tuỳ thuộc vào công năng sử dụng mà mỗi phòng được bố trí nội thất khác nhau
Những mẫu nhà ống 2 tầng 5x20m đẹp và ưa chuộng nhất hiện nay
Những ngôi nhà ống 2 tầng 5x20m có phương án thiết kế khác nhau nhằm khai thác tối đa hoá công năng sử dụng cũng như đem lại nhiều sự lựa chọn cho khách hàng. Sau đây là một số mẫu thiết kế nhà ống 2 tầng 5x20m đang được ưa chuộng nhất hiện nay
Mẫu 1: Hệ thống các ô vuông
Đem đến sự hiện đại trong không gian thông qua hệ thống các ô vuông, đem lại tính thẩm mĩ cao. Với khoảng sân trước rộng rãi và thoáng đãng kết hợp với thiết kế đăng đối của mặt tiền tạo nên không gian sống hoàn hảo, thuyết phục mọi khách hàng khó tính nhất
.jpg)
Mẫu 1
Hệ thống cửa kính với khung nhôm xingfa kết hợp cùng ốp tường ngoài trời bằng gỗ nhựa, khu vực cây xanh trước nhà giúp phần không gian phía trước thêm rộng rãi và thoáng mát hơn.
Mẫu 2: Thiết kế mặt tiền bằng những vật liệu nổi bật như sắt, nhôm, đá
Thiết kế mặt tiền bằng những vật liệu nổi bật như sắt, nhôm, đá tự nhiên kết hợp với kính tạo nên sự hiện đại, sang trọng cho ngôi nhà. Khoảng sân trước nhà được bố trí bàn ghế để thư giãn góp phần tạo nên không gian xanh gần gũi và ấm áp
.jpg)
Mẫu 2
Mảng tường tầng 2 được thiết kế đua ra so với tầng 1 tạo nên khối hình kiên cố. Gạch ốp màu trắng được sử dụng kết hợp với khung cửa sắt, ngoài tác dụng che nắng còn đem đến điểm nhấn cho tầng 2 thêm hoàn hảo.
Mẫu 3: Mẫu thiết kế dành riêng cho những ngôi nhà ống thấp
Đây là mẫu thiết kế dành riêng cho những ngôi nhà ống thấp tầng nhưng vẫn muốn mang thiết kế hiện đại. Vẻ đẹp thanh thoát, nhẹ nhàng được toát lên thông qua các hình khối mang đường nét khỏe khoắn, đơn giản. Công trình càng trở nên gần gũi, đơn giản, mộc mạc khi kết hợp với gam màu sáng, trẻ trung.
.jpg)
Mẫu 3
Mẫu 4: Mẫu thiết kế này có mặt tiền được thiết kế theo không gian mở
Mẫu thiết kế này có mặt tiền được thiết kế theo không gian mở, bỏ qua quan điểm phải đối xứng. Chính việc thiết kế bằng những mảng khối vuông cùng với chất liệu mới đã đem lại điểm nhấn cho ngôi nhà. Sự hiện đại và độc đáo càng được thể hiện rõ nét thông qua sự xuất hiện của chiếc mái lệch, lan can sắt Sơn tĩnh điện.
.jpg)
Mẫu 4
Qua mọi góc nhìn ta đều thấy được sự đơn giản trong thiết kế nhưng lại vô cùng tinh tế nhờ sự bố trí khoa học và hợp lý của các hình khối đan xen với vật liệu xây dựng.
Mẫu 5: Thiết kế kiểu Nhật
Đón đầu xu hướng với thiết kế kiểu Nhật kết hợp với gỗ và kính, vừa đem lại cảm giác hiện đại nhưng vẫn giữ được nét mộc mạc của gỗ và sang trọng của kính.
.jpg)
Mẫu 5
Mẫu 6: Mẫu dành cho những gia đình ưa sự mới mẻ
Có lẽ đây là mẫu dành cho những gia đình ưa sự mới mẻ trong thiết kế xây dựng. Với điểm nhấn là chiếc cửa gỗ mang phong cách cổ xưa kết hợp với cửa sổ tròn đơn giản nhưng mang lại sự tinh tế, độc đáo cho ngôi nhà của bạn.

Mẫu 6
Trên đây là những thông tin về nhà ống 2 tầng 5x20m cùng với những mẫu thiết kế nhà ống 2 tầng 5x20m đang được nhiều gia đình lựa chọn hiện nay. Mong những thông tin trong bài viết này sẽ giúp ích cho các bạn trong quá trình lựa chọn những mẫu thiết kế phù hợp cho ngôi nhà của mình. Chúc các bạn thành công!














