Những mẫu nhà phố mặt tiền 10m với thiết kế sang trọng
Với kiến trúc căn nhà 10m mặt tiền có vẻ quá hoàn hảo nhưng nếu bạn biết tận dụng thêm chiều sâu thì sẽ được cách thiết kế hợp lý. Điều này sẽ khiến bạn có thể sở hữu được một căn nhà phố mặt tiền 10m lộng lẫy, có thêm cả sân vườn hoặc gara. Cùng mình theo dõi bài viết sau bạn chiêm ngưỡng những mẫu nhà với kiến trúc đẹp mắt sẽ khiến bạn hài lòng.
Căn nhà phố mặt tiền 10m với phong cách hiện đại kiểu Pháp
Với căn nhà sở hữu một khu đất diện tích khá rộng với 10m x 19m, một diện tích khá hoàn hảo để xây nên một căn phố mang phong cách kiến trúc của Pháp. Những đường nét chi tiết hoa văn được trau chuốt khá tỉ mỉ, chăm chút, kiêu sa khiến trông giống một lâu đài cổ điển. Nét đẹp, lộng lẫy, thanh lịch mà vẻ bề ngoài tỏa ra sẽ thu hút ánh nhìn khá nhiều người.

Kiểu nhà phố mặt tiền với thiết kế kiểu Pháp sang trọng
Hệ thống cửa của toàn bộ căn nhà sẽ dùng cửa gỗ tự nhiên hoặc cửa sắt được thiết kế nhiều họa tiết phong cách hoàng gia và gam màu vàng. Điều này giúp căn nhà bạn trở nên sang trọng và đẳng cấp lâu dài với thời gian.
Ngôi nhà phố với mặt tiền 10m mang cách thiết kế tân cổ điển
Khác với nét lộng lẫy cổ điển kiểu quý tộc thì bạn có thể thiết kế căn nhà phố mặt tiền 10m theo cách tân cổ điển giúp căn nhà trông đơn giản giảm những họa tiết phức tạp. Dùng cửa gỗ tự nhiên, không nhiều chi tiết giúp cho phần ngoại thất có được cái nhìn phóng khoáng, năng động.

Thiết kế mái thái ngói đỏ cho căn nhà phố mang phong cách truyền thống
Bên cạnh căn nhà thiết kế hệ thống mái thái giúp mang lại cho mọi người có được cái nhìn trông giản dị, gần gũi với một phong cách Á Đông kết hợp. Có thể thấy dù có cách trang trí ngày càng thay đổi nhưng với mẫu nhà biệt thự tân cổ điển vẫn mang một phong cách đẳng cấp thời thượng. Do vậy mà cách thiết kế này luôn được nhiều nhà đầu tư ưa chuộng nhất hiện nay.
Căn nhà phố với mặt tiền 10m nét cổ điển
Một mẫu nhà luôn được khá nhiều người ưa chọn để có thể xây dựng phong cách cổ điển này cho một khu nghỉ dưỡng, khách sạn hoặc nhỏ lại là căn nhà phố với mặt tiền 10m. Sở hữu tone màu be kèm trắng nhẹ nhàng, thanh tao toát lên nét mộng mơ cho cả ngôi nhà. Kết hợp khung hàng rào được lựa chọn màu đen huyền bí giúp bật lên được những họa tiết hoa văn.

Thiết kế dạng mái vòm xanh đang là xu hướng cho các mẫu nhà hiện nay
Hệ thống mái vòm với màu xanh trời đậm vừa mang phong cách hoàng gia, vừa giúp căn nhà tăng thêm được độ cao. Với mẫu nhà thiết kế này thích hợp với việc xây dựng nhà từ 3 tầng trở lên, điều này khiến căn nhà bạn tăng thêm phần thẩm mỹ.
Mẫu nhà phố mặt với thiết kế 3 tầng và mái chéo
Căn nhà trên được thiết kế với 3 tầng phong cách hiện đại và phần mái chéo mới lạ giúp căn nhà như tạo thêm được nửa tầng. Điểm quan trọng mà căn nhà hướng tới là không chọn cách bố trí các họa tiết hoa văn chỉ dùng cách bố trí hình khối giúp nhà nổi bật lên. Sử dụng những nguyên vật liệu mắc giá cũng khiến cho căn nhà phố mặt tiền 10m thêm phần thu hút.

Mẫu nhà phố mặt tiền 10m được thiết kế mái chéo hiện đại trẻ trung
Tone màu căn nhà tô lên là màu xanh lá nhẹ nhàng phù hợp với không gian thiên nhiên mát mẻ và tràn đầy năng động. Việc sử dụng tone màu xanh giúp ta nhìn trông thấy mát mẻ nhưng làm giảm bớt một phần màu sắc của cảnh vật xung quanh, màu sắc đồng điệu với khung cảnh tự nhiên. Để có thể giảm bớt đi sự đồng điệu màu sắc thì nên tạo vài chi tiết có kết hợp tone màu gỗ để căn nhà thêm điểm nhấn nổi bật.
Ngôi nhà phố 10m mặt tiền như lâu đài Pháp
Chọn một tone màu vàng cam với các cột nhà màu trắng tạo nên điểm nhấn đan xen nhau và những họa tiết hoa văn cổ điển giúp căn nhà tôn lên nét sang trong. Chọn lựa thiết kế màu trắng đã giúp cho căn nhà giảm bớt đi sự phức tạp khó chịu rối mắt khi nhìn ngắm.

Mẫu nhà mái vòm kết hợp tone màu trắng trông giống lâu đài
Điểm nhấn căn nhà chính là khung cửa gỗ sang chảnh và mái vòm màu xanh đen trông huyền bí lôi cuốn ánh nhìn mọi người. Phần trước mặt tiền được chú trọng xây thiết kế sảnh đá ngay cổng chính và tạo thêm một khu vực gara riêng được chủ nhà khéo léo thiết kế.
Mẫu nhà phố mặt tiền 10m với tone màu xám
Bức tường nhà màu trắng bao quanh hệ thống cửa được thiết kế tối giản hết mức, không có những hoa văn phức tạp trên cửa. Điều này góp phần nâng lên vẻ đẹp và giúp căn nhà chỉ tập trung vào thiết kế Pháp cổ. Mái nhà được tạo nên bằng cách lớp mái với những độ cao và kích thước khác nhau đã khiến cho phần mái trở thành yếu tố quan trọng để trang trí cho căn nhà.

Mẫu nhà phố với tone màu xám hiện đại
Nếu nhìn hướng trực diện căn nhà ta có thể thấy kết cấu phi đối xứng nhưng lại kết hợp rất hài hòa. Phần mái phía khối chính và phụ cứ ngỡ chúng được xếp ngẫu nhiên nhưng thật ra đã được sắp xếp sẵn với những cạnh mái đặt song song nhau. Khiến người nhìn có thể thấy được lớp trước rồi đến lớp sau giống như sóng biển nối nhau.
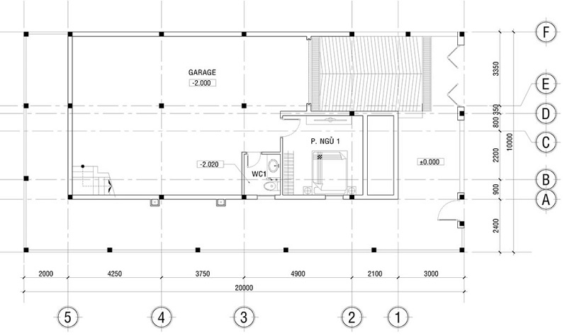
Bản vẽ tham khảo công năng của tầng hầm
Tại tầng hầm ta có thể thấy một không gian khá rộng được thiết kế để làm gara để đỗ xe, diện tích khá thông thoáng nên gia chủ có thể đậu được 2 chiếc xe hơi dưới hầm. Căn nhà có thêm một phòng ngủ và nhà WC dành riêng cho người giúp việc ở lại.

Bản vẽ tham khảo tầng hầm
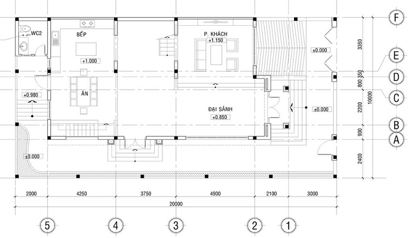
Bản vẽ tham khảo công năng của tầng 1
Với tầng 1 gia chủ sẽ tạo nên một không gian phòng khách với bộ bàn ghế khá lộng lẫy được đặt cách riêng với phía cầu thang bộ. Khi bước qua cửa chính tại tầng 1 đó là không gian đại sảnh để có thể mời được nhiều khách ở tại không gian này. Tiếp đến phía sau không gian nhà bếp và phòng ăn, khu này được tách biệt với khu phòng khách để đảm bảo riêng tư cho mọi người.

Bản vẽ tham khảo tầng 1
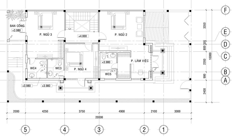
Bản vẽ tham khảo công năng của tầng 2
Một diện tích khá rộng rãi thích hợp cho tầng 2 để xây các phòng ngủ cho mọi thành viên trong gia đình. Một phòng ngủ dạng master sẽ được ưu tiên không gian và góc nhìn đẹp, thoáng mát, trong phòng có phòng thay đồ và phòng làm việc. Thêm hai phòng ngủ đặt xen kẽ đối xứng nhau và nhà vệ sinh riêng mỗi phòng tạo không gian riêng tư. Mỗi phòng đều được bố trí cửa sổ để giúp đón được ánh nắng và gió tràn ngập trong không gian phòng.

Bản vẽ tham khảo tầng 2
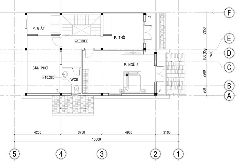
Bản vẽ tham khảo công năng của tầng áp mái
Do kiểu nhà có thiết kế mái thái nên tạo thêm một khoảng không gian trống cho tầng áp mái. Trên tầng có thêm một căn phòng ngủ dành cho khách đến ở lại và có một phòng thờ được đặt hướng về phía mặt tiền. Phía cuối nhà có phòng giặt đồ và nơi phơi đồ tiện lợi trên tầng áp mái.

Bản vẽ tham khảo tầng áp mái
Trên đây là bao gồm những mẫu nhà phố mặt tiền 10m và có cả bản vẽ tham khảo chi tiết các bố cục trong nhà mà bạn có thể tham khảo. Hy vọng những mẫu kiến trúc sang trọng trên sẽ giúp bạn có thêm ý tưởng để thiết kế căn nhà của mình.














