Mặt bằng chung cư là gì? Cách đọc mặt bằng chính xác nhất
Mặt bằng chung cư là một trong những yếu tố mang tính quyết định đến toàn bộ cảnh quan chung của chung cư. Thực chất, để đánh giá một mẫu chung cư đẹp người ta chỉ cần nhìn vào mặt bằng để đánh giá. Vậy mặt bằng của căn hộ chung cư là gì? Cách đọc bản vẽ như thế nào?... Chúng ta sẽ cùng nhau tìm hiểu bài viết này để có câu trả lời các bạn nhé.
Mặt bằng chung cư là gì?
Mặt bằng thực chất đây là một cụm từ chuyên ngành dành cho ngành xây dựng. Vậy theo đúng nghĩa của chuyên ngành xây dựng thì mặt bằng chung cư là hình chiếu vuông góc của toàn bộ tòa chung cư lên mặt phẳng hình chiếu. Thực chất, hình chiếu lên mặt phẳng được biểu diễn trên giấy là sau khi đã bóc mái.

Mặt bằng chung cư là gì
Tuy nhiên, nếu định nghĩa như vậy thì sẽ không thể truyền tải được hết thông tin của bản vẽ. Cụ thể như thông tin của cửa sổ, cửa chính, cửa phòng, cột… Chính vì vậy mà các kỹ sư đã dùng một mặt phẳng có trong tưởng tượng song song với mặt phẳng hình chiếu. Từ đó chúng ta mới có được đầy đủ các thông số cần thiết cũng như tính chính xác của thông tin trong bản vẽ.
Nếu nhìn vào mặt bằng chung cư chúng ta có thể biết được: Vị trí, kích thước, lối ra vào, cửa chính, cửa phụ, vách ngăn phòng, hành lang, ban công, lối đi và kể cả là các đồ nội thất ở trong nhà…
Trong toàn bộ bản vẽ thi công xây dựng thì bản vẽ quan trọng nhất chính là mặt bằng. Từ mặt bằng các thì kỹ sư, thợ thi công công trình… mới có thể bắt tay làm được công việc của mình. Vậy cách đọc bản vẽ này như thế nào? Chúng ta sẽ cùng tìm hiểu phần tiếp theo của bài viết này các bạn nhé.
Cách đọc đúng, chính xác mặt bằng chung cư theo đúng chuyên môn xây dựng.
Không chỉ có chung cư mà bất cứ một công trình xây dựng nào cũng đều phải có mặt bằng tổng thể. Điều đặc biệt khi thiết kế chung cư thì ngoài mặt bằng tổng thể còn có mặt bằng tầng riêng lẻ. Vậy để đọc bản vẽ một cách chính xác thì chúng ta sẽ đọc như thế nào?
Theo như những gì chúng tôi tìm hiểu từ các kỹ sư xây dựng thì trình tự đọc bản vẽ đối với mặt bằng chung cư sẽ được tiến hành lần lượt theo quy luật sau:
Đọc mặt bằng tổng thể đối với toàn bộ chung cư.
Đây là thông tin mà chúng ta cần khai thác trước khi triển khai các công trình. Cụ thể, nhìn vào mặt bằng tổng thể các kỹ sư, thợ thi công sẽ biết cách phân khu một cách chính xác. Đồng thời đây cũng là thông tin để lấy số đo diện tích cụ thể.

Mặt bằng tổng thể đối với toàn bộ chung cư
Khi nhìn vào bản vẽ và đối chiếu với thực địa họ sẽ đánh số và ghi chú một cách cẩn thận. Hơn thế nữa thì nhìn vào bản vẽ tổng thể mọi người sẽ biết được nhiệm vụ cụ thể của mình là gì.
Đọc mặt bằng các tầng điển hình của các tầng chung cư.
Thực chất, các chung cư hiện nay đều có rất nhiều tầng. Đa số các tầng sẽ được thiết kế giống nhau. Chính vì vậy sẽ có mặt bằng tầng điển hình. Nhìn vào mặt bằng tầng điển hình, chúng ta sẽ biết được diện tích cụ thể của các căn hộ. Đây cũng là thông tin cần thiết để đối với những ai có nhu cầu mua căn hộ. Bạn sẽ nhìn vào mặt bằng chung cư tầng điển hình để chọn lựa.
Đọc bản vẽ với mặt bằng của căn hộ chung cư
Mặt bằng chi tiết căn hộ chung cư thể hiện rất chi tiết và cụ thể toàn bộ thông số của căn hộ chung cư. Cụ thể, dựa vào mặt bằng chúng ta sẽ biết được những thông tin sau:

Mặt bằng của căn hộ chung cư
- Đầu tiền phải nói đến đó là kích thước thông thủy của mỗi phòng. Ở đây có bao gồm cả chiều rộng và chiều dài.
- Tiếp đến là thể hiện các thông số về kích thước các mặt tường, vách ngăn cụ thể là: Bề rộng, chiều dài và cả bề dày của tường.
- Đối với mặt bằng các căn hộ còn thể hiện cả kích thước của mặt cắt cột chống.
- Ngoài những chi tiết trên, chúng ta còn có thể đọc được cả bản vẽ của các món đồ nội thất có trong căn hộ như: Giường, tủ, bàn ghế, bồn tắm, nhà vệ sinh, bếp…
- Đối với những căn hộ có cầu thang thì biểu diễn trên mặt bằng sẽ là một đường gấp khúc và cs ghi chú ở dưới.
Nói chung là trong toàn bộ bản vẽ thì bản vẽ mặt bằng chung cư là quan trọng nhất. Đây sẽ là thông tin để chúng ta đọc bản vẽ một cách chính xác nhất.
Một số mẫu thiết kế mặt bằng chung cư thông dụng hiện nay.
Trên thực tế, nếu chúng ta dạo quanh thị trường chung cư bất động sản mới thấy được sự đa dạng của các mẫu thiết kế. Để giúp các bạn có thêm nhiều thông tin để tham khảo, chúng tôi sẽ giới thiệu một số mẫu chung cư đang nhận được phản hồi tích cực của khách hàng. Cụ thể là:
Mặt bằng chung cư hình chữ L.
Đây được coi là mặt bằng phổ thông nhất hiện nay tại các chung cư lớn, nhỏ trên cả nước. Đặc điểm của những căn hộ này là có 4 căn ở góc trong đó có 2 căn kẹp ở lõi thang. Thường thì lõi thang sẽ nằm ở vị trí trung tâm và được 2 căn hộ cặp ở 2 bên.

Mặt bằng chung cư hình chữ L
Mặt bằng thiết kế theo hình chữ L và chữ V
Đối với mặt bằng theo thiết kế này sẽ có 5 căn góc. Cũng giống như cách thiết kế chữ L ở trên sẽ có 2 căn được đặt ở lõi thang và những căn còn lại sẽ ở giữa. Ngoài ra, đối với block là chữ V chúng sẽ có thiết kế khác với những căn còn lại.
Mặt bằng lõi trung tâm
Đối với mẫu thiết kế này sẽ có 8 căn hô hoặc cũng có thể là 8 tầng chung cư điển hình. Các lõi thang sẽ được thiết kế đặt ở giữa các block và được thiết kế theo dạng hình vuông. Một điều đặc biệt nữa trong thiết kế đó là có một căn góc và 1 căn giữa sẽ đi kèm với nhau.
Mặt bằng chung cư hình chữ Z
Thường mẫu chung cư này sẽ có 6 căn hộ ở góc. Một điểm giống đối với những căn hộ trên mà ai cũng nhìn thấy đó là chúng sẽ vẫn có 2 căn hộ cặp lõi thang và những căn còn lại sẽ ở giữa.
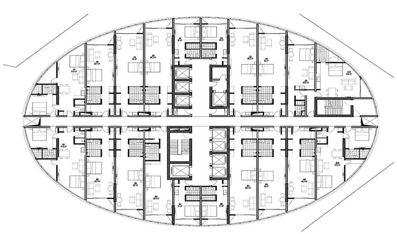
Mặt bằng hình tròn
Mẫu thiết kế này nghe có vẻ khá độc và lạ đúng không các bạn. Tuy nhiên, đã có rất nhiều dự án chung cư lựa chọn lối thiết kế này cho công trình của mình. Ngoài hình tròn thì còn một hình khác có vẻ thông dụng hơn đó là hình elip. Mẫu thiết kế này chắc chắn sẽ khiến khách hàng ấn tượng hơn rất nhiều.

Mặt bằng chung cư hình elip
Mặt bằng chung cư hình chữ T
Với những mẫu thiết kế chung cư hình chữ T sẽ có tới 6 căn góc. Tuy nhiên, cũng có rất nhiều công trình người ta sẽ thiết kế theo kiểu kết hợp giữa cả L và T. Khi 2 chữ này ghép với nhau sẽ tạo thành 1 chữ cái khác đó là chữ E. Nếu lựa chọn theo kiểu thiết kế này sẽ có tới 8 căn góc. Còn trường hợp để riêng lẻ T và L sẽ lên tới 16 căn góc.
Mặt bằng chung cư hình lục giác
Đây cũng là một mẫu khá đẹp và hấp dẫn. Kiểu thiết kế cũng khá giống với thiết kế lõi trung tâm. Chỉ khác ở chỗ là lõi trung tâm sử dụng là hình vuông còn đây sẽ sử dụng hình lục giác. Những chung cư này sẽ có 6 góc đối với mặt bằng tầng điển hình.
Như vậy, có thể thấy rằng mẫu thiết kế mặt bằng chung cư khá đa dạng về mẫu mã. Mỗi một loại có sự độc đáo riêng và không loại nào giống loại nào. Điều này khẳng định sự tài ba của những kiến trúc sư thời đại này. Hy vọng, bài viết đã cung cấp cho các bạn nhiều kiến thức bổ ích liên quan đến xây dựng.














