Download bản vẽ CAD nhà 2 tầng- Hướng dẫn chi tiết 2021
Để có thể tiến hành thi công và xây dựng nhà 2 tầng đẹp thì bạn cần bản vẽ ngôi nhà. Việc download bản vẽ cad nhà 2 tầng sẽ giúp bạn có đầy đủ chi tiết các bộ phận của ngôi nhà từ mặt tiền, mặt hậu cho đến các căn phòng. Với bản vẽ chi tiết, chủ nhà có thể hình dung ra được căn nhà trên thực tế như thế nào để đảm bảo việc căn nhà sẽ được xây theo ý muốn và sở thích của gia chủ. Hãy cùng https://batdongsanexpress.vn/ tìm hiểu chi tiết.
Bản vẽ CAD là gì và các mẫu nhà 2 tầng cơ bản
Bản vẽ CAD là thứ không còn quá xa lạ trong lĩnh vực xây dựng.CAD là viết tắt của từ Computer Aided Draft hoặc Computed Assisted Design.
Với những công trình xây dựng hiện này thì bản vẽ CAD là rất quan trọng vì nó sẽ cho chủ nhà hình dung được căn nhà trong thực tế sẽ như thế nào.
Trong thực tế, bản vẽ CAD sẽ được vẽ trên đồ họa máy tính và được thực hiện bởi các kiến trúc sư. Tất nhiên, việc thiết kế trên đồ họa máy tính sẽ có nhiều lợi ích như bản vẽ sẽ chi tiết và trực quan hơn so với bản vẽ thủ công bằng tay. Với CAD, kiến trúc sư sẽ có thể vẽ đi sâu vào các chi tiết như nhà tắm, nhà vệ sinh, phòng ngủ với độ chính xác vô cùng cao. Không những trong kiến trúc mà các ngành khiến liên quan đến thiết kế cũng được thiết kế qua CAD.
Đối với các công trình nhà ở 2 tầng, bạn có thể download bản vẽ CAD nhà 2 tầng để sử dụng. Việc download sẽ giúp bạn tiết kiệm thời gian cho việc vẽ lại hoặc có thể dùng để làm tham khảo cho bản vẽ của của ngôi nhà mình.

Bản vẽ CAD là gì và các mẫu nhà 2 tầng cơ bản
Download bản vẽ nhà 2 tầng thông dụng
Tất cả các bản vẽ dưới đây đều là các mẫu bản vẽ CAD 2 tầng 5×15. Hãy cùng tham khảo nhé. Dưới đây là một số bản vẽ CAD nhà 2 tầng thông dụng.
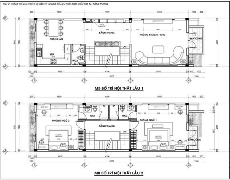
Bản vẽ số 1
Bản vẽ thứ nhất sẽ là mẫu nhà phố 2 tầng 5x15m mà chúng tôi muốn giới thiệu, bạn có thể download bản vẽ CAD 2 tầng này nếu thấy phù hợp.
Về phần nội thất sẽ được bố trí như sau:
- Tầng 1 bao gồm 1 phòng khách, 1 phòng ngủ, 1 phòng bếp và 1 nhà vệ sử dụng chung sẽ được đặt ở cuối góc nhà.
- Tầng 2 sẽ bao gồm 2 phòng ngủ, 1 nhà vệ sinh chung, 1 phòng thờ cùng với 1 sân thượng.
Với nhà phố thì cách thiết kế và bồ trí này vô cùng khoa học bởi nó tạo sự tiện nghi cho tất cả các không gian trong ngôi nhà. Duy nhất đối với phòng thờ thì bạn có thể bố trí lại vị trí sao cho phù hợp với phong thủy của gia đình.
Bản vẽ số 2
Bản vẽ số 2 sẽ tương tự bản vẽ số 1 nhưng kiến trúc sư sẽ cho thêm 1 gara xe. Vì vậy mà không gian sẽ có phần thu hẹp lại nếu ta giữ nguyên diện tích đất xây dựng.
Không gian nhà sẽ bao gồm:
- Tầng 1 có 1 phòng khách, 1 phòng ngủ, bếp và phòng ăn, còn nhà vệ sinh sẽ được đặt cuối căn nhà.
- Tầng 2 sẽ bao gồm 2 phòng ngủ và 1 phòng thờ.
Lưu ý về phần phòng thờ sẽ được bố trí sao cho phù hợp với phong thủy của gia đình. Bạn có thể download bản vẽ CAD nhà 2 tầng với bản vẽ số 2 để tham khảo.
Bản vẽ số 3
Bản vẽ cho mẫu nhà 2 tầng số 3 này sẽ bao gồm 3 phòng ngủ, 1 phòng thờ, 1 phòng khách và 1 không gian bếp.
Khi bạn download bản vẽ CAD nhà 2 tầng, bạn sẽ có chi tiết bản vẽ bao gồm:
- Tầng 1 gồm 1 phòng khách và 1 phòng ăn đi cùng 1 căn bếp, cuối cùng là nhà vệ sinh được đặt ở cuối không gian nhà để tối đa hóa việc sử dụng diện tích.
- Tầng 2 gồm 2 phòng ngủ với 1 phòng thờ và 1 nhà vệ sinh chung. Vị trí phòng thờ sẽ được đặt tại vị trí hợp phong thủy với chủ nhà miễn sao không đặt cạnh nhà vệ sinh.
Bản vẽ số 4
Với bản CAD số 4 cho nhà 2 tầng thì công năng ngôi nhà chỉ bao gồm 2 phòng ngủ, 1 phòng khách, 1 phòng ăn và 1 gian bếp. Lúc này, nhà vệ sinh sẽ được đặt cho từng không gian riêng để tạo sự thoải mái và thuận tiện cho tất cả thành viên trong gia đình. Tuy nhiên, việc sử dụng riêng nhà vệ sinh cần được cân nhắc về không gian và chi phí. Với tầng 2 thì chỉ cần đặt 1 nhà vệ sinh là đủ.
Bản vẽ số 5
Với kết cấu bản vẽ số 5 thì sẽ phù hợp cho những ngôi nhà có diện tích lớn so với 4 mẫu phía trên. Đề xuất của mẫu số 5 sẽ là 4 phòng ngủ và 1 phòng thờ. Nếu bạn không theo các tín ngưỡng tôn giáo nào thì có thể xây dựng 5 phòng ngủ vì việc dành 1 không gian lớn cho phòng thờ là không quá quan trọng.

Download bản vẽ nhà 2 tầng thông dụng
Bản vẽ CAD nhà 2 tầng sẽ bao gồm những gì?
Khi download bản vẽ CAD nhà 2 tầng, bộ hồ sơ sẽ bao gồm:
- Bản vẽ mặt bằng bố trí nội thất cho không gian nhà với đầy đủ chi tiết cho các không gian riêng lẻ.
- Bản vẽ CAD có phối cảnh 3D các góc nhìn chính và góc nhìn phụ dựa trên tổng quan ngôi nhà.
- Bản vẽ thi công nhà 2 tầng với mặt đứng, mặt cắt, và bản vẽ trục A-C
- Bản vẽ chi tiết từng mặt sàn, bản vẽ mái và bản vẽ ban công.
- Bản vẽ mặt trang trí bao gồm đèn trần, bản vẽ cột sảnh và bản vẽ hiên nhà.
- Bản vẽ đầy đủ các chi tiết về cửa, mặt kính, vách kính, các chi tiết nan sắt bảo vệ với đầy đủ các thông tin chi tiết.
- Bản vẽ chi tiết mặt đứng của ngôi nhà, các loại vật liệu được sử dụng và bản ghi chú kích thước hỗ trợ cho việc thi công
- Các bản vẽ CAD về các phần khác trong ngôi nhà.
Các bản vẽ liệt kê bên trên sẽ bao gồm trong hồ sơ về kiến trúc ngôi nhà. Hồ sơ này không bao gồm chi tiết các thiết kế khác như thời gian thiết kế và setup các loại vật liệu, bao gồm:
- Bản vẽ mặt bằng của việc cấp điện chiếu sáng cho ngôi nhà 2 tầng
- Bản vẽ đường dây lắp đặt điện cho ngôi nhà theo đúng nguyên lý
- Bản vẽ chi tiết cáp thông tin liên lạc, cáp truyền hình, Internet cáp quang và hệ thống camera (nếu cần).
- Bản vẽ hệ thống cấp điện cho khu vực sân vườn của ngôi nhà
- Bản vẽ hệ thống chống sét với đầy đủ các chi tiết và thông số
- Bản vẽ tổng hợp chi tiết các loại vật tư cho cáp quang dây điện với đầy đủ chủng loại.
- Bản vẽ chi tiết hệ thống cấp nước sinh hoạt cho cả gia đình
- Bản vẽ chi tiết hệ thống thoát nước cho nhà 2 tầng
- Sơ đồ bản vẽ thiết kế hệ thống thoát nước cho nhà vệ sinh và phòng tắm
- Bản vẽ chi tiết các cấu tạo của hệ thống các ống thoát nước của ngôi nhà
- Bản vẽ chi tiết các loại vật tư được sử dụng trong hệ thống cấp và thoát nước của ngôi nhà.
Lưu ý hệ thống điện và cấp thoát nước là những hệ thống không thể thiếu đối với bất cứ không gian nhà ở 2 tầng nào, vì vậy bản cần tham khảo một cách chi tiết nhất. Khi thi công các hệ thống này, cần đảm bảo sự chắc chắn để tránh các sự cố xảy ra về hệ thống điện và hệ thống cấp thoát nước trong tương lai, gây cản trở sinh hoạt và sự an toàn của cả gia đình và ngôi nhà.

Bản vẽ CAD nhà 2 tầng sẽ bao gồm những gì?
Như vậy, https://batdongsanexpress.vn/ vừa chia sẻ đến bạn các bản download bản vẽ CAD nhà 2 tầng. Một bộ bản vẽ CAD hoàn chỉnh sẽ bao gồm nhiều bản vẽ nhỏ khác. Việc có đầy đủ các bản vẽ này sẽ giúp chủ nhà hình dung được căn nhà trong thực tế của mình như thế nào.














