Cách thiết kế nhà 2 tầng 100m2 với kiến trúc hiện đại
Hiện nay với xu hướng thiết kế nhà 2 tầng 100m2 theo kiến trúc hiện đại và có thể kết hợp truyền thống đang được rất nhiều người tìm kiếm mẫu để xây dựng. Sở hữu diện tích 100m2 là một không gian khá hoàn hảo để bạn có thể xây dựng tổ ấm cho các thành viên gia đình mình. Dưới đây bao gồm nhiều thiết kế chi tiết về cả tổng quan bên ngoài lẫn bên trong không gian sinh sống.

Kiểu nhà 2 tầng 100m2 hiện đại
Khi bắt tay vào xây dựng thiết kế nhà 2 tầng 100m2 thì các chủ nhà phải để ý đến việc thiết kế bên ngoài căn nhà và cả bên trong nhà cũng phải cuốn hút và tiện nghi. Bên cạnh đó yếu tố phong thủy là điều không để bỏ qua, phải đảm bảo được an toàn cho mọi người sử dụng thời gian dài. Bạn cần trang bị đủ kiến thức để xử lý hòa hợp các yêu cầu trên với nhau để xây dựng được căn nhà hoàn hảo nhất.
Thiết kế nhà 2 tầng 100m2 hướng mặt tiền

Bản vẽ mặt bằng tầng 1 nhà mặt tiền
Với diện tích 100m2 rộng rãi cho các gia đình 4 thành viên nên bạn có thể thiết kế cấu trúc không gian mở và các phòng đặt liền kề nhau. Bước vào vị trí đầu tiên ngôi nhà chính là phòng gara với diện tích rộng rãi đủ cho cả xe hơi và xe máy. Phòng kế tiếp là phòng khách sẽ được đặt thêm những chậu cây kiểng trang trí cho không gian này thoáng mát và giảm khói bụi vào nhà.
Nối tiếp đến các không gian trong nhà chính là phòng ăn và phòng bếp sẽ được kết hợp lại với nhau để thuận lợi việc đi lại. Ngay giữa phòng khách và phòng bếp sẽ là cầu thang hướng lên tầng trên và có bên dưới cầu thang bố trí nhà vệ sinh dùng chung cả nhà. Phía cuối nhà có một phòng ngủ cho người lớn tuổi trong nhà bạn để họ di chuyển dễ dàng, có thiết kế nhà WC riêng tại phòng.

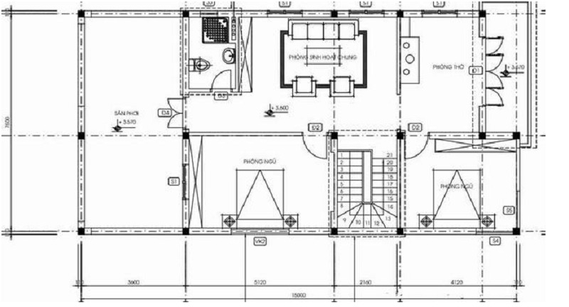
Bản vẽ mặt bằng tầng 2 nhà mặt tiền
Lên tới tầng 2 bạn sẽ thấy được các kiến trúc sư chọn lựa việc thiết kế phía trước hướng mặt tiền chính là phòng thờ, thể hiện sự trang trọng và trang nghiêm. Phía bên phải căn nhà sẽ tạo nên lối đi riêng do đó việc xây các phòng ngủ tại tầng 2 sẽ hẹp diện tích lại một ít. Nhà vệ sinh được xây dùng chung và kế bên sẽ có phòng để giặt đồ cho gia đình. Còn một phòng ngủ nữa sẽ được đặt cuối có cả nhà vệ sinh riêng tiện lợi khi sử dụng.
Thiết kế nhà 2 tầng 100m2 4 phòng ngủ

Bản vẽ mặt bằng tầng 1 nhà có 4 phòng ngủ
Với thiết kế nhà 2 tầng 100m2 này sẽ có cấu trúc khác hoàn khác so với các mẫu nhà 2 tầng dạng chữ L hay dạng mái thái, do chúng tạo thành khối liên thông và kết hợp chung thành 2 dãy. Phía bên phải căn nhà sẽ thiết kế phòng khách đặt đối diện gara ô tô.
Nằm cạnh phòng khách sẽ là 2 phòng ngủ và ngay trong phòng ngủ sẽ có nhà vệ sinh riêng tiện lợi cho việc sử dụng mỗi người. Bên còn lại đối diện chính là phòng bếp và phòng ăn được liên thông với nhau gần cửa sổ và cửa hậu nhằm giúp căn nhà thoáng khí đỡ ngột ngạt. Xây thêm một căn phòng WC nhỏ gần phòng bếp để sử dụng cho cả tầng một.

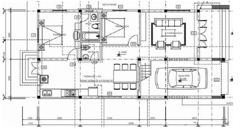
Bản vẽ mặt bằng tầng 2 nhà có 4 phòng ngủ
Bước vào không gian tầng 2 bạn sẽ thấy được tổng quan phòng gồm phòng thờ, phòng sinh hoạt gia đình, phòng vệ sinh và phòng giặt ủi, có thêm sân nhỏ để phơi đồ. Đối xứng lên phía phải của gara sẽ được xây dựng 2 phòng ngủ không gian rộng rãi và phân chia giữa hai phòng là lối lên. Còn phía sau một khu rộng lớn nơi có thể dùng phơi đồ hoặc trồng thêm nhiều cây cảnh trang trí cho không gian nhà thêm sinh động.
Điểm đặc biệt và mới mẻ trong thiết kế nhà 2 tầng 100m2 chính là cách lợp mái tôn làm giả mái ngói với độ nghiêng để thoát nước là 22 độ. Để giúp cả căn nhà có thể tận dụng được nhiều ánh nắng mặt trời và không gian mát thì đồng thời phải thiết kế thêm trần thạch cao giảm ẩm và thoáng khí.
Thiết kế nhà 2 tầng 100m2 sở hữu sân vườn

Bản vẽ mặt bằng tầng 1 nhà có sân vườn
Ngay tại tầng 1 căn nhà ta có thể thấy không gian bao gồm phòng khách xây liên thông với bàn ăn và phòng bếp, thiết kế nhà vệ sinh nằm kế cạnh một căn phòng ngủ. Lối lên cầu thang sẽ được đặt tại một vị trí cạnh nhà WC để giúp giảm diện tích một cách hiệu quả nhất. Không gian bếp được xây theo cấu trúc hình thang để giúp cho không gian nhà trở nên rộng rãi, thoải mái hơn. Căn phòng ngủ được đặt tại tầng trệt sẽ nhận ánh sáng từ giếng trời của nhà là chủ yếu.

Bản vẽ mặt bằng tầng 2 nhà có sân vườn
Tại tầng 2 sẽ có 2 phòng ngủ và 1 nhà vệ sinh sử dụng chung cho cả tầng để tiện dụng hơn trong sinh hoạt. Phòng ngủ thứ nhất sẽ đặt ngay hướng mặt tiền của căn nhà để giúp phòng ngủ đón ánh sáng trực tiếp. Giúp bạn có thể tiếp thêm năng lượng mỗi sáng và không khí trong phòng sẽ được điều hòa.
Mẫu nhà nhà 2 tầng 100m2 đơn giản và sang trọng được ưa chuộng hiện nay

Mẫu nhà 2 tầng mái chữ A
Với mẫu nhà 2 tầng sẽ mang xu hướng tân cổ điển với nét uyển chuyển của Châu Âu và các chi tiết uốn lượn truyền thống có trụ cột chắc chắn. Dựa trên những tỉ lệ chuẩn trong kiến trúc để xây dựng nên một công trình cuốn hút ấn tượng trong mắt người xem. Với điểm chéo chữ A phần mái được xây dựng thận trọng và bê tông chắc chắn sử dụng dán mái ngói thái đen. Hệ thống cổng kiểu cách tân nhưng vẫn chút cổ điển với những họa tiết hoa sắt có ô thoáng.

Thiết kế nhà 2 tầng 100m2 dạng hàng rào sọc ngang lạ mắt
Sở hữu một thiết kế hiện đại, mang đậm phong cách trẻ trung không kém phần sang trọng với tone màu nâu –xám- trắng thể hiện sự hài hòa tổng quan căn nhà. Được thiết kế với mẫu nhà mái thái và màu sắc mái khá ấn tượng giúp căn nhà bạn cũng được thay đổi nổi bật hơn. Xung quanh nhà được trồng thêm nhiều cây xanh kết hợp với cổng và tường dạng sọc ngang tăng tính thẩm mỹ.

Mẫu nhà có mái ngói đỏ
Nét tương đồng với những căn nhà 2 tầng truyền thống của người dân Việt Nam từ xưa đó là mái ngói đỏ, chắc hẳn khi nhìn thấy mái ngói này ký ức văn hóa Việt sẽ ùa về. Để tăng thêm nét truyền thống bạn có thể trồng trang trí cây cau trong sân vườn để làm mát. Phía ban công sẽ được thiết kế bằng kính tạo không gian nhà rộng rãi hơn và tạo thêm vườn cây nhân tạo ở tầng 2 chắc chắn sẽ là nơi thư giãn hợp lý nhất.

Mẫu nhà theo phòng cách Châu Âu
Thiết kế nhà theo phong cách mở kiểu Châu Âu là xu hướng của khá nhiều gia đình ngày nay chọn lựa. Dựa theo phong cách Châu Âu luôn tạo cho giới trẻ một sự tự do trong kiểu cách trang trí, không bị gò bó bởi các tiêu chuẩn truyền thống.
Căn nhà khá phù hợp với những gia đình ở chung nhiều thế hệ với nhau, do cách thiết kế luôn cố tạo không gian riêng tư nhất cho mỗi người. Kèm đó cũng có những không gian chung để mọi người sinh hoạt và gắn kết tình cảm mọi người với nhau.
Đây là tất cả các mẫu và kèm những bản vẽ chi tiết cho các thiết kế nhà 2 tầng 100m2 được nhiều người lựa chọn nhất hiện nay. Mong rằng những thông tin trên sẽ giúp bạn có được một ý tưởng tuyệt vời cho căn nhà lý tưởng của mình.














