Cách giác móng công trình nhanh chóng, tiện lợi
Giác móng công trình là một thuật ngữ chuyên dùng cho dân xây dựng, chính vì thế mà ít người hiểu rõ. Đây là khâu quan trọng trong cách đặt nền móng cho ngôi nhà, quyết định tính thẩm mỹ và độ chắc chắn. Cùng BATDONGSAN EXPRESS tìm hiểu rõ hơn cách giác móng qua bài viết sau đây nhé!
Giác móng công trình là gì?

Giác móng xây dựng là gì?
Giác móng công trình là một giai đoạn vô cùng quan trọng trong việc xây dựng nhà ở. Quá trình này đòi hỏi có kỹ thuật cao, chính xác, vì nó ảnh hưởng trực tiếp đến căn hộ của bạn. Hiểu nôm na, giác móng là bước xác định vị trí các góc vuông, có thể dùng bằng cách thủ công hoặc nhờ vào sự can thiệp của máy móc.
Trên thực tế, giác móng là công đoạn quan trọng trong khâu đào móng đối với dân công trình. Xác định rõ được vị trí các góc là điều kiện tiên quyết để căn hộ của bạn trở nên khang trang, tinh tế hơn bao giờ hết.
Các nhà thầu có dự án xây dựng đều luôn để tâm đến quy trình này. Là những bước đầu tiên trong việc xây dựng và ảnh hưởng trực tiếp đến chất lượng nhà cửa về lâu về dài. Chính vì thế, hãy lựa chọn các ngôi nhà có quy trình làm móng vững chắc để tiến hành mua bán, công việc sẽ nhanh chóng và thuận lợi hơn rất nhiều.

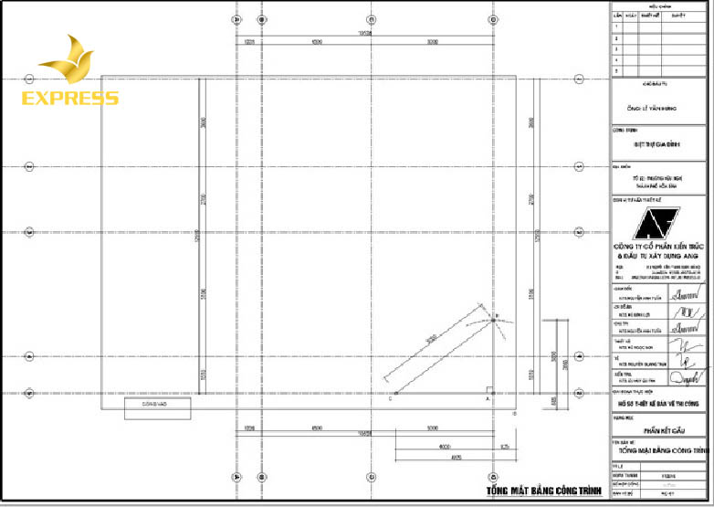
Bản vẽ giác móng công trình
Cách giác móng công trình
Biết được tầm quan trọng của công đoạn giác móng này, nên những nhà đầu tư đã rất chú trọng, và các bước này đều được công bố và theo dõi gắt gao trong quá trình xây dựng. Để thực hiện giác móng một cách chính xác, cần thực hiện các bước sau:
Giác móng theo cách thủ công
- Bước 1: Chuẩn bị cọc nhỏ, dài, 1 cuộn dây dù, búa đóng cọc.
- Bước 2: Xác định các trụ của ngôi nhà, theo các công thức tính toán chuyên môn bạn sẽ dễ dàng tìm được vị trí.
- Bước 3: Xác định tim móng, tim cột rồi hoàn thành.

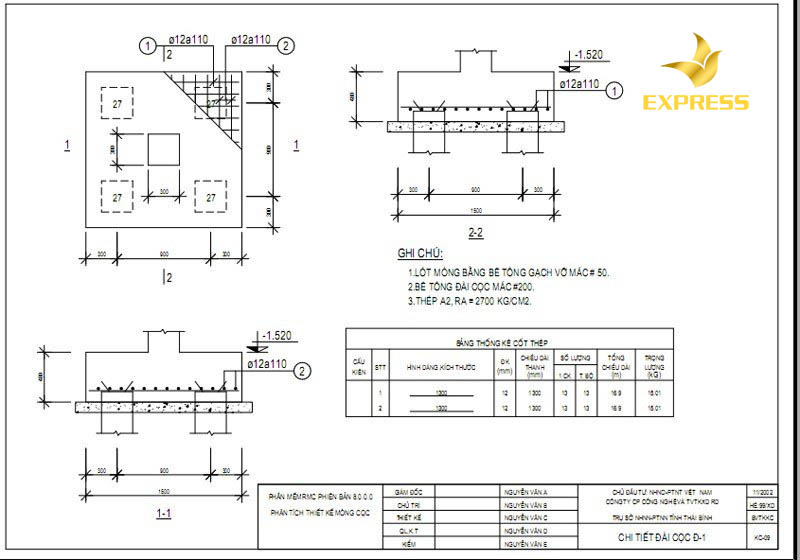
Bản vẽ giác móng
Giác móng có sự hỗ trợ của máy móc
- Bước 1: Tìm mốc, từ mốc chuyền thêm một số mốc thứ cấp ra các vị trí thuận lợi, sau đó tiến hành đo đạc thực tế.
- Bước 2: Dùng máy chuyền các địa điểm vị trụ, cần đặt chính xác vị trí, từ 5 đến 10m để không bị mất khi đào đất hay vận chuyển.
- Bước 3: Khi đào đất, để an toàn và chuẩn xác hơn chỉ nên dùng vôi rải làm dấu, tiếp đó là để máy đào.
Sử dụng máy cần có kỹ năng chuyên nghiệp và hiểu rõ được cách vận hành của máy mới đem lại được kết quả chính xác nhất. Nên tìm những ngôi nhà có giác móng được xây dựng kỹ càng, để có thể dễ dàng hơn trong việc mua bán bất động sản. Những căn nhà này sẽ chắc chắn hơn với độ thẩm mỹ cao, nâng cao thị giác người dùng.
Tiêu chuẩn cần có để giác móng
Để có được một chiếc móng vững chắc và các góc móng đúng vị trí, cần chuẩn bị nhiều tiêu chuẩn để có thể hoàn thành được quy trình này.

Quy trình tìm cột chuẩn
Tiêu chuẩn về dụng cụ
Trước khi bắt đầu thực hiện các quy trình, cần chuẩn bị đầy đủ tất cả các dụng cụ liên quan đến việc đo đạc và hỗ trợ giác móng công trình. Các thiết bị thi công cần đạt được chất lượng kiểm định và các tiêu chuẩn trong quy định.
Tiêu chuẩn về chuyên ngành
Cần có các kỹ năng và kiến thức cụ thể về các đo đạc và xác định vị trí các góc. Điều này rất quan trọng, khi bỏ bớt đi hoặc làm sai sẽ ảnh hưởng đến toàn bộ chất lượng của căn nhà. Chính vì thế cần thực hiện đầy đủ các bước đã để ra, để có một chiếc móng hoàn chỉnh nhất.
Tiêu chuẩn thêm
Tiêu chuẩn này được đề ra do bên chủ thầu và chủ đầu tư đặt ra, nếu như có các yêu cầu cụ thể nào về quy trình. Đối với tiêu chuẩn này, cần xác định tính đúng đắn, có phù hợp hay không và cần có sự bàn bạc thật kỹ lưỡng giữa 2 bên.
Tầm quan trọng của giác móng công trình
Giác móng là thành phần cốt lõi và chủ chốt để các định các góc vuông trong khi đào móng. Đối với những ngôi nhà có giác móng chính xác sẽ tạo được góc nhà chuẩn, mọi vật dụng đặt tại đây cũng trở nên vừa vặn. Điều này giúp ngôi nhà trở tinh tế và gọn gàng hơn trong các thiết kế.

Móng nhà đã được đo đạc xong
Nắm bắt được tầm quan trọng của quy trình này, nhiều nhà đầu tư đã trực tiếp đến quan sát và theo dõi, để chắc chắn mọi việc được làm đầy đủ và chính xác. Đây cũng là cách áp dụng của nhiều nhà thầu. Ngôi nhà càng được chỉn chu hơn về mặt thiết kế, càng tinh tế và tỉ mỉ thì sẽ dễ chiều lòng khách hàng, nâng cao khả năng mua bán trên thị trường.
Việc đo góc sai có thể bạn chưa từng thấy, nhưng trên thực tế đã có nhiều trường hợp xảy ra. Không ít dự án đã phải dỡ bỏ vì làm xác định sai số. Ngoài ảnh hưởng đến ngôi nhà, nó còn ảnh hưởng đến phong thủy, nền móng công việc của chủ nhân. Tầm quan trọng của giác móng công trình rất lớn, các nhà đầu tư hãy nắm bắt để có thể mua bán được những căn nhà tinh tế, bắt mắt nhé!
Các câu hỏi thường gặp

Kỹ thuật giác móng xây dựng
Giác móng công trình là bước làm vô cùng quan trọng trong quá trình xây dựng nhà ở. Nếu được làm đúng theo quy trình, ngôi nhà sẽ trở nên tinh tế và sang trọng, tạo được tiềm năng mua bán bất động sản cao. Từ đó sẽ mang lại nguồn lợi nhuận lớn. Nếu bạn là một người đầu tư sáng tạo, đừng bỏ qua quy trình này nhé. Mọi thông tin chi tiết vui lòng theo dõi qua bản tin thị trường bất động sản tiếp theo của batdongsanexpress.vn.














