Các mẫu nhà ống rộng 4m đẹp và sang chảnh hiện nay
Hiện nay từ khóa nhà ống rộng 4m đang được săn lùng khá nhiều tại Google trong khoảng thời gian vừa qua. Bởi mẫu nhà này sở hữu phần mặt tiền tương đương với các mẫu đất của những gia đình tại thành thị. Qua bài viết sau đây mình sẽ tổng hợp và đưa ra các bản vẽ chi tiết về mẫu nhà ống rộng 4m để bạn có thêm lựa chọn cho căn nhà mình.
Khái niệm về nhà ống rộng 4m là gì?
Cụ thể đây là mẫu nhà với sở hữu phần mặt tiền 4m, được chọn xây dựng tại khu đất có chiều ngang bị hẹp nhưng được lợi về chiều sâu. Có thể hình dung rõ hơn đó là dạng khu đất hình chữ nhật và thường được thấy ở các khu đô thị hoặc thành phố lớn. Thông thường hiện nay thì mẫu nhà này đã được mọi người biết đến và xây nhiều tại các tỉnh thành trên đất nước.

Khái niệm về dạng nhà ống hiện nay
Với mẫu nhà ống rộng 4m sẽ được thiết kế đơn giản và xây dựng nhanh chóng, đồng thời tiết kiệm được số tiền cho tổng chi phí thiết kế xây dựng. Chỉ tầm 500 triệu đến 1 tỷ thì các bạn vẫn có thể xây cho mình một ngôi nhà hiện đại và đầy đủ nội thất tiện ích.
Các loại nhà ống rộng 4m hiện nay?
Hiện nay thì mẫu nhà ống rộng 4m rất đa dạng và thường được xây dựng dựa trên các sở thích hoặc yêu cầu của mỗi hộ gia đình. Nhưng muốn xét trên phong cách xây dựng thì sẽ chia ra 3 loại cơ bản: cổ điển, hiện đại cách tân, tân cổ điển.
Với phong cách cổ điển sẽ có một điểm đặc biệt đó chính là nét sang trọng, nguy nga, một đẳng cấp khó thay đổi trong mọi thời đại. Bên cạnh đó lại mang một điểm hạn chế chính là nếu chọn xây dựng trên diện tích mặt tiền 4m thì khá hẹp. Do đó nên chọn phong cách hiện đại hoặc tân cổ điển sẽ là phương án tối ưu nhất hiện nay về cả không gian và chi phí xây dựng.
Cách thiết kế mái sẽ được chia thành nhiều loại khác nhau như mái bằng, mái bằng, mái chéo… Với nhu cầu của mọi người ngày càng đa dạng nên hình dáng mái cũng được đổi mới và thiết kế phù hợp với tổng thể một căn nhà giúp căn nhà được hoàn hảo nhất.
Về số lượng tầng của mẫu nhà ống rộng 4m thì tùy vào nhu cầu của các gia chủ có thể chọn: nhà cấp 4, nhà 2 tầng, nhà 3 tầng, nhà 4 tầng… Với nhiều gia đình muốn sử dụng căn nhà mình ở để kinh doanh các tầng dưới thì có thể chọn xây 5 tầng trở lên.
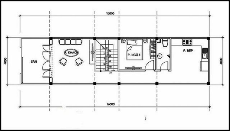
Tham khảo các bản vẽ của mẫu nhà ống rộng 4x20m có 2 tầng
Khi bạn sở hữu một mảnh đất có diện tích 4x20m thì bạn có thể bản vẽ dựa theo sở thích cũng như nhu cầu của gia đình mình. Do chiều dài 20m khá ổn định nên bạn có thể đặt tại tầng 1 các không gian phòng khách hoặc nơi để gia đình sinh hoạt gặp mặt nhau.
Đầu tiên là phòng khách sau đó sẽ tiếp phòng ngủ được xây liền kề nhau và tiếp đến sẽ là cầu thang để lên tầng 2. Tiếp đến chính là không gian sinh hoạt chung của cả gia đình và sẽ được đặt gần ngay phòng bếp và phòng ăn để mọi người thuận tiện đi lại. Cuối cùng tầng 1 sẽ là nhà vệ sinh để cho mọi người khi ở tầng trệt có thể dễ dàng sử dụng.
Bản vẽ mặt bằng của căn nhà ống rộng 4x20
Tại tầng 2 đầu tiên sẽ là 2 căn phòng ngủ được đặt gần nhau và cách nhau giữa cầu thang lên xuống. Phía trước hướng về mặt tiền sẽ được làm vị trí phòng thờ của gia đình để thể hiện sự trang trọng. Phần ban công trước tầng 2 nên thiết kế bằng kính để tăng thêm không gian cho căn nhà và có thể trồng thêm cây cảnh cho sinh động. Tại cuối tầng 2 sẽ là nơi để giặt và phơi đồ để gia đình, kế bên sẽ là nhà vệ sinh sử dụng chung cho mọi người.
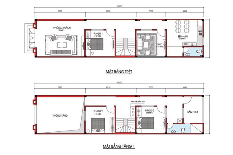
Tham khảo các bản vẽ của mẫu nhà ống rộng 4x20m có 3 phòng ngủ

Bản vẽ mặt bằng tầng 1 của căn nhà ống 4x20 có 3 phòng ngủ
Tầng 1 của căn nhà được trang trí bố cục một cách quen thuộc phía trước sẽ là một khoảng sân để đỗ xe. Sau đó được ngăn bởi cửa chính để bước tới căn phòng khách, tiếp sẽ là căn phòng ngủ ngăn cách phòng khách chính là cầu thang. Phía cuối tầng sẽ là phòng bếp và phòng ăn của gia đình, kèm với nhà vệ sinh dùng cho các thành viên khi ở tầng 1. Tại tầng 1 hướng của toàn bộ các phòng được đặt toàn bộ sang bên trái.

Bản vẽ mặt bằng tầng 2 của căn nhà ống 4x20 có 3 phòng ngủ
Khi bước lên cầu thang lên tàng 2 thì hướng về phía ban công sẽ là phòng thờ một nơi cần được trang trí nghiêm trang và trang trọng nhất. Phía bên còn lại cầu thang sẽ là 2 phòng ngủ đặt cạnh nhau và sẽ ngăn cách nhau bằng nhà vệ sinh dùng chung.
Tổng quan các mẫu nhà ống rộng 4m có thể tham khảo qua

Mẫu nhà mái ngói cách tân lạ mắt

Mẫu nhà ống cao 4 tầng rộng 4m

Mẫu nhà ống rộng 4m hiện đại

Mẫu nhà ống với thiết kế kinh doanh kết hợp nhà
Nguyên tắc trong quá trình thiết kế dạng nhà ống
Khi khu đất của bạn sở hữu chỉ với 4m mặt tiền để thiết kế được một căn nhà ống có thể nói là điều không dễ dàng chút nào. Nhưng các thông tin dưới đây sẽ giúp bạn có thêm biện pháp chuẩn xác trong quá trình thiết kế.
Chọn lựa một phong cách phù hợp
Do bạn sở hữu một diện tích mặt tiền 4m quá nhỏ nên bạn cần phải hướng tới kiểu cách hiện đại để có thể loại bỏ được hạn chế này. Cách tạo các đường nét cũng như dạng hình khối nhà trông giúp căn nhà bạn trở nên tối ưu hơn không gian và diện tích nhà cũng được mở rộng thêm. Với cách thiết kế mới lạ này sẽ giúp cho căn nhà bạn giảm chi phí hơn với những cách khác.
Bố trí bố cục căn nhà
Việc bạn trang trí bố cục các phòng cũng khá quan trọng, bạn nên chọn cách bố trí theo phong cách mở. Từng căn phòng trong căn nhà bạn cần tạo sự liên kết với nhau để chúng trông hài hòa và giúp căn nhà thông thoáng hơn.
Ánh sáng
Có thể thấy được mẫu nhà ống rộng 4m sẽ là một không gian khá hẹp và khó nhận được ánh sáng chỉ có hướng mặt tiền là được ánh sáng chiếu vào. Bởi vậy bạn nên thiết kế nhiều cửa sổ cho căn nhà mình để giúp chúng có thể đón được nhiều nguồn sáng vào và lấy được gió từ trời vào nhà. Một phương án tối ưu là bạn có thể xây thêm giếng trời để giúp nhà bạn thoáng mát hơn.
Trên đây là tổng hợp những mẫu nhà ống rộng 4m mà bạn có thể chiêm ngưỡng và tham khảo thêm được nhiều ý tưởng từ các mẫu thiết kế nhà hiện đại ngày nay. Mẫu nhà ống rộng 4m thật sự là một mẫu nhà lý tưởng thích hợp với nhiều gia đình trẻ hiện nay. Hy vọng các thông tin trên sẽ bổ ích và giúp bạn có thể có thêm ý tưởng cho căn nhà tương lai chính mình.














