Bản vẽ trung tâm thương mại đúng tiêu chuẩn, chất lượng nhất 2021
Những năm gần đây xu hướng xây dựng trung tâm thương mại ngay trong nội khu các dự án bất động sản đang ngày càng phổ biến. Nó không chỉ là thước đo năng lực mà còn mang đến nhiều lợi ích cho các chủ đầu tư và các nhà phát triển bất động sản. Chính vì thế các dự án trung tâm thương mại ngày càng được chú trọng. Cùng batdongsanexpress.vn tìm hiểu bản vẽ trung tâm thương mại theo đúng tiêu chuẩn chất lượng 2021.
Hiểu rõ về tiêu chuẩn xây dựng trung tâm thương mại
Trước hết để tìm hiểu rõ về bản vẽ trung tâm thương mại, chúng ta cần biết có những loại trung tâm thương mại nào, trung tâm thương mại là gì và tiêu chuẩn để xây từng loại trung tâm thương mại.
Trung tâm thương mại là gì?
"Trung tâm thương mại" hiểu đơn giản chính một loại hình tổ chức kinh doanh thương mại trong thời kỳ hiện đại, khi xu hướng mua sắm ngày càng được chú trọng hơn. Hiện nay, trung tâm thương mại được xây dựng với đa chức năng. Không chỉ là tổ hợp các cửa hàng, cơ sở hoạt động dịch vụ trung tâm thương mại còn là nơi cho thuê các văn phòng hoạt động của các công ty lớn hiện nay.

Trung tâm thương mại Vincom
Để được xây dựng và đi vào hoạt động, trung tâm thương mại cần phải đáp ứng các tiêu chuẩn nghiêm ngặt do Bộ Xây Dựng ban hành. Bao gồm đảm bảo về diện tích kinh doanh quy định, cơ sở hạ tầng phải đảm bảo an toàn cùng những trang bị kỹ thuật . Trình độ quản lý, tổ chức kinh doanh cần đáp ứng nhu cầu phát triển hoạt động kinh doanh và thoả mãn nhu cầu khi sử dụng dịch vụ của khách hàng.
Các Trung tâm thương mại hiện nay được tạo điều kiện được xây dựng tại các trung tâm đô thị và trên khoảng diện tích lớn được cấp phép nhằm đảm bảo được hỗ trợ phát triển toàn diện.
Ngày nay, khi nhu cầu mua sắm những mặt hàng chất lượng, cao cấp ngày càng tăng cao trong khu dân cư, trung tâm thương mại chính là sự lựa chọn tốt nhất, nhanh nhất của mỗi khách hàng.
Hiện nay, trung tâm thương mại là một tổ hợp được xây dựng trong các khu dân cư nhằm hướng đến nhiều mục tiêu kinh doanh, phát triển của các nhà đầu tư, các chủ dự án lớn. Trung tâm thương mại quen thuộc với mọi người nhất đó chính là Vincom.
Tiêu chuẩn xây dựng trung tâm thương mại
Để được cấp phép tiêu chuẩn xây dựng trung tâm thương mại, các chủ đầu tư xây dựng phải lập dự án theo các quy định hiện hành về quản lý đầu tư xây dựng. Lập kế hoạch cụ thể về địa điểm xây dựng dự kiến và đặc biệt trung tâm thương mại phải phù hợp với Quy hoạch phát triển mạng lưới thương mại của địa phương.

Xu hướng phát triển trung tâm thương mại
Trung tâm thương mại được phân hạng theo tiêu chuẩn được ban hành nếu cơ sở kinh doanh thương mại có hoạt động kinh doanh phù hợp với Quy hoạch phát triển mạng lưới thương mại của đại phương.
Ngoài ra, khi đưa ra các đề án xây dựng trung tâm thương mại, các chủ đầu tư phải đảm bảo quy mô, trình độ tổ chức kinh doanh đáp ứng các tiêu chuẩn cơ bản của từng hạng trung tâm thương mại theo quy định.
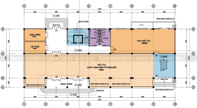
Bản vẽ thiết kế tiêu chuẩn của trung tâm thương mại
Gồm 3 loại trung tâm thương mại được phân chia theo khu vực diện tích và các tiêu chuẩn đánh giá về xây dựng và chất lượng. Tiêu chuẩn đánh giá dưới đây theo quy định của Bộ Xây Dựng ban hành vào năm 2004.
Trung tâm thương mại hạng I:
Trung tâm thương mại loại 1 thường có diện tích từ 50.000 m2 trở lên. Trung tâm thương mại loại 1 cũng cần phải đảm bảo nơi trông giữ xe đủ lớn để phục vụ mô hình kinh doanh . Đảm bảo đầy đủ quy định an toàn, an ninh. Kiểm soát chất lượng các sản phẩm được đăng ký buôn bán tại trung tâm thương mại. Đảm bảo hệ thống phòng cháy chữa cháy và tuần thủ các quy định hiện hành nơi xây dựng trung tâm thương mại.
Trung tâm thương mại hạng II:
Trước tiên để được công nhận là trung tâm thương mại hàng 2 thì trung tâm thương mại phải có diện tích kinh doanh từ 30.000 m2 trở lên. Ngoài ra, khu trông giữ xe cần đảm bảo đủ diện tích và sức chứa.
Đảm bảo an ninh, phòng cháy chữa cháy theo quy định của Bộ Công An với các trung tâm thương mại. Cơ sở vật chất đảm bảo an toàn cho khách hàng khi mua sắm. Mặt hàng được bán trong các trung tâm thương mại cần đảm bảo chất lượng và phải có đầy đủ giấy phép kinh doanh.
Trung tâm thương mại hạng III:
- Trung tâm thương mại hạng 3 phải đảm bảo diện tích kinh doanh từ 10.000 m2 trở lên và phải có nơi trông giữ xe đảm bảo an toàn.
- Đảm bảo phòng cháy chữa cháy, bình cứu hỏa dập lửa và hệ thống báo cháy phải hoạt động được khi có sự cố. Đảm bảo an toàn vệ sinh chung cũng là vấn đề mà mỗi trung tâm thương mại cần đảm bảo để đón khách hàng.

Thiết kế bản vẽ trung tâm thương mại
Hiện nay hầu hết các trung tâm thương mại đều được tổ chức hoạt động đa chức năng, ngoài kinh doanh các mặt hàng còn kinh doanh rất nhiều dịch vụ khác nhau cho các cá nhân, doanh nghiệp. Bao gồm: khu vực để bố trí các cửa hàng bán buôn, bán lẻ hàng hóa; nhà hàng, khách sạn; khu vực để tổ chức hội chợ triển lãm trưng bày giới thiệu hàng hóa; khu vực dành cho hoạt động vui chơi giải trí.
Ngoài ra, trung tâm thương mại hiện nay cho thuê văn phòng làm việc, hội trường, phòng họp để tổ chức các hội nghị, hội thảo, giao dịch và ký kết các hợp đồng thương mại trong, ngoài nước; khu vực dành cho các hoạt động tài chính, ngân hàng, bảo hiểm, bưu chính viễn thông, tin học, tư vấn, môi giới đầu tư, du lịch.

Thiết kế một số gian hàng tại trung tâm thương mại
Trên đây là tìm hiểu bản vẽ trung tâm thương mại đạt tiêu chuẩn chất lượng 2021. Để xây dựng trung tâm thương mại hoàn chỉnh cần đạt rất nhiều tiêu chuẩn về chất lượng và cơ sở hạ tầng. Cùng theo dõi batdongsanexpress.vn để cập nhật nhiều tin tức, thông tin bất động sản hữu ích nhất.














