[Thông tin] Bản vẽ chi tiết thiết kế nhà mới nhất 2023
Bản vẽ thiết kế nhà là gì? Hồ sơ vẽ thiết kế kiến trúc nhà cần những loại nào?... Có rất nhiều câu hỏi được đặt ra về lĩnh vực thiết kế nhà ở, tuy nhiên có lẽ các bạn chưa có câu trả lời trọn vẹn. Chính vì lẽ đó mà chúng tôi muốn chia sẻ bài viết này. Mong rằng những thông tin mà chúng tôi cung cấp sẽ giúp được bạn giải đáp khúc mắc này.
Bản vẽ thiết kế nhà là gì?
Thực chất, bản vẽ thiết kế nhà là một bộ hồ sơ xây dựng hoàn chỉnh để thực hiện công việc xây dựng một ngôi nhà kiên cố và có giá trị về mặt thẩm mỹ. Đối với những người làm trong lĩnh vực xây dựng thì điều này không quá xa lạ. Tuy nhiên điều mà bài viết chúng tôi mong muốn là cả những người không làm trong lĩnh vực này cũng có thể hiểu được.

Bản vẽ thiết kế nhà là gì?
Bản vẽ thiết kế nhà là một trong những nhiệm vụ quan trọng trước khi tiến hành xây dựng công trình. Thực tế, mỗi một công trình thì chủ đầu tư cần phải tính toán trước tất cả những chi phí cụ thể như: Chi phí về vật liệu xây dựng, chi phí về sức người, thời gian và công sức…
Để đảm bảo có một công trình vững chắc, an toàn, tiết kiệm thì đòi hỏi phải có một bản vẽ chi tiết thiết kế nhà ở. Nói như vậy có nghĩa là bản vẽ này là bộ hồ sơ hoàn chỉnh của công trình từ hình dáng, kích thước, kết cấu và tất cả các chi tiết từng hạng mục.
Thực tế, để xây dựng một ngôi nhà đối với chúng ta là điều không dễ dàng. Bởi gia chủ cần phải chuẩn bị rất nhiều thứ từ tiền bạc, công sức và cả vấn đề tâm lý. Vậy để làm được việc này thì hồ sơ bản vẽ bao gồm những gì? Chúng ta sẽ có câu trả lời khi tìm hiểu tiếp ở phần nội dung sau của bài viết này.
Hồ sơ bản vẽ thiết kế nhà bao gồm những nội dung nào?
Thường mỗi một bộ hồ sơ bản vẽ thiết kế nhà sẽ bao gồm 3 phần chính đó là: Phần bản vẽ kiến trúc, phần bản vẽ kết cầu và phần bản vẽ thiết kế điện nước. Vậy nội dung bản vẽ này có đặc điểm gì?
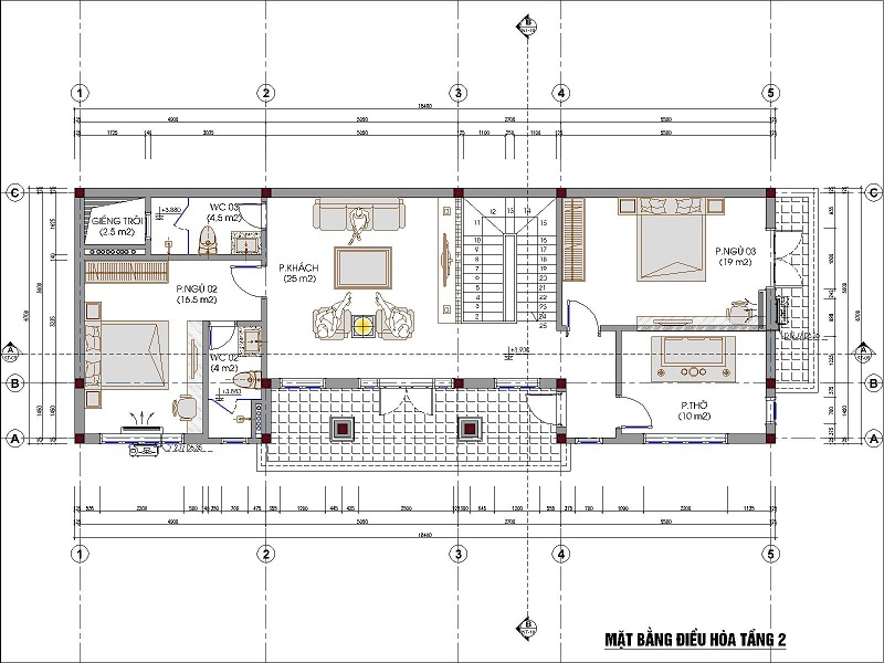
Với bản vẽ thiết kế kiến trúc nhà.
Với phần bản vẽ này là miêu tả về kiểu dáng của ngôi nhà từ ngoài vào trong. Cụ thể, bản vẽ phải giúp gia chủ nhìn thấy kiểu dáng, màu sắc, vật liệu được sử dụng như thế nào. Làm sao khi nhìn vào đây, ai cũng có thể nhìn ra ngôi nhà này được xây dựng như thế nào, kiểu dáng ra sao.

Bản vẽ thiết kế kiến trúc nhà
Ngoài kiến trúc tổng thể, bản vẽ còn thể hiện được mặt bằng của các tầng. Mặt bằng này thực chất là mặt cắt của ngôi nhà theo các tầng. Chúng phải thể hiện được chính xác kích thước của các mảng tường kể cả vị trí đặt cầu thang ở đâu. Không những thế, bản vẽ cần phải chú thích tất cả vị trí của các phòng. Làm như vậy mới không làm khó được người xem.
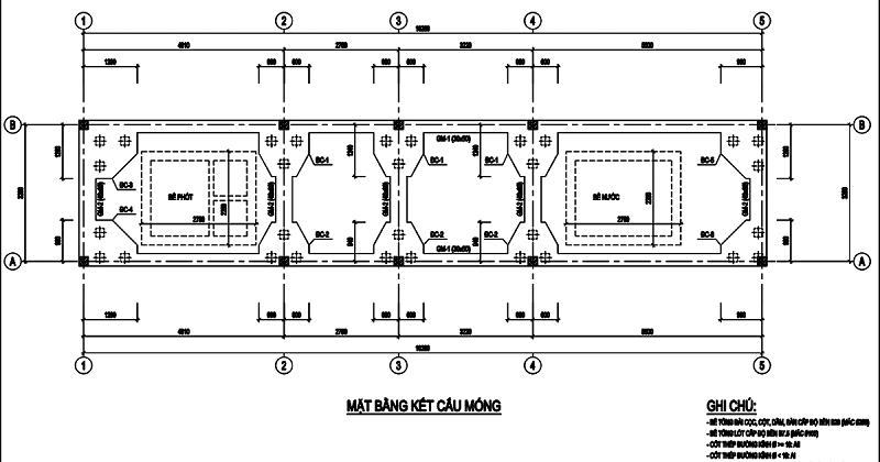
Với bản vẽ thiết kế kết cấu.
Đây là một phần quan trọng trong bản vẽ thiết kế nhà. Chính vì vậy, với người thiết kế bản vẽ cần phải thể hiện được toàn bộ nội dung sau:
- Hồ sơ bản vẽ kết cấu không thể thiếu phần ghi chú được quy định trong xây dựng như: Ghi chú lớp thép bảo vệ bê tông, cấu tạo đai đai của cột và cả dầm, khoảng cách giữa các thép chịu lực, móc thép chịu lực…

Bản vẽ thiết kế kết cấu nhà
- Tiếp đến là phải thể hiện được mặt bằng móng và cấu tạo của móng nhà. Điều này tùy thuộc vào kết cấu của đất cũng như độ phức tạo của những công trình mà chúng ta có những phương án khác nhau về cấu tạo cũng như kết cầu của phần móng…
- Một phần cũng rất quan trọng đó là mặt bằng định vị chi tiết các cột. Cụ thể là bản vẽ phải thể hiện được vị trí cũng như khoảng cách giữa các cột với nhau.
- Tiếp theo sẽ là thể hiện được kết cấu tất cả các sàn tầng của công trình.
- Một phần không thể bỏ qua đó là hệ thống về số cột thép, tính toán chi tiết một số vật liệu xây dựng khi thi công. Điều này sẽ đảm bảo được kết cấu các công trình và cũng là sự gợi ý cho gia chủ trong việc chuẩn bị nguyên vật liệu.
Với bản vẽ thiết kế điện nước.
Với những công trình hiện nay thì thiết kế điện nước là một trong những nhiệm vụ không thể bỏ qua. Với bản vẽ này, nhà thiết kế phải thể hiện được các nội dung sau:

Bản vẽ thiết kế điện nước của công trình nhà ở
- Thiết kế phần điện: Toàn bộ công trình phải có mặt bằng bố trí phần điện ở các tầng. Kể cả điện chiếu sáng, điện để lắp các thiết bị gia dụng như: Điều hòa, bộ phận thông gió và vị trí các ổ cắm, vị trí lắp thiết bị của máy giặt, tủ lạnh, quạt…
- Thiết kế phần nước: Với phần thiết kế này, bản vẽ phải thể hiện được toàn bộ hệ thống cấp thoát nước ở các vị trí quan trọng như: Nhà vệ sinh, nhà tắm, hệ thống máy giặt, bếp, máy lọc nước… Kể cả là hệ thống cấp, thoát nước mưa.
Bản vẽ thiết kế nhà quan trọng như thế nào?
Theo như chúng tôi tìm hiểu thì chi phí cho một bản vẽ thiết kế nhà cũng không hề rẻ. Mỗi một công trình xây dựng và phụ thuộc vào kết cấu, mẫu mã và nội thất bên trong sẽ có mức chi phí khác nhau. Ước tính chúng sẽ rơi vào con số từ 30-200 triệu đồng.
Vậy lý do gì mà chi phí cho bản vẽ thiết kế lại đắt như vậy? Để trả lời được câu hỏi này, có lẽ chúng ta sẽ làm thêm một phép so sánh giữa các công trình xây dựng nhà trước kia với những ngôi nhà hiện này có gì khác nhau? Đúng là đáng đồng tiền bát gạo đúng không các bạn?

Tầm quan trọng của bản vẽ thiết kế nhà
Thực tế, với những ngôi nhà đơn giản thì chúng tôi không muốn đi sâu. Nhưng những ngôi nhà tầng, có yêu cầu cao về mặt kết cấu thì ước tính chi phí cho thiết kế chỉ rơi vào khoảng 1% chi phí tổng thể. Tuy nhiên, điều mà gia chủ nhận được lại vô cùng lớn. Cụ thể như:
- Các công trình xây dựng sẽ đảm bảo về mặt chất lượng cũng như kết cấu của các ngôi nhà. Hơn thế nữa là hạn chế đến mức tối đa sai sót rất dễ phát sinh trong quá trình thi công xây dựng. Bởi thực tế, tất cả các công trình không thể đạt 100% theo thiết kế.
- Ngoài ra, bản vẽ sẽ giúp gia chủ lựa chọn được một ngôi nhà phù hợp với gia chủ. Kể cả là chi phí đến yếu tố thẩm mỹ đều đáp ứng đúng theo sở thích.
- Có bản vẽ thiết kế nhà thì quá trình thi công sẽ diễn ra suôn sẻ hơn. Điều này là đương nhiên bởi vì công trình xây dựng sẽ hoàn thành đúng tiến độ đã được đề ra.
- Nếu như trước kia chưa có bản vẽ thì trong quá trình xây dựng cần phải có sự kết hợp của bên thi công và gia chủ. Đây là trở ngại khiến cho các công trình bị chậm tiến độ. Với những trường hợp không có tiếng nói chung sẽ gây khó khăn cho quá trình thi công.
Như vậy, chúng ta có thể thấy được tầm quan trọng của bản vẽ rồi đúng không nào? Hầu hết, tất cả các công trình xây dựng hiện nay từ nhỏ đến lớn đều phải có bản vẽ. Đây không những thể hiện sự làm việc chuyên nghiệp cũng như đòi hỏi của gia chủ về mặt chất lượng các công trình.
Hy vọng, với những nội dung mà bài viết chia sẻ về bản vẽ thiết kế nhà độc giả đã có cái nhìn chi tiết nhất về vấn đề này. Chắc chắn chúng sẽ góp phần giúp được bạn trong việc lựa chọn và thiết kế một mẫu nhà ưng ý.














