Bản vẽ cad nhà phố 4x16m đầy đủ chi tiết nhất
Có một căn nhà vừa đảm bảo được tính thẩm mỹ vừa đáp ứng được nhu cầu sinh hoạt cho cả gia đình lại bền đẹp luôn là mong muốn của nhiều người. Để làm được điều đó thì khâu quan trọng chính là thiết kế bản vẽ. Cho dù công trình của bạn có quy mô lớn hay nhỏ, diện tích rộng hay hẹp, thấp tầng hay cao tầng thì cũng nên cần một bản vẽ cad. Vậy tại sao lại phải chó bản vẽ cad? Tầm quan trọng của bản vẽ cad trong thiết kế nhà là gì? Một số mẫu bản vẽ cad nhà phố 4x16m đẹp, chi tiết. Bài vẽ sẽ cung cấp cho bạn kiến thức để trả lời cho tất cả các câu hỏi nêu trên.

Bản vẽ cad nhà phố 4x16m đầy đủ chi tiết nhất
Bản vẽ cad là gì?
Bản vẽ cad là bản vẽ thiết kế được sự hỗ trợ của phần mềm máy tính. Các nền tảng máy tính này được tạo ra để hỗ trợ cho các kiến trúc sư, kỹ sư, và các chuyên viên thiết kế khác trong việc thiết kế công trình xây dựng nói chung và nhà ở nói riêng. Bản vẽ cad sẽ bao gồm các thiết kế nền tảng 2D và cả nền tảng 3D.
Mỗi bộ phận trong kết cấu của ngôi nhà sẽ có các bản vẽ khác nhau, để có thể hoàn thiện được một bản vẽ ưng ý, các kiến trúc sư sẽ thường phải kết hợp nhiều yếu tố trong bản vẽ đó bao gồm mong muốn của chủ nhà, kiến thức, kinh nghiệm của kiến trúc sư trong nghề kiến trúc và cả việc phải đáp ứng tốt được những yêu cầu về phong thủy để có thể mang đến điều lành cho gia đình chủ nhà.

Bản vẽ cad là gì?
Vì sao phải có bản vẽ thiết kế cad nhà phố 4x16m?
Có rất nhiều do cho sự cần thiết của một bản thiết kế cad. Dưới đây là một số lý do mà bài viết mong muốn chia sẻ đến với bạn.
Đem đến sự khoa học cho công trình nhà
Trước khi chủ nhà chính thức bắt đầu quá trình xây dựng nhà ở thì nhất định cần phải có ý tưởng xây dựng cho công trình nhà ở của mình. Ý tưởng thì không thể viết ra bằng giấy vì như vậy sẽ rất rời rạc, thiếu sự logic và sẽ không mang lại cho bạn một sản phẩm như bạn mong muốn.
Do vậy, cần tiến hành thiết kế bản vẽ cad. Bản vẽ cad sẽ cho chủ nhà một cái nhìn tổng quát trước khi xây dựng căn nhà, nhìn vào bản vẽ nếu như có những điểm nào mà chủ nhà vẫn còn chưa thật sự ưng ý thì hoàn toàn có thể yêu cầu thiết kế lại được ngay.
Việc sửa chữa trên bản vẽ thì luôn dễ dàng hơn việc sau khi thi công mới sửa. Chủ nhà sẽ không lo lắng rằng ngôi nhà xây xong không như ý và phải sửa lại.
Tránh phát sinh chi phí lớn
Bản vẽ thiết kế nhà cad còn có công dụng giúp cho chủ nhà ước lượng được về khối lượng vật tư cần dùng, các trang thiết bị cần cho nội thất căn nhà. Nhờ vậy mà có sự chuẩn bị về tài chính cho tốt. Nếu có phát sinh trong quá trình xây dựng thì cũng sẽ không quá nhiều, tránh các trường hợp có phát sinh số tiền lớn gây ra khó khăn trong xây nhà.
Dễ dàng xây dựng
Sau khi đã có bản vẽ cad công trình thì việc tiến hành xây dựng nhà sẽ rất dễ dàng. Bởi vì chỉ cần làm theo bản thiết kế cad để xây dựng theo chứ không cần đo đạc tính toán cầu kì. Thành quả là chủ nhà sẽ có một ngôi nhà đúng như mong muốn, bền đẹp và khang trang.

Tại sao phải có bản vẽ thiết kế cad khi xây dựng nhà ở?
Đặc điểm của nhà phố 4x16m
Nhà phố 4x16m có đặc điểm là kiểu nhà có chiều rộng bằng 4m và chiều dài bằng 16m. Mẫu nhà 4x16m này thường được người ta xây lên bên trên các lô đất hẹp ngang và có chiều sâu lớn. Các lô đất phổ biến hiện nay sẽ thường có thông số về diện tích rơi vào khoảng 4m chiều ngang, từ 15m đến 20m chiều dài.
Trước đây thì kiểu nhà này thường chỉ được xây phổ biến ở các đô thị lớn bởi vì ở đô thị mật độ dân số sẽ thường khá cao và diện tích đất lại không nhiều. Tuy nhiên hiện tại bởi vì mật độ xây dựng tăng ngày càng cao.
Cho nên mọi người có thể thường xuyên bắt gặp kiểu nhà với diện tích 4x16m này ở khắp mọi vùng miền trên cả nước. Vậy nên xây kiểu nhà 4x16m như thế nào để đảm bảo đẹp và bền. Dưới đây là gợi ý bản vẽ cad nhà phố 4x16m.

Những đặc điểm của nhà phố diện tích 4x16m
Bản vẽ cad nhà phố 4x16m chi tiết
Dưới đây là một bản vẽ cad nhà phố 4x16m đầy đủ chi tiết để bạn tham khảo;
Bản vẽ cad nhà phố 4x16m mặt bằng tầng một
Tầng 1 của ngôi nhà bao gồm một phòng khách có diện tích là 21m2, một phòng bếp có diện tích là 19m2, ngôi nhà có phần sân sau với diện tích khoảng 10m2 có kèm theo nhà vệ sinh. Cầu thang của ngôi nhà có chiều rộng từng bậc 1,05m đáp ứng được nhu cầu di chuyển công năng của ngôi nhà.

Bản vẽ cad mặt bằng tầng 1 chi tiết cho nhà phố 4x16m
Bản vẽ cad nhà phố 4x16m mặt bằng tầng hai
Mặt bằng tầng 2 ngôi nhà được thiết kế gồm có hai phòng ngủ và hai nhà vệ sinh. Ngôi nhà được thiết kế theo kiểu nhà vệ sinh đặt khép kín bên trong phòng, phần giếng trời ngôi nhà được thiết kế tương đối rộng.
Ngôi nhà cũng được thiết kế phần ban công nhỏ đẹp vừa có chức năng trang trí vừa giúp chủ nhà có thể mở cửa chính dễ dàng để đón gió, đón nắng được nhiều hơn.

Bản vẽ cad mặt bằng tầng 2 chi tiết cho nhà phố 4x16m
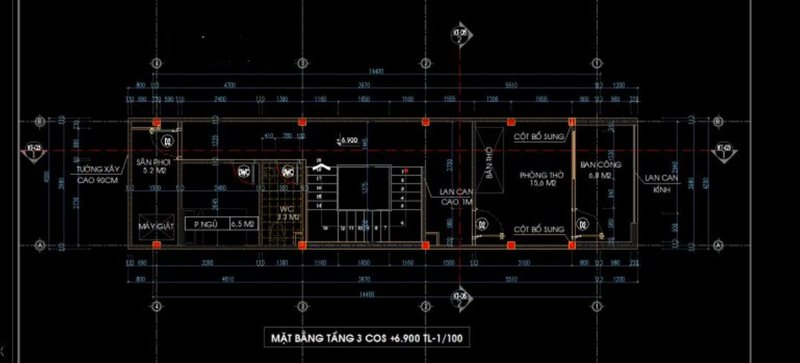
Bản vẽ cad nhà phố 4x16m mặt bằng tầng ba
Bản vẽ cad thiết kế tầng 3 gồm có 1 phòng thờ, 1 phòng ngủ, sân phơi, chỗ để máy giặt và một nhà vệ sinh nhỏ. Có thể thấy đây là thiết kế hợp lý, được nhiều người ưa chuộng và phổ biến.

Bản vẽ cad mặt bằng tầng 3 chi tiết cho nhà phố 4x16m
Trên đây là bản vẽ cad cho nhà phố diện tích 4x16mmà bài viết muốn giới thiệu đến bạn. Khi chuẩn bị xây nhà chủ nhà nên lưu ý chọn đơn vị thiết kế uy tín, chất lượng để đảm bảo ngôi nhà được bền bỉ cùng năm tháng, tiện nghi và thẩm mỹ. Mong rằng bài viết đã cung cấp cho bạn những kiến thức bổ ích về bản vẽ cad nhà phố 4x16m.














