Bản vẽ Cad biệt thự đầy đủ và cách đọc bản vẽ đúng chuẩn
Trước khi thực hiện dự án xây dựng biệt thự thì điều đầu tiên các kiến trúc sư phải làm là thiết kế một bản vẽ kiến trúc của ngôi biệt thự đó. Họ sẽ đưa cho chủ nhà xem sau khi đã thiết kế xong và giải thích cho chủ nhà về cách thiết kế của mình để chỉnh sửa bổ sung theo ý của chủ nhà nếu có. Và sau khi hai bên cùng thống nhất về bản vẽ này thì kiến trúc sư sẽ thiết kế một bản vẽ cad biệt thự đầy đủ và dựa vào đó để thi công công trình cho chủ nhà.
Bản vẽ cad biệt thự đầy đủ gồm những gì
Một bản vẽ cad biệt thự đầy đủ sẽ gồm bản vẽ kiến trúc, bản vẽ kết cấu và bản vẽ điện nước của ngôi biệt thự đó. Được thể hiện bằng các bản vẽ mặt bằng, mặt đứng, mặt cắt. Chúng ta cùng tìm hiểu lần lượt những bản vẽ này để hiểu rõ hơn về nó.
Bản vẽ kiến trúc của biệt thự
Bản vẽ kiến trúc nói chung là một hồ sơ hoàn chỉnh thể hiện toàn bộ biệt thự. Trong bản vẽ kiến trúc sẽ cho ta biết về hình dáng, kích thước của biệt thự, những chi tiết, kết cấu của nó. Nhìn vào bản vẽ, nhà thầu và kỹ sư biết được diện tích ngôi biệt thự, kích thước các phòng ốc, cách bố trí trong đó và quy cách xây dựng nên chúng. Hồ sơ bản vẽ kiến trúc sẽ gồm 3 phần chính là bản vẽ phối cảnh , bản vẽ kiến trúc, bản vẽ kết cấu và bản vẽ điện nước, thường sẽ có từ 80-100 trang.

Bản vẽ cad biệt thự đầy đủ
Phần kiến trúc sẽ thể hiện kiểu dáng, hình dáng bên ngoài của biệt thự cho nên chủ nhà cũng có thể hình dung được biệt thự của mình sau khi hoàn thiện sẽ như thế nào. Bởi vì trong phần này có bản vẽ phối cảnh thể hiện được phối cảnh mặt ngoài của biệt thự, màu sắc phối với nhau như thế nào và sử dụng vật liệu ra sao cho từng mảng.
Ngoài ra, phần kiến trúc này còn thể hiện mặt bằng từng tầng của biệt thự qua những hình ảnh của các mặt cắt. Thể hiện từng vị trí, kích thước của cầu thang, từng mảng tường trong nhà, cách bố trí phòng qua các tầng cùng với thông tin về diện tích và hướng của các phòng với nhau. Trong bản vẽ của mỗi phần sẽ có chú thích rõ ràng, cụ thể giúp người đọc dễ dàng đọc hiểu chúng.
Bản vẽ kết cấu của biệt thự
Trong một bản vẽ cad biệt thự đầy đủ thì không thể thiếu phần này, đây là phần chi tiết của một bản vẽ đầy đủ. Qua đó tính toán được những vật liệu cần có trong xây dựng biệt thự như sắt, thép, dầm cột, đảm bảo cho công trình được xây dựng an toàn, vững chắc.

Bản vẽ kết cấu
Trong phần kết cấu sẽ có những nội dung cơ bản như sau:
- Đầu tiên là những phần ghi chú trong xây dựng như lớp thép bảo vệ của bê tông, khoảng cách chịu lực của dầm đối với thép, cấu tạo của những đai cột, dầm, móc thép chịu lực,..
- Tiếp theo là cấu tạo, mặt bằng của móng, trong phần này thì sẽ có những cách làm móng khác nhau như móng cọc, móng bè hay móng đơn. Những phương án làm móng này tùy thuộc vào độ đơn giản hay phức tạp của công trình hay đặc điểm khu đất xây dựng nó.
- Mặt bằng thể hiện chi tiết cột và định vị của các cột, thể hiện khoảng cách và vị trí các cột của biệt thự.
- Thể hiện kết cấu của sàn tầng
- Thống kê phần cốt thép
Bản vẽ phần điện nước của biệt thự
Đây là phần cuối của bản vẽ cad biệt thự đầy đủ, trong phần này sẽ chia ra làm 2 phần riêng biệt đó là phần thiết kế điện và thiết kế nước. Bản vẽ thể hiện cách bố trí điện của các tầng trong nhà với những thiết bị điện như điều hòa thống gió, tủ lạnh, cáp wifi, chống sét tầng mái.

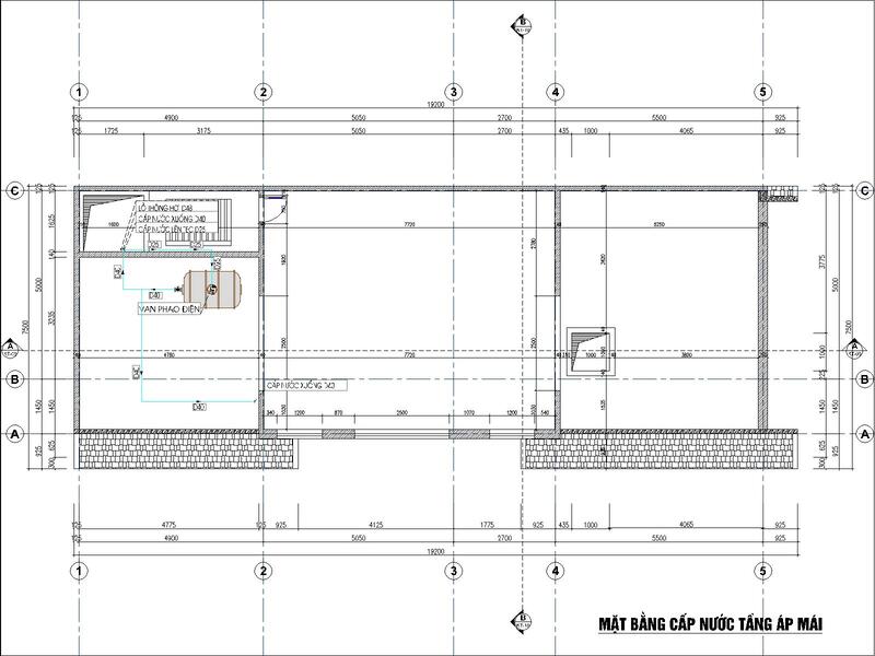
Bản vẽ mặt bằng cấp nước tầng áp mái
Còn bản vẽ phần nước thể hiện hệ thống cấp thoát nước của các phòng như vệ sinh, phòng bếp, phòng tắm của các tầng trong biệt thự. Ngoài ra, trong phần này còn thể hiện các công trình dưới ngầm và những đường ống cấp thoát nước.
Quy định về khung bản vẽ và khung tên trong bản vẽ cad.
Khung bản vẽ trong xây dựng được quy định là hình chữ nhật, khung ngoài là nét liền đậm cách mép giấy đối với khổ A0 và A1 sau khi cắt là 10 mm, và đối với giấy A2, A3, A4 là 5 mm. Những bản vẽ này sẽ được đóng thành tập và cách mép tờ giấy tại cạnh trái 25mm để thuận tiện cho việc đóng giấy.
Khung tên trong bản vẽ cad biệt thự đầy đủ hay bất kì một bản vẽ nào khác có thể đặt theo chiều dọc hoặc chiều ngang đều được. Nó phụ thuộc vào cách trình bày của kỹ sư, không bắt buộc phải theo 1 chiều nhất định, thông thường thì khung tên sẽ được đặt ở góc phải của cạnh dưới khung bản vẽ. Xem hình phía dưới để hiểu rõ hơn về khung tên và khung bản vẽ.

Quy định và khung bản vẽ và khung tên
Cách đọc những bản vẽ kiến trúc
Muốn hiểu được hết bản vẽ cad biệt thự đầy đủ thì cần hiểu được nội dung mà bản vẽ thể hiện.
Cách đọc bản vẽ mặt bằng
Mặt bằng ngôi nhà biệt thự là những hình cắt bằng của các tầng trong biệt thự đó với những mặt phẳng tưởng tượng cách mặt sàn 1.5 m theo phương ngang. Mặt bằng của công trình xây dựng thể hiện các không gian như phòng khách, phòng ngủ, phòng bếp, hành lang, cầu thang,..
Khi đọc bản vẽ mặt bằng, các bạn phải chú ý các dãy kích thước như dãy kích thước sát đường bao của mặt bằng thể hiện kích thước của những mảng tường và khung cửa. Dãy tiếp theo ghi kích thước khoảng cách của những cột, trục tường. Dãy ngoài cùng thể hiện kích thước giữa những trục tường biên của ngôi biệt thự theo chiều ngang và chiều dọc của nó.
Nhìn vào bản vẽ mặt bằng trong bản vẽ cad biệt thự đầy đủ, những nội dung ta cần đọc là:
- Kích thước của mỗi căn phòng trong nhà gồm chiều dài và chiều rộng.
- Kích thước của những vị trí của cửa hay vách ngăn.
- Kích thước chiều dày của vách ngăn,vách tường và mặt cắt của các cột
- Kích thước thể hiện diện tích của từng phòng tính theo m2.
- Những vật dụng trong nhà như bàn ghế, tủ, giường,…
Cách đọc bản vẽ mặt đứng
Bản vẽ mặt đứng là hình cắt mặt phẳng song song với mặt phẳng hình chiếu đứng, thể hiện mặt ngoài của ngôi nhà và 4 mặt của nó là mặt trước, mặt sau, mặt trái và mặt phải. Trong bản vẽ mặt đứng này thì không cần thiết phải ghi kích thước, người xem chỉ cần biết dáng ngoài của biệt thự và các khoảng không gian trong biệt thự.

Cách đọc bản vẽ mặt đứng
Cách đọc bản vẽ mặt cắt
Bản vẽ mặt cắt là những hình cắt từ một hay nhiều mặt cắt thẳng đứng tưởng tượng song song với mặt phẳng hình chiếu, và cắt ngang qua phần biệt thự. Nó có 2 mặt cắt là mặt cắt dọc và mặt cắt ngang thể hiện rõ bởi cách bố trí theo chiều của hình cắt.
Trong phần mặt cắt này sẽ cho bạn biết chiều cao của từng tầng trong nhà, các kích thước của cửa sổ, cửa chính, tường,cầu thang và vị trí của những chi tiết này.
Tất cả thông tin của ngôi biệt thự sẽ được thể hiện hết trong bản vẽ cad biệt thự đầy đủ, nắm được cách đọc bản vẽ thì bạn sẽ hiểu được những thiết kế của ngôi nhà này. Hi vọng những thông tin hữu ích trên sẽ giúp bạn hiểu được nội dung của một bản vẽ cad biệt thự đầy đủ. Giải đáp thắc mắc cho câu hỏi phía trên và áp dụng những thông tin tìm hiểu được vào thực tế.














