Phân khu cao tầng và thấp tầng tại Vinhomes Ocean Park
Theo thông tin cập nhật được CĐT công bố, các phân khu thuộc Vinhomes Ocean Park được CĐT quy hoạch thành phân khu thấp tầng và phân khu cao tầng. Cùng BATDONGSAN EXPRESS tìm hiểu thông tin cụ thể qua bài viết sau nhé!
Mặt bằng các phân khu Vinhomes Ocean Park cao tầng
Phân khu cao tầng của Vinhomes Ocean Park được quy hoạch 66 tòa căn hộ, được chia thành 3 dòng sản phẩm chính là Diamond, Ruby và Sapphire. Hiện nay, CĐT mới chính thức mở bán các căn hộ tại khu Sapphire Vinhomes Ocean Park (gồm The Sapphire 1 và The Sapphire 2) và khu The ZenPark.

Mặt bằng các phân khu trong đại đô thị Vinhomes Ocean Park
Phân khu Sapphire 1 - Các phân khu Vinhomes Ocean Park
Sapphire 1 là một phân khu Vinhomes Ocean Park gần nhất đến hệ thống tiện ích hồ trung tâm rộng 24,5ha. Từ vị trí này, cư dân không chỉ được hưởng trọn tầm view hướng ra biển hồ độc đáo mà còn dễ dàng để có thể di chuyển tới những khu vực quan trọng của đại đô thị Vinhomes Ocean Park như trung tâm thương mại Vincom Mega Mall, bệnh viện đa khoa quốc tế Vinmec hay biển hồ nước mặn 6,1ha.

Sapphire 1 là một trong các phân khu Vinhomes Ocean Park có vị trí gần nhất với hồ trung tâm
Quy hoạch Sapphire 1 cụ thể như sau:
Quy mô: 12 tòa (S1.01 đến S1.12)
Chiều cao: 26 - 28 tầng nổi + 1 tầng hầm để xe
Tổng số căn hộ/toà: 513 - 572 căn
Mật độ căn hộ: 19 căn/sàn (mặt bằng chữ Z), 22 căn/sàn (mặt bằng chữ L)
Loại hình phát triển:
- Căn hộ hiện đại: studio, 1 - 3 phòng ngủ, diện tích từ 31,2 - 106,3m2
- Căn hộ nhà phố thương mại (Shophouse)
- Shop thương mại dịch vụSố lượng thang di chuyển/tòa: 4 thang máy, 1 thang hàng, 2 thang thoát hiểm
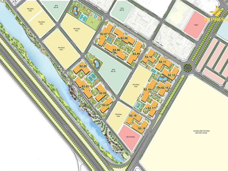
Phân khu Sapphire 2 - Các phân khu Vinhomes Ocean Park
Sapphire 2 của Vinhomes Ocean Park được các chuyên gia đánh giá cao khi tiếp giáp với các tuyến đường huyết mạch như đường 45m, đường 30m, dễ dàng di chuyển và kết nối với đường Đông Dư - Dương Xá và cao tốc Hà Nội - Hải Phòng, giúp cư dân dễ dàng và thuận tiện di chuyển trong nội khu cũng như các khu vực bên ngoài dự án, đi vào trung tâm Hà Nội hay đi liên tỉnh.
Đây cũng là phân khu có phần diện tích không gian khoáng đạt và rộng rãi nhất tại đại đô thị khi được bao quanh bởi hệ thống hồ lớn trung tâm và sông sinh thái, trong khi nội khu lại sở hữu những hồ cảnh quan và công viên cây xanh ngay dưới mỗi toà nhà.

Bên cạnh đó, Sapphire 2 cũng sở hữu nhiều tiện ích và dịch vụ đẳng cấp khác như:
Shophouse thương mại
Nhà để xe 5 tầng
Bể bơi ngoài trời cùng các sân thể thao vận động liên hoàn, phù hợp cho cư dân mọi lứa tuổi.
Mặt bằng Sapphire 2 là một trong các phân khu Vinhomes Ocean Park
Quy mô: 19 tòa (S2.01 đến S1.19)
Chiều cao: 25 - 28 tầng nổi + 1 tầng hầm để xe
Tổng số căn hộ/toà: 483 - 750 căn
Mật độ căn hộ: 19 căn/sàn (mặt bằng chữ Z), 21 căn/sàn (mặt bằng chữ T), 22 căn/sàn (mặt bằng chữ L), 30 căn/sàn (mặt bằng chữ U)
Loại hình phát triển:
- Căn hộ hiện đại: studio, 1 - 3 phòng ngủ, diện tích từ 26.9 - 76.4m2
- Căn hộ nhà phố thương mại (Shophouse)
- Shop thương mại dịch vụ
Phân khu The Zenpark - Các phân khu Vinhomes Ocean Park
The Zenpark là phân khu được thiết kế theo tiêu chuẩn Ruby đầu tiên tại Vinhomes Ocean Park. Từ khi mới ra mắt, The Zenpark đã nhận được sự chú ý và lôi cuốn bởi dấu ấn Phù Tang riêng biệt. Ngoài những căn hộ hiện đại và đẳng cấp, phân khu này còn sở hữu đặc sản vườn Nhật nội khu với những biểu tượng tinh hoa như hồ cá Koi, vườn tùng La Hán hay cổng Torii đỏ.
The ZenPark là phân khu Vinhomes Ocean Park duy nhất mang dấu ấn Nhật Bản độc đáo
Khu Vinhomes Ocean Park - The ZenPark có cơ cấu mặt bằng như sau:
Quy mô: 5 tòa (R1.01 đến R1.05; R1.01 chưa được mở bán)
Chiều cao: 31 tầng nổi + 1 tầng hầm để xe (diện tích khoảng 24.000m2)
Tổng số căn hộ/toà: 594 - 754 căn
Mật độ căn hộ: 20 căn (mặt bằng chữ L), 26 căn (mặt bằng chữ U)
Loại hình phát triển:
- Căn hộ hiện đại: studio, 1 - 3 phòng ngủ, diện tích từ 26.6 - 100.6m2
- Căn hộ nhà phố thương mại (Shophouse)
- Shop thương mại dịch vụHành lang: rộng 1,8m, có điều hoà trung tâm
Mặt bằng các phân khu Vinhomes Ocean Park thấp tầng
Vinhomes Ocean Park sở hữu lên đến 2390 căn nhà ở thấp tầng, đa dạng loại hình BĐS, được chia thành 4 phân khu Ngọc Trai, Sao Biển, Hải Âu, San Hô.
Phân khu San Hô - Các phân khu Vinhomes Ocean Park
Phân khu San Hô được quy hoạch với không gian mở, có quy mô với diện tích nhỏ nhất trong các phân khu Vinhomes Ocean Park thấp tầng của đại đô thị. Với những căn biệt thự thiết kế mang kiến trúc Đông Dương, đây là sự lựa chọn hoàn hảo nhất cho những khách hàng muốn trải nghiệm cuộc sống thời thượng và tiện nghi.
Phân khu Vinhomes Ocean Park San Hô với quy hoạch độc đáo
Thông tin về quy hoạch phân khu San Hô như sau:
44 căn biệt thự đơn lập (204 - 295m2)
196 căn biệt thự song lập (103 -150m2)
89 căn shophouse (60 - 113.5m2)
Khoảng 100 căn shop thương mại dịch vụ
Phân khu Hải Âu - Các phân khu Vinhomes Ocean Park
Phân khu Hải Âu Vinhomes Ocean Park được đánh giá như thành phố biển “Long Beach" của California khi sở hữu cho mình con phố thương mại trải dọc bờ biển dài hơn 1km và 100% biệt thự liền kề tại đây đều được cấp phép kinh doanh các shophouse.

Dãy biệt thự phân khu Vinhomes Ocean Park Hải Âu
Tiếp giáp quảng trường xương cá voi và Vincom Mega Mall Ocean Park, các gian hàng tại khu Hải Âu được thừa hưởng nguồn khách dồi dào, thuận lợi cho việc kinh doanh buôn bán. Khu Hải Âu Vinhomes Ocean Park được CĐT Vinhomes xây dựng và phát triển theo những loại hình bao gồm:
106 căn biệt thự đơn lập (279 - 417m2)
247 căn biệt thự song lập (143 -150m2)
159 căn liền kề (90 - 140m2)
Khoảng 800 căn shop thương mại dịch vụ
Phân khu Sao Biển - Các phân khu Vinhomes Ocean Park
Phân khu Sao Biển được coi là “tâm điểm phồn hoa" của Vinhomes Ocean Park khi có vị trí cận kề công viên, biển hồ, các clubhouse và sở hữu gần 1000 căn shophouse cùng shop thương mại dịch vụ. Các căn biệt thự Sao Biển mang thiết kế kiến trúc Địa Trung Hải phóng khoáng, mở ra nhịp sống sôi động, đẳng cấp cho cư dân nơi đây.
Phân khu Vinhomes Ocean Park Sao Biển sở hữu nhiều loại hình phong phú
Phân khu Sao Biển sở hữu nhiều loại hình đa dạng:
59 căn biệt thự đơn lập (168 - 328m2)
257 căn biệt thự song lập (122 - 150m2)
122 căn liền kề (88 - 114m2)
350 căn shophouse (67.5 - 125m2)
Khoảng 500 căn shop thương mại dịch vụ
Phân khu Ngọc Trai - Các phân khu Vinhomes Ocean Park
Khu Ngọc Trai Vinhomes Ocean Park được coi là phân khu được đánh giá đáng sống nhất đại đô thị phía Đông thành phố. Tọa lạc tại vị trí trung tâm của đại đô thị, hưởng trọn vẹn hệ sinh thái cảnh quan cùng với tiện ích đặc sắc, nơi đây được ví như “Ốc đảo nghỉ dưỡng" của Vinhomes Ocean Park, với những căn biệt thự gần hồ cao cấp bậc nhất, mang đến trải nghiệm sống thượng lưu hiện đại ngang tầm nghỉ dưỡng 5 sao.

Ngọc Trai là Phân khu Vinhomes Ocean Park thấp tầng đắt giá nhất đại đô thị
Các loại hình phát triển tại phân khu Ngọc Trai cụ thể như sau:
183 căn biệt thự đơn lập (141 - 378m2)
311 căn biệt thự song lập (141 - 153m2)
115 căn liền kề (60 - 102m2)
116 căn shophouse (60 - 101m2)
Các phân khu Vinhomes Ocean Park phong phú và đa dạng, được quy hoạch toàn diện với những ưu điểm riêng biệt, phù hợp với nhu cầu sử dụng và đầu tư khác nhau của mọi đối tượng khách hàng.
Lời kết! Thông qua bài viết này củaBATDONGSAN EXPRESS, quý khách hàng có thể nắm được thông tin vềphân khu căn hộcủaVinhomes Ocean Parkcùng với những tiện ích của nó. Để hiểu rõ được vị trí xung quanh cũng như những tiện ích xung quanh, từ đó có thể lựa chọn việc đầu tư hay không. Hy vọng bài viết này mang đến thông tin bổ ích cho bạn. Để có thể đầu tư và lựa chọn được BĐS nhà đất phù hợp.














