GEM RIVERSIDE QUẬN 2

GEM RIVERSIDE QUẬN 2
Tỷ lệ: 3 (60%) 85 votes
.Đánh giá của bạn

Căn hộ Gem Riverside Quận 2 của chủ đầu tư Đất Xanh Group chuẩn bị mở bán trong Quý 3/2021. Dự án Gem Riverside Đất Xanh có vị trí đắc địa toạ lạc tại địa chỉ Khu Dân Cư Nam Rạch Chiếc, Phường An Phú, Quận 2, Thành Phố Thủ Đức, TP. Hồ Chí Minh có giá bán tốt nhất khu vực.

Đất Xanh Group được biết tới là một CĐT uy tín, thương hiệu hàng đầu trên thị trường bất động sản Việt Nam. Doanh nghiệp này đã có tới 15 năm hình thành và phát triển. Cung cấp đa dạng loại hình sản phẩm cho khách hàng trên toàn quốc bao gồm: căn hộ cao cấp; đất nền; bất động sản nghỉ dưỡng; biệt thự liền kề; căn hộ Office Tel.

Khu căn hộ chung cư Gem Riverside quận 2 là dự án nhà ở cao cấp được chủ đầu tư triển khai sau sự thành công của hàng loạt các dự án thuộc phân khúc cao cấp như: Opal Riverside; Opal Garden; LuxCity; Lux Garden. Khi hoàn thiện, dự án sẽ cung cấp cho thị trường 3.175 sản phẩm đáp ứng nhu cầu của mọi khách hàng và nhà đầu tư không chỉ tại quận 2 mà còn tại thành phố Hồ Chí Minh.

Trong bối cảnh nguồn cung căn hộ chung cư Thành Phố Hồ Chí Minh ngày càng khan hiếm trong 2021 thì Gem Riverside của Đất Xanh mở bán, mang lại cho khách hàng và nhà đầu tư nhiều sự lựa chọn hơn.

icon 1
Gem Riverside là dự án ra đời với lối thiết kế hiện đại, độc đáo, gần gũi thiên nhiên sống xanh được ví như một resort nghỉ dưỡng đẳng cấp 5 sao của chủ đầu tư Đất Xanh ngay tại trung tâm phát triển của quận 2.
icon 2
Dự án sở hữu cho mình vị trí tọa lạc chiến lược tại ngay trung tâm quận 2, nơi có khả năng liên kết vùng hoàn hảo, nhanh chóng với các khu vực lân cận chỉ trong vài phút di chuyển đi lại bằng các tuyến đường huyết mạch.
icon 3
Dự án có tiềm năng gia tăng giá trị nhanh chóng theo thời gian sở hữu khi có vị trí tọa lạc đắc địa, hệ thống cơ sở hạ tầng phát triển mạnh mẽ. Vì trong tương lai nơi đây sẽ có hàng loạt các tuyến đường được mở rộng, nâng cấp và hoàn thiện
icon 4
Chủ đầu tư đã trang bị cho dự án chuỗi tiện ích dịch vụ lên tới 60 hạng mục, được bố trí ngay trong nội khu dự án nhằm đảm bảo mọi nhu cầu của cư dân cũng khi sinh sống tại đây. Chỉ cần vài bước chân ra khỏi nhà là bạn và mọi thành viên trong gia đình đã
icon 5
Không gian sống xanh của dự án được đánh giá cao khi dự án sở hữu 2 mặt view sông thoáng đãng. Môi trường sống của dự án được đảm bảo, được khách hàng và nhà đầu tư lựa chọn cho một nơi an cư, đầu tư sinh lời cho mình và gia đình.
icon 6
Mọi căn hộ của dự án được thiết kế cao cấp theo phong cách hiện đại cùng vật liệu xây dựng, nội thất tới từ các thương hiệu nổi tiếng trên thế giới. Khiến cho mọi chủ nhân căn hộ hài lòng nhất vê nơi an cư của mình và gia đình.
icon 7
Dự án cung cấp cho thị trường đa dạng loại hình sản phẩm từ 1 -3 phòng ngủ tiện nghi, hiện đại. Cùng với đó là diện tích cũng phong phú theo đúng nhu cầu cũng như khả năng tài chính của khách hàng và nhà đầu tư lựa chọn để an cư, đầu tư sinh lời
icon 8
Để đảm bảo hệ thống an ninh cho mọi cư dân thì dự án đã được chủ đầu tư bố trí hệ thống camera hiện đại, hệ thống bảo vệ và an ninh ba lớp hoạt động 24/7 cùng đội ngũ bảo an chuyên nghiệp, chuyên môn cao nhanh chóng giải quyết mọi rắc rối xảy ra trong dự
icon 9
Chủ đầu tư Đất Xanh và các đối tác, ngân hàng tại dự án đều là những tên tuổi nổi tiếng trên thị trường bất động sản. Vì thế đã đảm bảo chất lượng, tiến độ cũng như cung cấp cho khách hàng và nhà đầu tư những sản phẩm lý tưởng nhất.

TỔNG QUAN GEM RIVERSIDE ĐẤT XANH

TỔNG QUAN GEM RIVERSIDE ĐẤT XANH
  • Dự án: Gem Riverside
  • Chủ đầu tư: Đất Xanh Group
  • Vị trí tọa lạc: KDC Nam Rạch Chiếc - Phường An Phú - Quận 2 - TP. Hồ Chí Minh
  • Diện tích: 6.7 ha
  • Quy mô: 12 tòa tháp căn hộ cao 33 – 34 tầng
  • Loại hình sản phẩm: căn hộ chung cư: căn hộ Duplex Villas; căn hộ Penthouse; căn hộThương Mại - Dịch Vụ…
  • Số lượng: 3175 sản phẩm cao cấp, bao gồm: 3045 căn hộ chung cư (1 – 2 – 3 PN); 34 căn Duplex Villas; 96 căn Penthouse
  • Thiết kế: 1 - 3PN
  • Diện tích:  49.14m2 - 201.67 m2
  • Bảo lãnh: Ngân hàng Vietinbank
  • Pháp lý: hoàn thiện sổ đỏ từng căn
  • Khởi công: Quý IV/2017
  • Bàn giao: Quý III/2020
  • Đại lý phân phối chính thức F1: EXPRESS

Đăng ký nhận bảng giá & ưu đãi từ chủ đầu tư

Icon bảng giá Bảng giá tháng 12/2025
Icon hồ sơ pháp lý Hồ sơ pháp lý
Icon chính sách bán hàng Chính sách bán hàng

Vị Trí Tọa Lạc Đắc Địa
GEM RIVERSIDE Q2

Dự Án Căn Hộ Gem Riverside Đất Xanh sở hữu vị trí tọa lạc ngay vị trí vàng, chiến lược hàng đầu của khu dân cư Nam Rach Chiếc – quận 2. Vị trí này nằm giữa hai dự án khu đô thị quy mô lớn bao gồm Palm City và Lakeview City. Đặc biệt là dự án còn nằm ngay cạnh khu liên hợp thể dục thể thao Rạch Chiếc – yếu tố quan trọng giúp gia tăng giá trị của sản phẩm nhanh chóng trong tương lai cho dự án là Gem Riverside

Dự án nằm ngay cạnh hàng loạt các tuyến đường huyết mạch trong khu vực như: cao tốc Long Thành – Dầu Giây giúp kết nối nhanh chóng với quận 1; Đồng Nai; Thành phố Vũng Tàu. Ngoài ra, còn nằm ngay liền kề với mặt tiền đường Song Hành; đại lộ Mai Chí Thọ nên cư dân của dự án sẽ rất nhanh chóng để tiếp cận với quận 1; quận 9; KĐT Thủ Thiêm.

Liên kết vùng

  • 1 Từ dự án chỉ cần di chuyển 5 phút chạy xe để tới trung tâm quận 1 với khoảng cách chỉ 3km
  • 2 Trong khoảng cách 4km để tới các TTTM lớn, Metro quận 2
  • 3 7 km để tới với khu đô thị Phú Mỹ Hưng hiện đại
  • 4 Chỉ mất vài phút để tới KĐT mới Thủ Thiêm; công viên rộng lớn trung tâm thành phố

Tiện Ích Đồng Bộ 5 Sao
GEM RIVERSIDE Q2

Đất Xanh Group hứa hẹn mang lại một cuộc sống tiện nghi hàng đầu cho mọi cư dân căn hộ Gem Riverside Quận 2 với hệ thống chuỗi tiện ích dịch vụ nội khu hiện đại, đẳng cấp đúng nghĩa.
+ Khu công viên cây xanh mặt nước có diện tích 7 ha
+ Đường chạy bộ ven sông
+ Bến du thuyền đẳng cấp
+ Sky Garden cực chất
+ Hồ bơi tràn bờ thiết kế hiện đại, nơi nghỉ dưỡng, thư giãn lý tưởng
+ Khu thể thao
+ Khu vui chơi trẻ em
+ Khu vườn nướng BBQ ngoài trời
+ Trường học quốc tế các cấp
+ Khu thương mại cao cấp…

Đăng ký nhận bảng giá & ưu đãi từ chủ đầu tư

Icon bảng giá Bảng giá tháng 12/2025
Icon hồ sơ pháp lý Hồ sơ pháp lý
Icon chính sách bán hàng Chính sách bán hàng

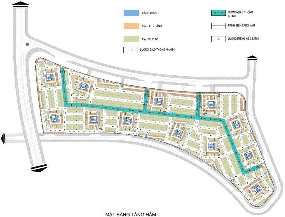
Mặt Bằng
GEM RIVERSIDE ĐẤT XANH

Dự án có quy mô thiết kế các tòa tháp căn hộ cao tới 35 tầng, bố trí dọc ven sông, với mật độ xây dựng chỉ khoảng 20%, phần diện tích còn lại dành cho không gian công viên và tiện ích nội khu.
Dự án Gem Riverside Đất Xanh tại dân cư Nam Rạch Chiếc, An Phú, Quận 2 cung cấp cho khách hàng với các loại căn hộ với diện tích từ 1 – 3PN, diện tích từ 49 – 201m2.
Quý khách hàng đang tìm kiếm một nơi an cư mới, kênh đầu tư sinh lời lý tưởng hàng đầu vui lòng liên hệ với hotline củaSàn Giao Dịch Bất Động Sản Expressngay hôm nay để nhận tư vấn chi tiết, chính xác nhất nhé!

Mặt Bằng Chi Tiết
GEM RIVERSIDE ĐẤT XANH

– Căn 1 Phòng Ngủ: 49.14m2
– Căn 2 Phòng Ngủ: 71.01 – 76.12 – 79.98 – 80.76 – 81.17 – 85.06 m2.
– Căn 3 Phòng Ngủ: 94.93 – 95.01 m2
– Duplex Villa: 129.29 – 134.71 – 137.61 – 152.69 – 159.08 – 160.65 – 175.38 – 201.67 m2.
– Penthouse: 107.78 – 118.96 – 125.08 – 132.66 – 143.39 – 146.17 – 151.19 m2.
– Căn hộ Sân Vườn: 71.01 – 76.12 – 79.98 – 80.76 – 81.17 – 85.06 – 94.93 – 95.01 m2.

Cụ thể thiết kế chi tiết một Block như sau:

– Từ tầng 1 đến tầng 2: Phát triển Duplex Villa (bàn giao hoàn thiện)

– Từ tầng 3 đến tầng 24: Phát triển căn hộ điển hình (sản phẩm chính)

– Từ tầng 25 đến tầng 26: Phát triển căn hộ sân vườn Skygarden

– Từ tầng 27 đến tầng 31: Tiếp tục phát triển căn hộ điển hình

– Tầng 32 và tầng 33: Phát triển Penhouse (bàn giao hoàn thiện tất cả)

Thiết Kế
GEM RIVERSIDE ĐẤT XANH

Mọi căn hộ đều có thiết kế vuông vức, hai mặt giáp sông, Đặc biệt mọi căn hộ đều có thể đón nắng, đón ánh sáng tự nhiên, gần gũi với thiên nhiên theo đúng nghĩa sống xanh hiện nay.
– Mỗi căn hộ Gem Riverside đều có các ban công riêng để đón nhận ánh sáng tự nhiên, mang không khí tươi mát, trong lành và làn gió nam thổi vào bên trong.
– Nội thất bên trong khu căn hộ Gem Riverside Đất Xanh đều được thiết kế rất sang trọng, đẳng cấp với sàn lót gạch cho các phòng khách, phòng tắm, phòng ăn và bếp.
Các căn hộ từ 1 – 3 PN Gem Riverside, kể cả các căn Duplex Villa, căn hộ Penthouse đều được bàn giao hoàn thiện cho khách hàng giai đoạn 1 vào thời điểm Quý III. 2020 với mọi căn hộ được trang bị nội thất cũng như vật liệu hoàn thiện bao gồm:
+ Gạch 60×60 hoặc 80×80
+ Sàn gỗ phòng ngủ
+ Gạch ngoài trời và gạch nhà tắm chống trượt
+ Lan can bằng sắt cao 1.4m
+ Cửa ra lôgia và sân vườn là cửa trượt
+ Diện tích sân vườn không có trong sổ
+ Sổ hồng cả 2 diện tích tầng trệt & tầng lửng (ngoại trừ phần diện tích sân vườn)
+ Hệ thống Intercom bao gồm: Thẻ từ an ninh căn hộ
+ Buồng tắm đứng kính
+ Kệ tủ bếp treo cao cấp
+ Thiết bị vệ sinh và cơ điện cao cấp
Có thể thấy được rằng, mọi căn hộ Gem Riverside Quận 2 đều được Chủ đầu tư Đất Xanh cũng như các kiến trúc sư, đối tác thiết kế trau chuốt đến từng chi tiết nhỏ nhất, trang bị nội thất hiện đại đến từ các thương hiệu nổi tiếng trên thế giới.

Đăng ký nhận bảng giá & ưu đãi từ chủ đầu tư

Icon bảng giá Bảng giá tháng 12/2025
Icon hồ sơ pháp lý Hồ sơ pháp lý
Icon chính sách bán hàng Chính sách bán hàng

VIDEO
GEM RIVERSIDE QUẬN 2

Giá Bán
GEM RIVERSIDE ĐẤT XANH

CHÍNH SÁCH VÀ BẢNG GIÁ BÁN CĂN HỘ GEM RIVERSIDE QUẬN 2
Chủ đầu tư Đất Xanh Group đưa ra mức giá bán áp dụng cho giai đoạn 1 chỉ 38 Triệu/m2 (VAT). Là 1 trong nhưng chung cư quận 2 có giá bán tốt nhất cùng khu vực.
Trong đợt công bố đầu tiên, quý khách hàng sẽ có cơ hội trúng xe SH 125i khi đặt cọc mua căn hộ Gem Riverside Đất Xanh.
Bên cạnh đó, chủ đầu tư Đất Xanh còn đưa ra nhiều phương thức thanh toán linh hoạt phù hợp cho mọi đối tượng khách hàng khác nhau khi đặt mua thành công căn hộ tại dự án Gem Riverside Quận 2.
>>>Đặc biệt: Trong đợt công bố đầu tiên tất cả khách hàng điều được Chiết Khấu trực tiếp 50 triệu trên giá trị hợp đồng.
CẬP NHẬT TIẾN ĐỘ MỞ BÁN CĂN HỘ GEM RIVERSIDE TÍNH ĐẾN 08/2018
– Quý 04/2017 khởi công dự án tiến hành cho máy móc vào ép cọc, làm hầm.
– Ngày 29/01/2018 tổ chức đào tạo thông tin dự án cho toàn thể nhân viên.
– Ngày 01/02/2018 chính thức NHẬN ĐĂNG KÝ NGUYỆN VỌNG “ĐỢT 1“.
– Ngày 25/02/2018 chính thức khai trương nhà mẫu căn hộ Gem Riverside.
– Ngày 8/04/2018 chính thức công bố “ĐỢT 1” cho 4 Block 1-2-3 thuộc phân khu Ruby Gem Riverside tại White Palace.
– Ngày 22/04/2018 công bố Block 4 tại Gem Center.
– Ngày 27/05/2018 chính thức công bố “ĐỢT 2” cho Block 6 – 8 tại White Palace.
– Ngày 08/07/2018 chính thức Block 5 – 7, là 2 tòa căn hộ đẹp nhất phân khu Saphire 100% trực diện sông.
– Tháng 12/2018 chính thức công bố các tòa tháp tại Phase 3 Diamond Riverside, Phân khu cuối cùng cũng là phân khu đẹp nhất dự án Gem Riverside với 4 Block 9 – 10 – 11- 12

PHƯƠNG THỨC THANH TOÁN THEO THỜI GIAN

PHƯƠNG THỨC THANH TOÁN THEO TIẾN ĐỘ DỰ ÁN

PHƯƠNG THỨC THANH TOÁN NHANH

☎ Hotline 24/7: 0868 968 799

* Quý anh chị vui lòng để lại thông tin để nhận ngay bảng giá từ chủ đầu tư

Đăng ký nhận bảng giá & ưu đãi từ chủ đầu tư

Icon bảng giá Bảng giá tháng 12/2025
Icon hồ sơ pháp lý Hồ sơ pháp lý
Icon chính sách bán hàng Chính sách bán hàng

CÂU HỎI THƯỜNG GẶP VỀ GEM RIVERSIDE QUẬN 2

Ví trí khu căn hộ chung cư cao cấp Gem Riverside Quận 2 chính xác là ở địa chỉ nào ?
Địa chỉ tại Khu đô thị Nam Rạch Chiếc, Phường An Phú, Quận 2, Thành Phố Thủ Đức, TP. Hồ Chí Minh

Xem thêm dự án nổi bật khác

LIBERA NHA TRANG

THE 5WAY PHÚ QUỐC

Glory Heights Vinhomes

Eco Village Saigon River

THE PRIVIA KHANG ĐIỀN BÌNH TÂN

LUMIERE BOULEVARD QUẬN 9