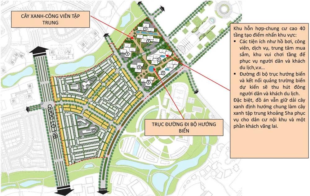
THÔNG TIN DỰ ÁN NHƠN HỘI NEW CITY

- Dự án: Nhơn Hội New City
- Vị trí: Mặt tiền đường QL 19B - Khu 4- Xã Nhơn Lý - TP. Quy Nhơn - tỉnh Bình Định.
- Tổng diện tích: 34.16 ha
- Loại hình sản phẩm: đất nền; căn hộ chung cư
- Chủ đầu tư: Công Ty CP Phát Triển BĐS Phát Đạt
- Giá bán đất nền: 15 – 22 triệu đồng/m2
- Pháp lý: sổ đỏ từng lô, sở hữu lâu dài
- Khởi công: Quý 1/2019
- Bàn giao: Quý 3/2019
- Đại Lý Phân Phối: BẤT ĐỘNG SẢN EXPRESS