
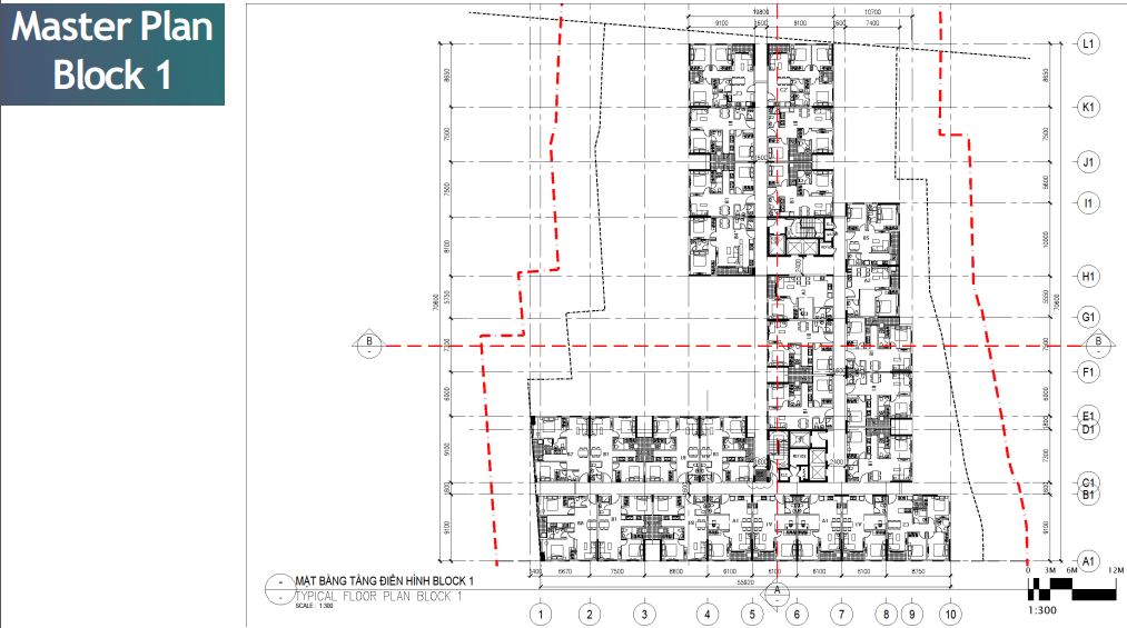
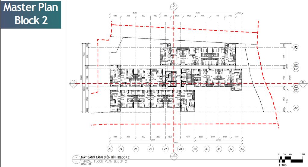
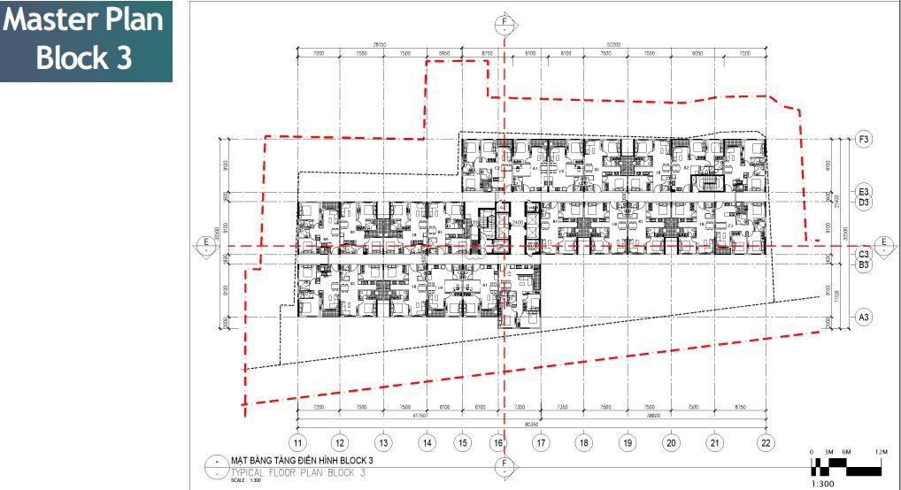
THÔNG TIN DỰ ÁN BÌNH AN RIVERSIDE - QUẬN 8
- Dự án: Bình An Riverside (Hado Green Lane)
- Vị trí: Số 2735 Đường Phạm Thế Hiển – P.7 - Q. 8 - TP. Hồ Chí Minh
- Chủ đầu tư: Tập đoàn Hà Đô
- Tổng diện tích: 23.237.1m2
- Mật độ xây dựng: 27.96%
- Quy mô: 3 tòa tháp căn hộ cao 18 tầng
- Loại hình sản phẩm: căn hộ
- Số lượng: 1300 căn hộ
- Diện tích: 52 - 80 m2
- Giá bán: 28 triệu đồng/m2
- Tính pháp lý: sổ đỏ vĩnh viễn từng căn
- Khởi công: Tháng 6/2018
- Hoàn thành: Quý 2/2021
- Ngân hàng bảo lãnh: Vietcombank
- Đại Lý Phân Phối: EXPRESS
















.jpg)

