PHÂN KHU BIỆT THỰ ANH ĐÀO VINHOMES RIVERSIDE

PHÂN KHU BIỆT THỰ ANH ĐÀO VINHOMES RIVERSIDE
Tỷ lệ: 3 (60%) 67 votes
.Đánh giá của bạn

Khu biệt thự Hoa Anh Đào được triển khai xây dựng trong quần thể của khu đô thị Vinhomes Riverside. Đây là một dự án đẹp, có quy mô hiện đại, đạt tiêu chuẩn cao cấp về tiện nghi cũng như đáp ứng mọi yêu cầu về môi trường sống xanh, hoàn hảo cho mọi cư dân.

Quy hoạch đồng bộ của biệt thự với chuỗi tiện ích dịch vụ đẳng cấp, không gian sống xanh trong lành của cây cối, hoa lá và vườn, hồ nước có diện tích rộng rãi bao quanh, kết nối liên hoàn. Đây chính là một tổ hợp biệt thự được hình thành với xu hướng xanh, hiện đại, vượng phong thủy cùng không gian thoáng rộng và xanh tươi.

Lối thiết kế của các căn biệt thự Anh Đào đã giúp tối ưu hóa những điểm mạnh của các biệt thự đẳng cấp mà còn khắc phục được các khu biệt thự khác gặp phải. Chính điều này đã tạo nên một thiết kế họ

không những tối ưu hóa những điểm mạnh của các biệt thự đẳng cấp mà còn khác phục được hạn chế mà các khu biệt thự khác gặp phải. Điều này đã tạo nên một thiết kế hoàn hảo cho Vinhomes Riverside Anh Đào.

Điểm nổi bật của các căn biệt thự Anh Đào không chỉ nằm ở nét độc đáo của thiết kế mà còn là sự đa dạng của diện tích căn hộ trong khoảng từ 145m2 - 160m2, số lượng chiếm tới 65% tổng số sản phẩm. Các căn biệt thự Anh Đào đơn lập có diện tích thiết kế vào khoảng 300m2 bố trí đan xen với nhau, sàn xây dựng của một căn biệt thự từ 85 – 90m2 cho các căn biệt thự có diện tích 150m2.

- Xem thêm:Căn hộ Vinhomes Grand Park Quận 9

icon 1
Phân khu được triển khai xây dựng bởi Tập đoàn Vingroup uy tín hàng đầu trên lĩnh vực bất động sản, đem lại kênh đầu tư sinh lời hấp dẫn, cũng như trải nghiệm một cuộc sống lý tưởng nhất. Chất lượng, tiến độ của dự án luôn được đảm bảo tốt nhất.
icon 2
Phân khu hoa Anh Đào Vinhomes Riverside sở hữu vị trí tọa tại nơi đẹp nhất của KĐT sinh thái Vinhomes Riverside, được mệnh danh là trái tim của dự án. Đặc biệt là có tới bốn mặt tiền đều là đường giao thông thuận tiện.
icon 3
Cư dân của Biệt thự Anh Đào Vinhomes Riverside được tận hưởng chuỗi tiện ích dịch vụ đẳng cấp mang thương hiệu Vinhomes đáp ứng mọi nhu cầu của cư dân ở mức tốt nhất. Đem lại một cuộc sống hàng đầu hiếm có dự án nào có được.
icon 4
Phân khu Anh Đào nằm trong quần thể biệt thự sang trọng; lộng lẫy và độc đáo theo đúng tiêu chuẩn quốc tế đã được vinh danh tại nhiều giải thưởng danh giá, đã được mệnh danh là “Nơi đáng sống nhất tại Việt Nam“.
icon 5
Hệ thống an ninh tại Vinhomes Riverside hoạt động 24/7, thắt chặt tốt nhất nhờ đội ngũ bảo an lịch sự, chuyên nghiệp, trình độ chuyên môn cao, hệ thống bảo an đạt chuẩn quốc tế bao gồm: camera giám sát; màn hình giám sát; hệ thống điện đàm;…
icon 6
Cộng đồng cư dân Biệt thự Anh Đào Vinhomes Riverside văn minh, hội tụ những người thành đạt, đem lại cuộc sống đông vui, sức sống căng tràn và tươi mới cho toàn khu đô thị.
icon 7
Đối tác kết hợp cùng CĐT Vingroup, đội ngũ tư vấn thiết kế triển khai dự án đều là những chuyên gia đầu ngành, giàu kinh nghiệm cũng như đầy năng lực trong lĩnh vực đầu tư, xây dựng và quản lý các dự án BĐS tầm cỡ cả trong và ngoài nước.
icon 8
Biệt thự Anh Đào Vinhomes Riverside đã được thiết kế và xây dựng thoe phong cách tân cổ điển lãng mạn, nằm ven kênh đào uốn lượn. Nơi đây mang lại không gian sống xanh lãng mạn, êm đềm đảm bảo sự sang trọng và đẳng cấp.
icon 9
Các căn biệt thự tại phân khu Anh Đào được xây dựng với diện tích nhỏ nên phù hợp với nhu cầu của mọi cư dân. Tính thanh khoản, mức giá bán, chính sách bán hàng và ưu đãi tới từ CĐT Vingroup được đánh giá cao.

TỔNG QUAN BIỆT THỰ ANH ĐÀO VINHOMES RIVERSIDE

TỔNG QUAN  BIỆT THỰ  ANH ĐÀO VINHOMES RIVERSIDE
  • Vị trí: KĐT sinh thái Vinhomes Riverside - Long Biên - Hà Nội
  • Chủ đầu tư: Tập đoàn Vingroup
  • Đơn vị quản lý, vận hành: Vinhomes
  • Tổng diện tích: 9.5 ha
  • Mật độ xây dựng: 12%
  • Diện tích mặt nước: chiếm 60% diện tích toàn phân khu
  • Số lượng biệt thự: 365 căn
  • Diện tích biệt thự: 161m2 – 609m2
  • Loại  hình: đơn lập, song lập, có sông
  • Phân khu: Anh Đào 1 - Anh Đào 12
  • Hình thức sở hữu: sổ đỏ vĩnh viễn
  • Bàn giao: hoàn thiện bên ngoài, thô bên trong
  • Ngân hàng hỗ trợ vay vốn: Techcombank; Ngân hàng SeAbank

Đăng ký nhận bảng giá & ưu đãi từ chủ đầu tư

Icon bảng giá Bảng giá tháng 12/2025
Icon hồ sơ pháp lý Hồ sơ pháp lý
Icon chính sách bán hàng Chính sách bán hàng

Vị Trí Tọa Lạc
BIỆT THỰ ANH ĐÀO VINHOMES RIVERSIDE

Vị trí tọa lạc của phân khu Anh Đào Vinhomes Riverside nằm tại nơi trung tâm của khu đô thị. Đây chính là vị trí tọa lạc đắc địa nhất của dự án, giúp cho cư dân dễ dàng di chuyển, tiếp cận với chuỗi tiện ích dịch vụ toàn khu cũng như các khu vực lân cận.
Phân khu biệt thự này nằm trên trục đường có thiết kế rộng tới 81m hay còn được gọi là đại lộ Vincom, đối diện với khu Bằng Lăng, được bố trí tới 365 căn biệt thự thuộc 12 tiểu khu từ Anh Đào 1 tới Anh Đào 12.
Quý khách hàng có nhu cầu tìm hiểu thông tin về phân khu biệt thự Anh Đào Vinhomes Riverside, vui lòng liên hệ với hotline củaBatdongsanExpressngay hôm nay để nhận tư vấn chi tiết, chính xác nhất nhé!

Liên kết vùng

  • 1 Bốn mặt tiền của phân khu đem lại khả năng liên kết vùng thuân tiện nhất tới các phân khu khác
  • 2 Một mặt của phân khu đối diện với khu Vinhomes Riverside Hoa Bằng Lăng có diện tích hồ rộng rãi
  • 3 Mặt cạnh của phân khu đối diện với công viên khủng long, nơi lý tưởng để các gia đình có kỳ nghỉ vào cuối tuần
  • 4 Mặt sau của phân khu là đường Hoa Hồng giúp cư dân tiếp cận nhanh chóng với chuỗi tiện ích dịch vụ ngay nội khu

Tiện Ích Dịch Vụ
BIỆT THỰ ANH ĐÀO VINHOMES RIVERSIDE

Vinhomes Riverside đã được CĐT chú trọng hàng đầu tới việc đem lại cho cư dân hàng loạt tiện ích dịch vụ hoàn hảo nhất. Vì vậy, Tập đoàn Vingroup đã trang bị chuỗi tiện ich thông minh, giúp đảm bảo sự kết nối linh hoạt nhất nhằm giúp cư dân tối ưu hóa trải nghiệm khi sử dụng các dịch vụ tiện ích tại đây. Các tiện ích của dự án có thể kể tới như: trung tâm thương mại; chuỗi nhà hàng; các văn phòng cho thuê cao cấp; trường học quốc tế; bệnh viện; siêu thị;…

Cư dân phân khu Anh Đào Vinhomes Riverside được tận hưởng chuỗi tiện ích dịch vụ đạt tiêu chuẩn đẳng cấp 5 sao, thư giãn thoải mái, thưởng thức hương vị ẩm thực bốn mùa; chăm sóc và rèn luyện sức khỏe bằng các môn thể thao đa dạng như: tập gym; tập thể hình; aerobic; yoga; bơi lội.

Dự án còn trang bị cả khu thể thao phức hợp ngoài trời bao gồm có 2 sân bóng; 6 sân tennis hiện đại. Thiết kế sân tập golf hợp lý và đạt chuẩn quốc tế 5 sao, đồng thời được trang bị hàng loạt các dịch vụ tại gia như: dịch vụ xe cao cấp; dịch vụ bảo vệ 24/7; dịch vụ chăm sóc vườn; dịch vụ Housekeeping;… Tất cả mọi thưc luôn sẵn sàng phục vụ cư dân dự án mọi lúc mọi nơi.

Đăng ký nhận bảng giá & ưu đãi từ chủ đầu tư

Icon bảng giá Bảng giá tháng 12/2025
Icon hồ sơ pháp lý Hồ sơ pháp lý
Icon chính sách bán hàng Chính sách bán hàng

Mặt Bằng
BIỆT THỰ ANH ĐÀO VINHOMES RIVERSIDE

Biệt thự Vinhomes Riverside Hoa Anh Đào có quy mô 9.5 ha, cung cấp số lượng lên tới 365 căn biệt thự được bố trí tại 12 phân khu từ Anh Đào 1 - Anh Đào 12.

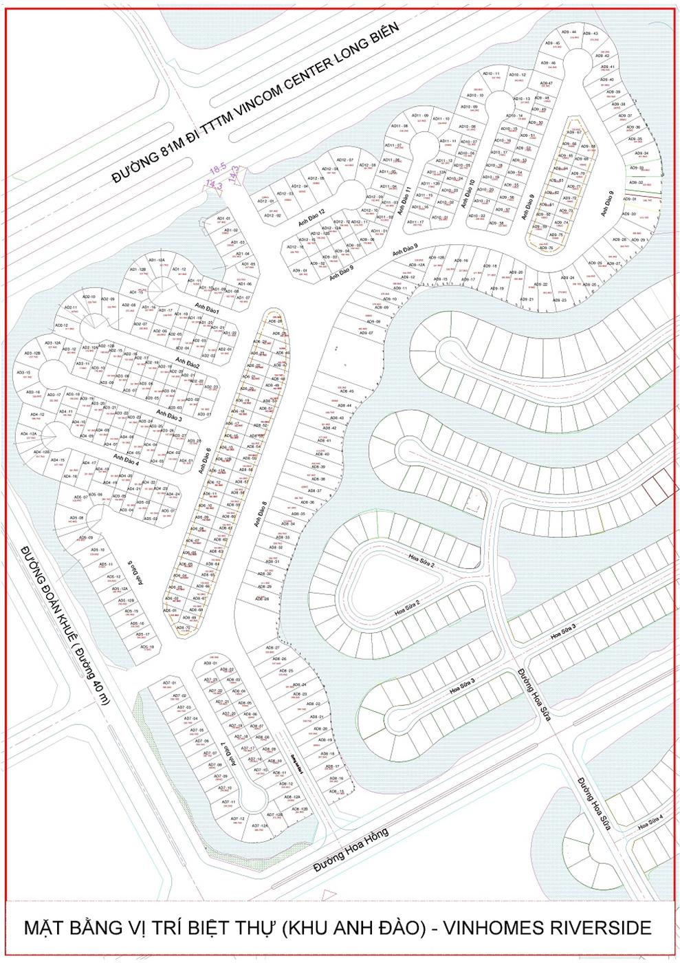
Mặt Bằng Chi Tiết
BIỆT THỰ ANH ĐÀO VINHOMES RIVERSIDE

Biệt thự Hoa Anh Đào có tổng số lượng 366 căn, chia thành 12 phân khu từ Hoa Anh Đào 1 - Hoa Anh Đào 12.

Các biệt thự nơi đây có điểm nhấn nổi bật đó chính là không có tầng hầm nên không bị thấm; có đường giao thông rộng rãi; thoáng đãng; có tới 3 lối vào từ 3 mặt đường lớn.

Số lượng các căn biệt thự tại 12 phân khu như sau:

Thiết Kế
BIỆT THỰ ANH ĐÀO VINHOMES RIVERSIDE

Thiết kế mỗi căn biệt thự Anh Đào Vinhomes Riverside có điểm nhấn nổi bật nhất đó chính là nét độc đáo trong thiết kế; đa dạng về diện tích từ 145m2 – 160m2. Các căn có diện tích nhỏ này chiếm tới 65% tổng các căn biệt thự.

Khách hàng có thể lựa chọn loại căn biệt thự thiết kế dạng đơn lập với diện tích khoảng 300m2, bố trí đan xen lẫn nhau. Diện tích mặt sàn của các căn biệt thự này từ 85 – 90m2 dành cho các lô có diện tích vào khoảng 150 m2.

Đăng ký nhận bảng giá & ưu đãi từ chủ đầu tư

Icon bảng giá Bảng giá tháng 12/2025
Icon hồ sơ pháp lý Hồ sơ pháp lý
Icon chính sách bán hàng Chính sách bán hàng

VIDEO
PHÂN KHU BIỆT THỰ ANH ĐÀO VINHOMES RIVERSIDE

Giá Bán
BIỆT THỰ ANH ĐÀO VINHOMES RIVERSIDE

Chủ đầu tư đưa ra mức giá bán hợp lý cho từng loại hình sản phẩm biệt thự tại phân khu Anh Đào Vinhomes Riverside nằm trong khoảng từ 85 – 95 triệu đồng/m2. Cùng với đó là những chính sách bán hàng, ưu đãi hấp dẫn dành cho mọi khách hàng và nhà đầu tư.

☎ Hotline 24/7: 0868 968 799

* Quý anh chị vui lòng để lại thông tin để nhận ngay bảng giá từ chủ đầu tư

Đăng ký nhận bảng giá & ưu đãi từ chủ đầu tư

Icon bảng giá Bảng giá tháng 12/2025
Icon hồ sơ pháp lý Hồ sơ pháp lý
Icon chính sách bán hàng Chính sách bán hàng

CÂU HỎI THƯỜNG GẶP VỀ PHÂN KHU BIỆT THỰ ANH ĐÀO VINHOMES RIVERSIDE

Vị trí dự án chính xác ở đâu ?
Vị trí: KĐT sinh thái Vinhomes Riverside - Long Biên - Hà Nội
Diện tích khu đất dự án?
Tổng diện tích: 9.5 ha
Ngân hàng hỗ trợ vay vốn, đảm bảo dự án?
Ngân hàng hỗ trợ vay vốn: Techcombank; Ngân hàng SeAbank
Số lượng sản phẩm tại dự án?
Số lượng biệt thự: 365 căn
Diện tích biệt thự: 161m2 – 609m2

Xem thêm dự án nổi bật khác

LIBERA NHA TRANG

THE 5WAY PHÚ QUỐC

Glory Heights Vinhomes

Eco Village Saigon River

THE PRIVIA KHANG ĐIỀN BÌNH TÂN

LUMIERE BOULEVARD QUẬN 9